Huurwoning Amsterdam

Polanenstraat 233, Amsterdam

Korte samenvatting

Locatie
Amsterdam
Huurprijs
€ 585,58
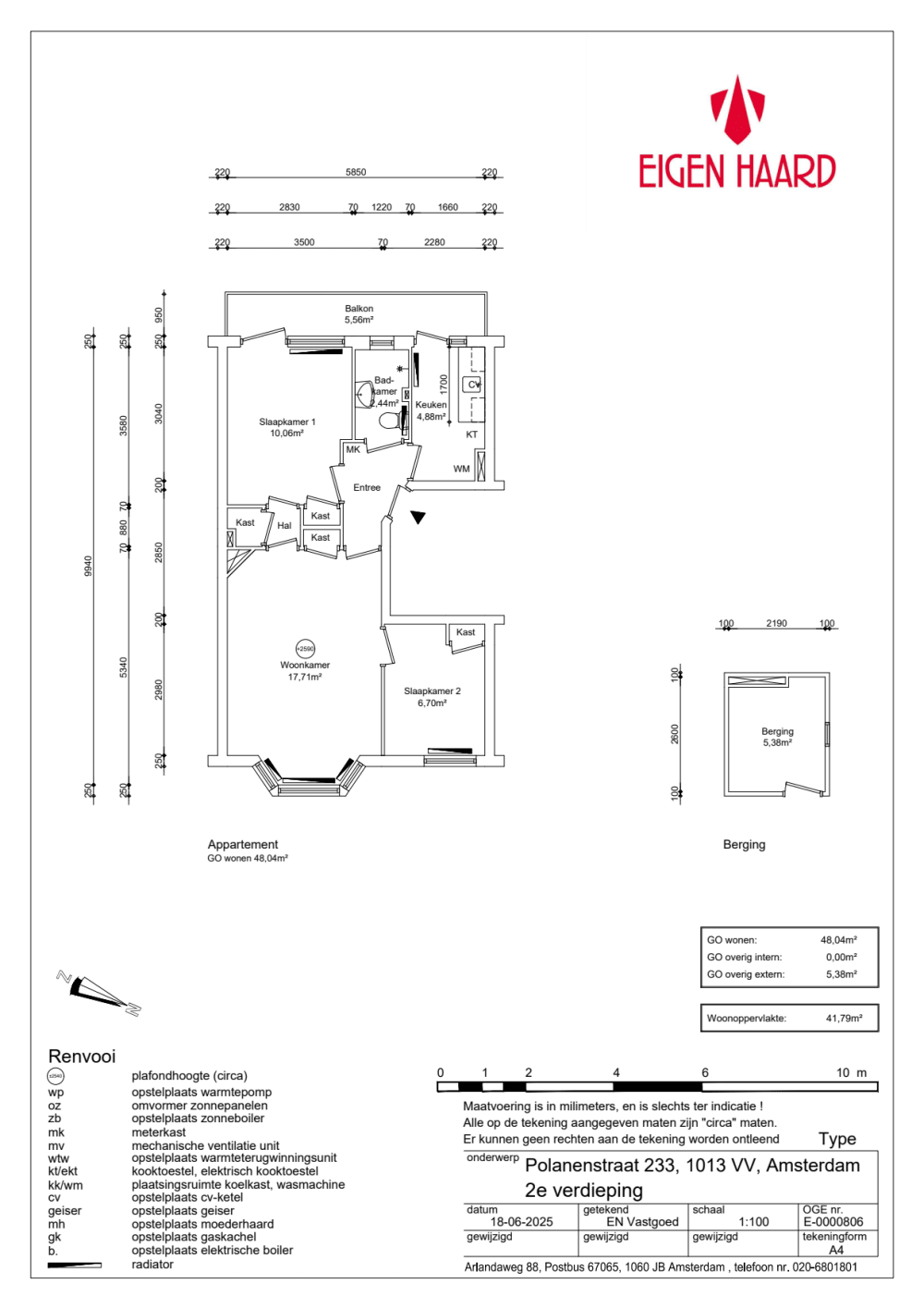
Type woning
Portiekwoning
Oppervlakte:
44 m2
Kamers:
3
Slaapkamers:
2
Wachttijd:
(niet ingesteld)
Datum beschikbaar:
1 jul 2025
Maximaal inkomen:
€ 39.055,00
Status:
Verlopen

Omschrijving woning

BijzonderhedenBetaald parkeren/ met vergunning: zie voor meer informatie website gemeente AmsterdamDe woning2e etage3 kamer woning2 slaapkamers2e slaapkamer betreft een kleine slaapkamer, gelegen aan de woonkamer (zie ook plattegrond)Zeer kleine keukenInbouw kasten in slaapkamers en woonkamerGehorige woningSmalle badkamerBalkon gelegen aan de achterzijde, bereikbaar via slaapkamer 1 of via keukenKoken op gaswasmachine aansluiting keukenBuurtCentraal station op 10 minuten afstandAlbert hein op minder dan 5 minuten fietsenDiverse (afhaal) restaurants in de omgevingWesterpark op 5 minuten fietsenWelke voorzieningen zijn er in de buurt? Kijk bij tabblad Buurt om meer over de buurt te weten te komen.Let op:woningkenmerken, plattegrond en huurprijs zijn nog onder voorbehoud. Klik hier voor meer informatie:https://www.woningnetregioamsterdam.nl/Nieuws/Huurprijzen%20onder%20voorbehoud%20bij%20Eigen%20HaardTechnische staatWe leveren de woning volgens de Eigen Haard standaard op.  Voor meer informatie kijkt u op onze site:https://www.eigenhaard.nl/weten-en-regelen/sociale-huur/nieuwe-huurders/oplevering#F4BBB11819D44A4184749E7F8DD30BD7Houd er rekening mee dat u zelf ook nog het een en ander moet doen om de woning naar uw smaak te maken. Denk aan schilderen van de muren en plafonds, afstomen van behang en/ of het leggen van een vloer.Wilt u de woning huren?Voor meer informatie over welke documenten u nog meer moet inleveren op het moment dat u eerste kandidaat wordt voor de woning, kijkt u op onze website:https://www.eigenhaard.nl/weten-en-regelen/sociale-huur/nieuwe-huurders/acceptatie-en-toewijzing

Kaart