Huurwoning Amsterdam

Pradolaan 63, Amsterdam

Korte samenvatting

Locatie
Amsterdam
Huurprijs
€ 937,88
Type woning
Appartement
Oppervlakte:
62 m2
Kamers:
3
Slaapkamers:
2
Wachttijd:
(niet ingesteld)
Datum beschikbaar:
5 feb 2025
Maximaal inkomen:
(niet ingesteld)
Status:
Verlopen

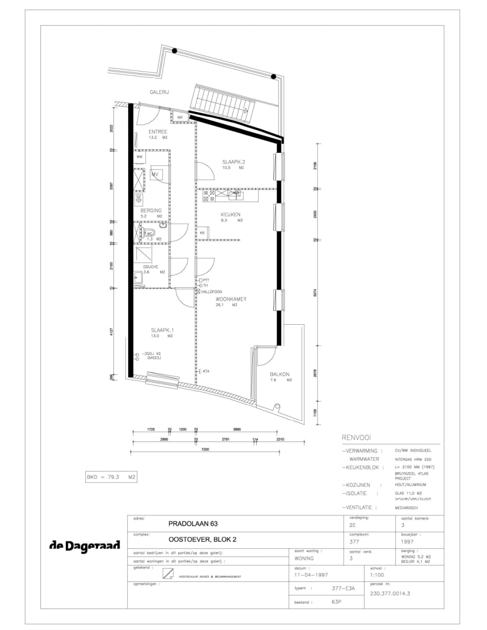
Omschrijving woning

Een 3 kamer-appartement is beschikbaar gekomen op de Pradolaan 63 in de rustige wijk Oostoever in Slotervaart op de 2e etage; ruime woonkamer, 2 slaapkamers en een open keuken.* Ruime woonkamer van 26.1 m2 bereikbaar vanuit hal* keuken grenst aan woonkamer 9.3 m2* 1 slaapkamer grenst aan galerijzijde 10.5 m2 bereikbaar vanuit hal* 1 slaapkamer 13 m2 bereikbaar vanuit hal, grenst aan het balkon* gelegen op de 2e etage* balkon 7.6 m2* badkamer 3.6 m2 bereikbaar via hal* apart toilet* berging 5.2 m2 met plaats voor de wasmachine* energielabel A* elektrische gemeenschappelijke buitendeur* oplaadpunt voor scootmobiel in de gemeenschappelijke ruimte* Ligging vlakbij de Sloterplas* Indien u in het bezit bent van een auto dient u een parkeervergunning aan te vragen bij de gemeente AmsterdamHoudt u er rekening mee dat u zelf ook nog het een en ander moet doen om de woning naar uw smaak te maken.Denk aan schilderen van de muren en plafonds, afstomen van behang en/ of het leggen van een vloer.Let op: Deze woning bevindt zich in een seniorencomplex en is niet geschikt voor huishoudens met kinderen!De woning is gelegen in de wijk Slotervaart.Deze groene wijk kenmerkt zich door de Sloterplas en het Sloterpark.Voor dagelijkse boodschappen zijn er geen directe winkels in de buurt.Op ongeveer 1,5 km afstand vind u het Sierplein, op woensdagen is hier een gezellige markt.De Johan Huizingalaan waar winkels zitten is op loopafstand ongeveer 500 meter.Tevens bent u met de fiets binnen slechts 15 minuten in het centrum van Amsterdam.Ook openbaar vervoer is volop aanwezig met diverse tram lijnen en station Lelylaan om de hoek.Met de auto zit u zo op de A10.

Kaart