Huurwoning Amsterdam

Saaftingestraat 7, Amsterdam

Korte samenvatting

Locatie
Amsterdam
Huurprijs
€ 858,91
Type woning
Portiekwoning
Oppervlakte:
52 m2
Kamers:
4
Slaapkamers:
3
Wachttijd:
(niet ingesteld)
Datum beschikbaar:
31 okt 2025
Maximaal inkomen:
(niet ingesteld)
Status:
Verlopen

Omschrijving woning

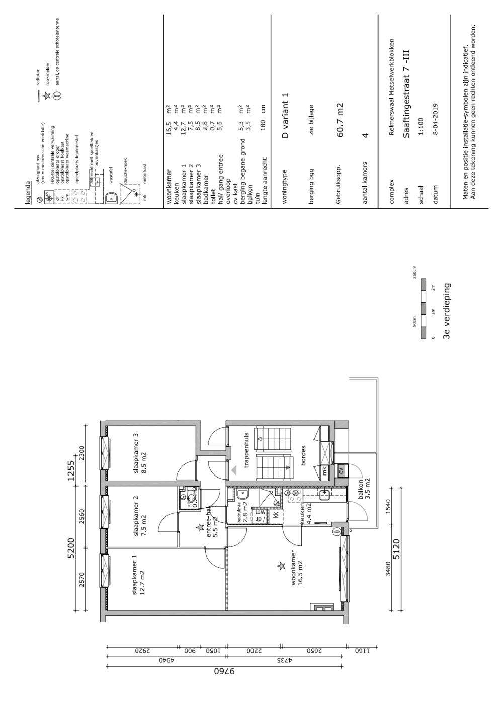
Vierkamer woning in reimerswaalBent u op zoek naar een vier kamerwoning in Osdorp? Rond november komt er in deze portiekflat uit de jaren 70 een appartement beschikbaar.De woning Het appartement heeft nu dubbel glas, centrale verwarming, mechanische ventilatie en een keuken en badkamer.De kamers zijn netjes, maar niet volledig afgewerkt. U moet zelf nog wat klussen, denk bijvoorbeeld aan het verven van de muren en kozijnen.Dit vier kamerappartement ligt op de derde etage en is bereikbaar via een algemeen trappenhuis. Er is geen lift aanwezig.Via de hal kunt u naar de woonkamer, de drie slaapkamers, de badkamer en het toilet. Via de woonkamer komt u in de keuken. Deze geeft toegang tot het balkon.Het balkon ligt op het westen. ’s Middags en ’s avonds heeft u hier zon.Het appartement heeft een eigen berging op de begane grond.Centrale satellietschotel: Op het dak boven het trappenhuis staan twee schotels. Via een kastje in de woonkamer bent u hierop aangesloten. De schotels worden jaarlijks onderhouden en voor het gebruik betaalt u niets.Om gebruik te maken van deze schotels heeft u een satellietontvanger en een smart card nodig. Deze moet u zelf kopen. Een abonnement is niet nodig.Een schotel op het balkon plaatsen is door deze satellietschotels overbodig en niet toegestaan.De woonomgeving In de buurt zijn de volgende voorzieningen:Buurtwinkels op zes minuten loopafstand;Winkelcentrum Osdorpplein, met theater Meervaart, op een kwartier loopafstand;De Sloterplas en het Botteskerk- en Sloterpark;Sportcomplex Ookmeer, hier kunt u terecht voor voetbal, tennis, paardensport, honkbal en boogschieten;Twee basisscholen vlakbij.In de buurt zijn er bushaltes. De Reimerswaalbuurt ligt ook gunstig ten opzichte van de uitvalswegen A9 en A10.Portiekwoninggesloten keukenBadkamer toilet apartWasmachine aansluiting badkamerContact en leefgeluiden.wel boven burenbalkon op het zuid westenbergingbetaald parkerenOvernameLaminaat loer ter overnameVerzamel alvast uw gegevensKrijgt u een uitnodiging om deze woning te bekijken en wilt u komen kijken? Verzamel dan alvast uw gegevens voor Ymere.  Want als u de woning komt bekijken en daarna laat weten dat u deze wilt huren, moet uuw gegevensde volgende werkdag voor 12.00 uur aanleveren. Ook als u niet kandidaat nummer 1 bent levert u de gevraagde documenten in!  Kijk op onzewebsiteof in dezefolderwat u moet aanleveren. Levert u uw gegevens niet op tijd aan? Dan krijgt u geen aanbod. U kunt de woning dan niet meer huren.BezichtigingKandidatennummer 1 t/m 10 worden uitgenodigd voor een bezichtiging 20-10-2025 11:00. Als u geen uitnodiging heeft dan kan u niet komen bezichtigen. Deze datum is onder voorbehoud u krijgt een notificatie per mail als de datum wijzigt.Tot slotDe oplevering van de woning kan afwijken van de advertentietekst, de plattegrond, de foto’s en de bezichtiging in verband met eventuele werkzaamheden.Aan deze advertentie kunt u geen rechten ontlenen.

Kaart