Huurwoning Amsterdam

Stellingweg 25, Amsterdam

Korte samenvatting

Locatie
Amsterdam
Huurprijs
€ 932,93
Type woning
Appartement
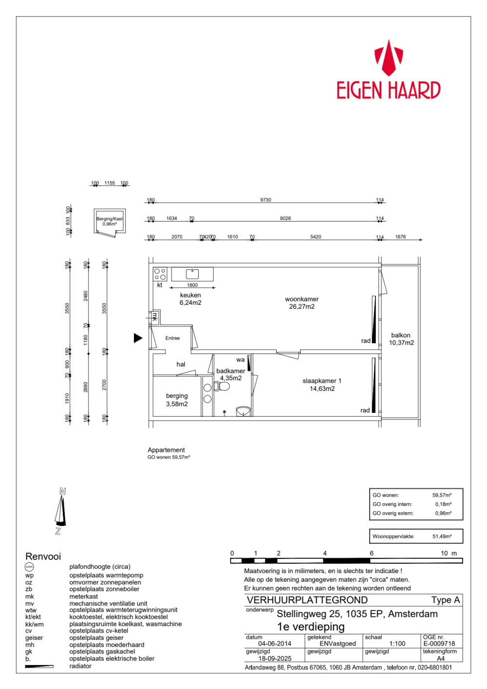
Oppervlakte:
51 m2
Kamers:
2
Slaapkamers:
1
Wachttijd:
(niet ingesteld)
Datum beschikbaar:
5 jan 2026
Maximaal inkomen:
(niet ingesteld)
Status:
Gepubliceerd
Reageren

Omschrijving woning

BijzonderhedenGeen inwonende kinderen toegestaanLet op:voor de verwarming worden er stookkosten in rekening gebracht. Bovenop de netto huur komen servicekosten, inclusief stookkosten, van ongeveer 160 Euro. De stookkosten zijn een voorschot, u ontvangt een jaarlijkse afrekening.Voorrangsregel 'Van hoog naar laag' van toepassingDit wooncomplex is een Lang Leven Thuisflat.In een Lang Leven Thuisflat kunt u zo lang mogelijk zelfstandig en comfortabel thuis wonen. Ook als de behoefte aan zorg toeneemt. Deze nieuwe manier van wonen biedt een bijzondere combinatie van zelfstandig wonen met activiteiten, en zorg en ondersteuning in de buurt wanneer u dit nodig heeft. Kijk voor meer informatie opwww.langleventhuisflat.nl.Aan deze flat zijn recent extra woningen gebouwd. De foto vanaf de buitenkant van de woning komt dus niet meer overeen met de werkelijkheid, de werkzaamheden zijn inmiddels klaar.De woningWoonkamer met open keuken1 slaapkamerWasmachine aansluiting in de badkamerToilet in de badkamerBadkamer bereikbaar vanuit hal en slaapkamerKleine externe berging op begane grondIn de buurtOpenbaar vervoerSupermarktHorecaSportscholenElektrisch kokenU kookt elektrisch en dus niet meer op gas. Dat kan even wennen zijn. In de keuken zit een perilex-aansluiting voor een elektrisch kooktoestel. Dit is een aparte (2-fase) aansluiting. U koopt zelf uw kooktoestel. Let bij het kopen van een kooktoestel dat het elektrisch vermogen niet groter is dan 7,4 kW. Misschien heeft u ook andere pannen nodig.ParkerenOm het gebouw  is er een blauwe zone om te parkeren. Dit betekent dat u in alleen kort kunt parkeren met een parkeerschijf. Bewoners kunnen wel een ontheffing aanvragen bij de gemeente.Let op: vanaf 17 november 2025 geldt ook hier betaald parkeren!Voor meer informatie verwijzen wij u naar de Gemeente Amsterdam.Let op:woningkenmerken, plattegrond en huurprijs zijn nog onder voorbehoud.Klik hiervoor meer informatie.Technische staatWe leveren de woning volgensde Eigen Haard standaardop.Houd er rekening mee dat u zelf nog wat aan de woning moet doen. Denk aan schilderen van de muren en plafonds, afstomen van behang en/ of het leggen van een vloer.Wilt u de woning huren?Welke documenten u moet inleveren op het moment dat u eerste kandidaat wordt voor de woning, leest uhier.

Kaart