Huurwoning Amsterdam

Strackéstraat 79, Amsterdam

Korte samenvatting

Locatie
Amsterdam
Huurprijs
€ 926,21
Type woning
Appartement
Oppervlakte:
52 m2
Kamers:
3
Slaapkamers:
2
Wachttijd:
(niet ingesteld)
Datum beschikbaar:
25 nov 2025
Maximaal inkomen:
(niet ingesteld)
Status:
Verlopen

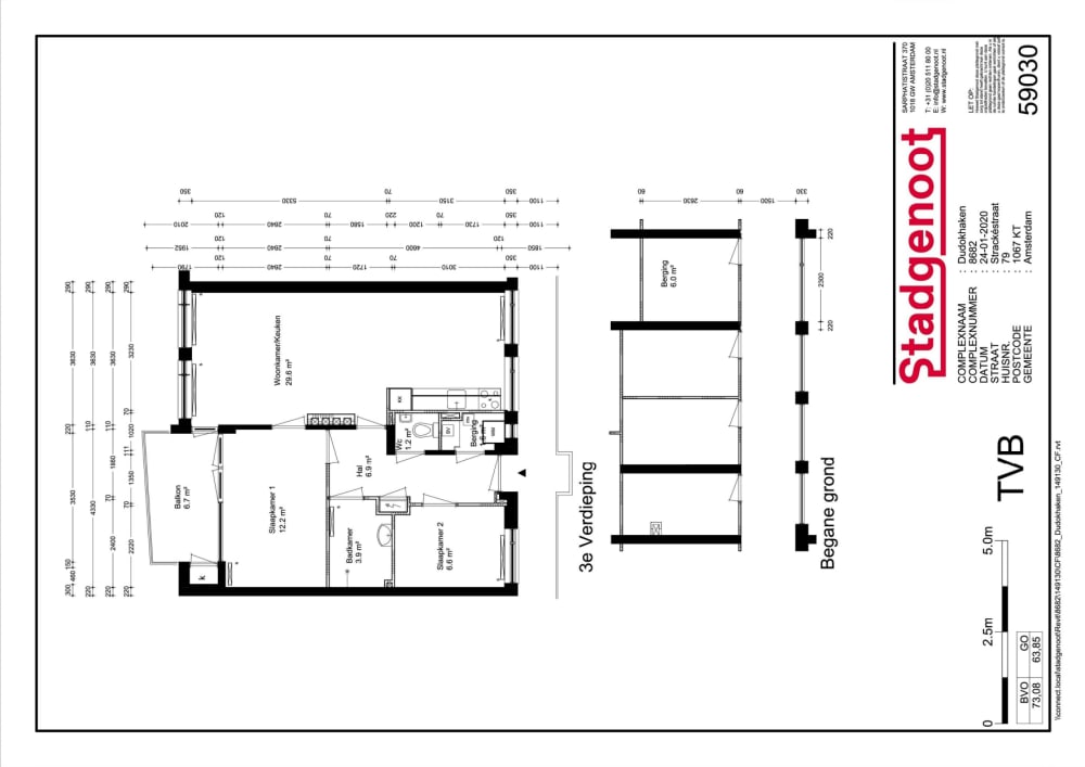
Omschrijving woning

Driekamerwoning op de derde etage woning met lift in Geuzenveld; Wibo woning voor senioren.WoningTwee slaapkamersOpen keukenBadkamer voorzien van douche; toilet apartBalkon op het westenInpandige berging waar ook de wasmachine aansluiting zitLaminaatvloer in de gehele woningBerging begane grondHouten kozijnenEr is geen hallofoon of videofoon, de deur is te openen via een app op uw telefoon!BuurtOp loopafstand van winkels en openbaar vervoerParkeren: bij sommige woningen wordt vanuit de gemeente geen parkeervergunning afgegeven. Benieuwd of het bij deze woning mogelijk is een parkeervergunning te verkrijgen? Kijk ophttps://www.amsterdam.nl/parkeren-verkeer/parkeervergunning/parkeervergunning-bewoners/) of neem contact op met de gemeente voor meer informatie. Soms is het mogelijk om in de omgeving via Stadgenoot een eigen parkeerplaats te huren. Bekijk ons huuraanbod ophttps://aanbod.stadgenoot.nl/parkeerplaatsen/huuraanbodSeniorenwoningSeniorenwoningen worden niet verhuurd aan huishoudens met kinderen. Deze woning wordt verhuurd aan een gezin met maximaal twee personen.WaarborgsomVoor Sociale Huur betaalt u een waarborgsom ter hoogte van een maand huur. De waarborgsom betaalt u samen met de eerste huur.Verzamel uw documenten op tijdWordt  u na de selectiedatum uitgenodigd voor de bezichtiging? Verzamel dan alvast uw documenten. Wij vragen u uw documenten binnen 3 dagen aan te leveren als u 1e kandidaat bent voor de woning. Lees hier welke documenten u moet aanleveren:Aan te leveren documenten.DuurzaamElektrisch koken: Er is geen gas meer in huis. U kookt dus elektrisch. In de keuken zit een Perilex-aansluiting voor een elektrisch kooktoestel. Dit is een aparte (2-fase) aansluiting. Let op! Het elektrisch vermogen van uw kooktoestel mag niet groter zijn dan 7,4 KW.Technische staatStadgenoot levert de woning schoon, heel en veilig aan u op. Houd er rekening mee dat u zelf nog wat aan de woning moet doen. Denk aan schilderen van de muren en plafonds, afstomen van behang en/of het leggen van een vloer.Let op:Woningkenmerken en plattegrond kunnen mogelijk iets afwijken van de werkelijkheid. Bijvoorbeeld omdat wij nog werkzaamheden moeten uitvoeren na de bezichtiging. De basis zoals het aantal kamers en het type woning staan vast.

Kaart