Huurwoning Amsterdam

Tekkopstraat 43, Amsterdam

Korte samenvatting

Locatie
Amsterdam
Huurprijs
€ 975,00
Type woning
Portiekwoning
Oppervlakte:
60 m2
Kamers:
3
Slaapkamers:
2
Wachttijd:
(niet ingesteld)
Datum beschikbaar:
18 mrt 2026
Maximaal inkomen:
(niet ingesteld)
Status:
Gepubliceerd
Reageren

Omschrijving woning

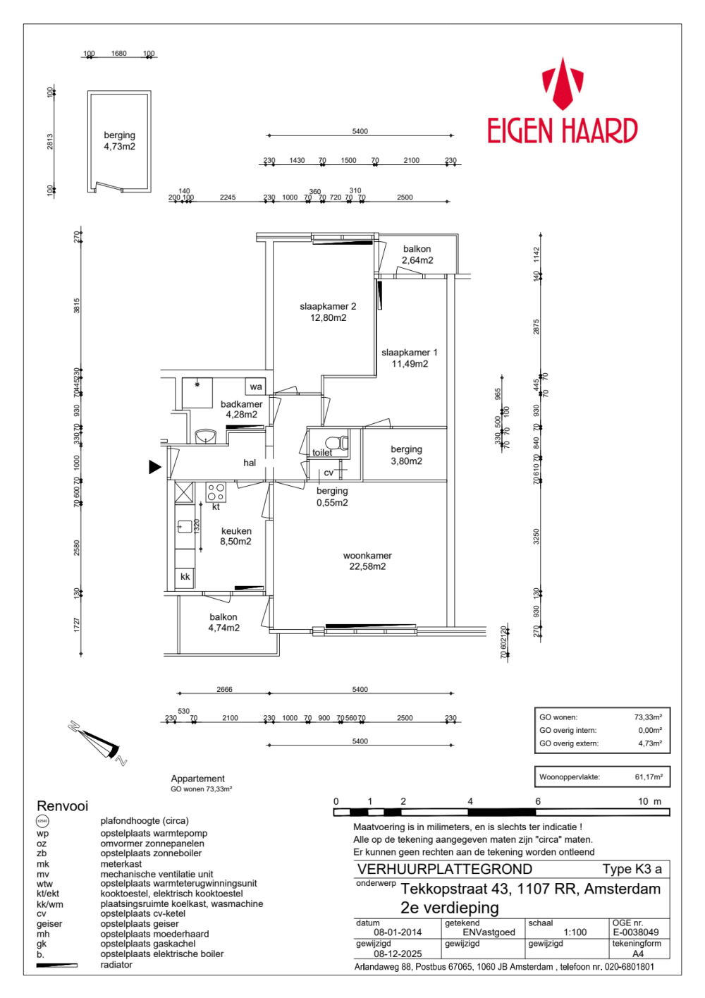
Tip!Verzamelde benodigde documentenalvast. Je hebt zemeteenna de bezichtiging nodig.Over de buurtStadsdeel Zuid-OostIn de buurt van winkelcentrum Reigersbos, VU/AMCMet de auto ben je binnen 5 minuten op de A2 of A9Op enkele fietsminuten liggen Abcoude en diverse recreatiegebieden zoals de Gaasperplas en OuderkerkerplasIndeling van de woning2e verdiepingGesloten keuken2 slaapkamersBadkamer met douche en wasmachine aansluitingApart toilet2 balkonsExterne bergingParkerenParkeren kan in de buurt van de woning met een bewonersvergunning, als er een vergunning wordt toegekend. Wij verwijzen je naar degemeentevoor informatie hierover. Optioneel is het mogelijk om in de omgeving een parkeerplaats te huren. Er kunnen wachtlijsten zijn. Bekijk onsparkeeraanbod.ToewijzingEigen Haard verhuurt huurwoningen in het middensegment op basis van het actuele inkomen (inkomen op dit moment). Zorg er daarom voor dat je actuele inkomen staat ingevuld in je profiel vóórdat je reageert op de woning. Laat dit bedrag vervolgens in je profiel staan totdat de selectie van de woning is geweest. Doe je dit niet? Dan kan het zijn dat wij je bij de gegevenscontrole moeten afwijzen voor de woning. Bekijk hier hoe je het actuelegezamenlijk jaarinkomenbepaald.Het actuele inkomen van jou en je eventuele medeaanvrager tellen beide voor 100% mee.Als je zelfstandig ondernemer (zzp'er) bent, dan moet je minimaal 2 jaar werkzaam zijn als zelfstandig ondernemer in de huidige onderneming. Ben je niet minimaal 2 jaar werkzaam als zelfstandig ondernemer in de huidige onderneming, dan kom je niet in aanmerking voor de woning.Eigen Haard wil graag passend verhuren,kijkwat dat voor jou betekent.Doorstromers krijgen voorrang bij Eigen Haard. Bij Eigen Haard is een doorstromer iemand die een zelfstandige sociale huurwoning van een corporatie leeg achterlaat binnen stadsregio Amsterdam.Hierleggen we je uit wat het verschil is tussen een doorstromer en een instromer.Huur je van Eigen Haard een sociale huurwoning en laat je die leeg achter? Je krijgt dan voorrang op andere doorstromers en er geldt voor jou geen maximale inkomenseis, wel de minimale inkomenseis.

Kaart