Huurwoning Amsterdam

Tidorestraat 190, Amsterdam

Korte samenvatting

Locatie
Amsterdam
Huurprijs
€ 726,21
Type woning
Portiekwoning
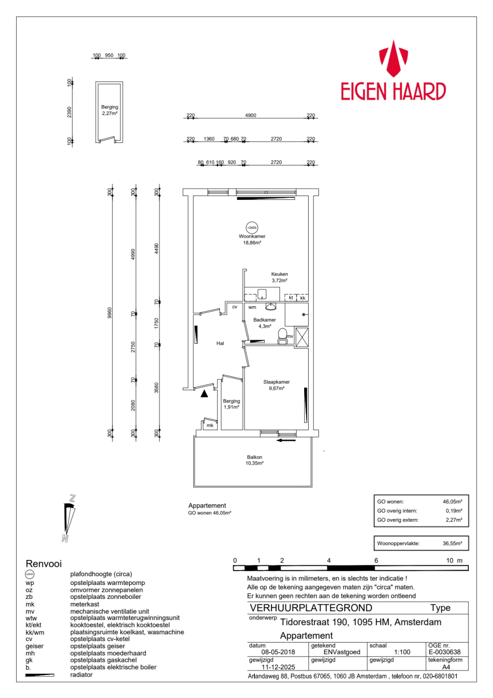
Oppervlakte:
36 m2
Kamers:
2
Slaapkamers:
1
Wachttijd:
(niet ingesteld)
Datum beschikbaar:
10 mrt 2026
Maximaal inkomen:
€ 39.055,00
Status:
Gepubliceerd
Reageren

Omschrijving woning

BijzonderhedenJongerenwoningVanwege de brandveiligheid is het niet toegestaan om spullen en objecten op de galerij en in de algemene ruimte te plaatsen.De woningOpen keukenWasmachine aansluiting in de badkamerToilet in de badkamerIn de buurtOpenbaar vervoerSupermarktHorecaSportscholenFlevoparkJongerenwoningenVoor deze woning wordt een tijdelijk contract afgesloten, met een looptijd van maximaal 5 jaar.Bij deze jongerenwoning geldt dat er minimaal 1 en maximaal 2 personen mogen wonen.Een jongerencontract wordt afgesloten tót de leeftijd van 28 jaar. Als u 28 wordt ná het reageren op de woning maar vóór het tekenen van de huurovereenkomst dan komt u niet in aanmerking.Let op:studenten die een voltijdse dagopleiding volgen en/of staan ingeschreven bij Studentenwoningweb komen niet in aanmerking voor een jongerenwoning met een vijfjarencontract, tenzij er in de gemeente geen studentenwoningen zijn. Studenten die een deeltijdopleiding volgen mogen wel reageren op jongerenwoningen met een vijfjarencontract.Let op:woningkenmerken, energielabel, plattegrond en huurprijs zijn nog onder voorbehoud. Klikhiervoor meer informatie.Technische staatWe leveren de woning volgens de Eigen Haard standaard op.  Voor meer informatie kijkt u op onzesite.Houd er rekening mee dat u zelf ook nog het een en ander moet doen om de woning naar uw smaak te maken. Denk aan schilderen van de muren en plafonds, afstomen van behang en/ of het leggen van een vloer.Wilt u de woning huren?Voor meer informatie over welke documenten u nog meer moet inleveren op het moment dat u eerste kandidaat wordt voor de woning, kijkt u op onzewebsiteParkeren/ vergunning niet mogelijk:Rondom de woning geldt betaald parkeren. Bewoners van (nieuwbouw)woningen komen niet meer in aanmerking voor een parkeervergunning. Wij verwijzen u naar de gemeente voor informatie hierover. Optioneel is het mogelijk om in de omgeving een parkeerplaats te huren. Bekijk ons aanbod op dewebsitevan Eigen Haard.Parkeren/ met vergunning:Linknaar gemeente Amsterdam

Kaart