Huurwoning Badhoevedorp

Keizersweg 217B, Badhoevedorp

Korte samenvatting

Locatie
Badhoevedorp
Huurprijs
€ 633,25
Type woning
Portiekwoning
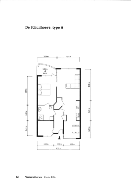
Oppervlakte:
58 m2
Kamers:
3
Slaapkamers:
2
Wachttijd:
(niet ingesteld)
Datum beschikbaar:
1 jul 2022
Maximaal inkomen:
€ 39.055,00
Status:
Verlopen

Omschrijving woning

Ruime 3-kamerwoning op de eerste verdieping van het complex. Gemeenschappelijke ontmoetingsruimte / restaurant, gemeenschappelijk dakterras, kapsalon en eventuele zorg aanwezig. In het complex is een bewonersconsulent werkzaam. De woning is voorzien van dubbelglas en collectieve cv, de huurprijs is inclusief voorschotbedrag stookkosten. Voor de toewijzing van de woning en het controleren van uw inkomsten heeft Woonzorg een verklaring geregistreerd inkomen nodig. U kunt dit formulier aanvragen bij de Belastingdienst via telefoonnummer 0800-0543, vraagt u dit formulier alvast aan! Voorwaarden: Inkomensverklaring verplicht Een verklaring geregistreerd inkomen of een definitieve aanslag inkomstenbelasting van de Belastingdienst van u en alle meeverhuizende personen (behalve kinderen) is verplicht. Deze moet van het voorgaande jaar zijn, of als deze nog niet beschikbaar is, van het jaar daarvoor. Vraag uw  inkomensverklaring  direct aan door in te loggen op Mijn Belastingdienst of via de Belastingtelefoon (0800-0543). De corporatie controleert uw inkomen bij de toewijzing en wil uw inkomensverklaring(en) altijd ontvangen, ook als er geen bedrag op staat. Zorg ervoor dat het inkomen in uw inschrijving klopt. Anders loopt u het risico dat de corporatie u afwijst als u eerste kandidaat wordt.

Kaart