Huurwoning Bennebroek

Van Verschuer Brantslaan 22, Bennebroek

Korte samenvatting

Locatie
Bennebroek
Huurprijs
€ 962,03
Type woning
Tussenwoning
Oppervlakte:
66 m2
Kamers:
4
Slaapkamers:
3
Wachttijd:
(niet ingesteld)
Datum beschikbaar:
18 mrt 2026
Maximaal inkomen:
(niet ingesteld)
Status:
Verlopen

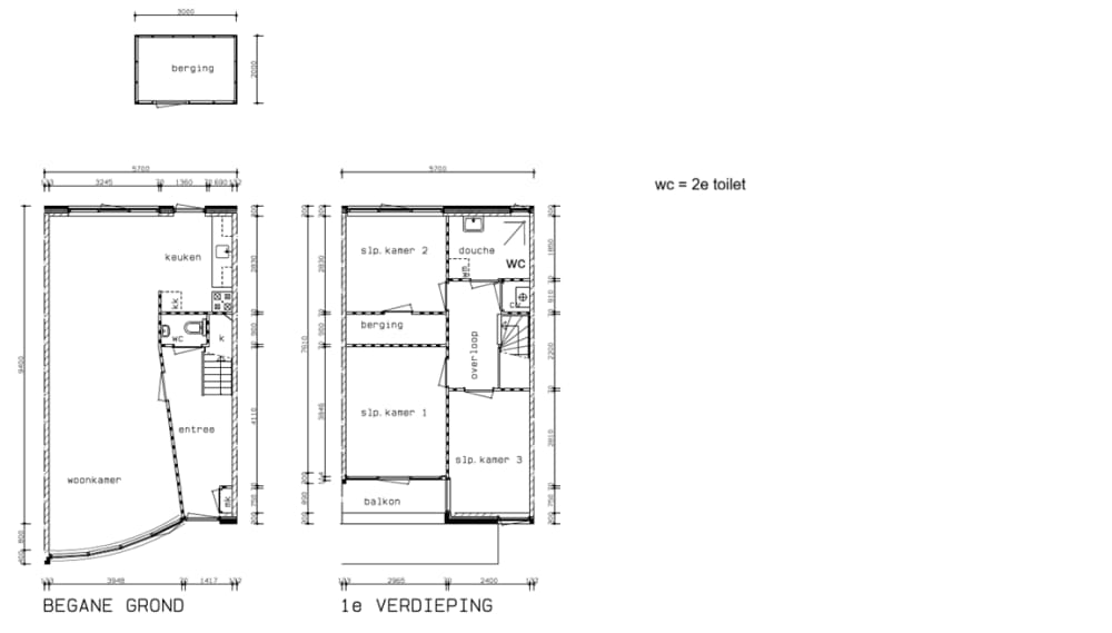
Omschrijving woning

Lichte eengezinswoning met woonkamer met open keuken, drie slaapkamers, balkon én een voor- en achtertuin!LET OP! Belangrijke wijziging als je een woning zoektGa je een woning bezichtigen, verzamel alvast je gegevens. Ook als je geen eerste kandidaat bent. Je hebt maar een paar dagen de tijd.  Per 2 februari werken alle woningcorporaties in de regio op dezelfde manier. Dit maakt het toewijzen van een woning duidelijker en makkelijker voor iedereen. Lees meer over wat dit voor jou betekent op dezeinformatiepaginavan MijnWoonservice.Bezichtiging en intakegesprekDebezichtigingis ingeplandop 23 maart 2026 om 10.30 uur(onder voorbehoud). De eerste vijftien kandidaten worden via Woonservice uitgenodigd voor bezichtiging. Kom je kijken? Verzamel dan alvast je gegevens.Het telefonisch intake gesprek is ingeplandop 26 maart 2026 om 14:00 uur.WoningOpen keukenKoken op elektraToilet op begane grondBadkamer met tweede toiletBadkamer met wasmachine opstellingSchuur in de achtertuinNieuw keukenblokVia slaapkamer 1 betreed u het balkon (voorzijde)Voortuin, ligging op het noordenAchtertuin, ligging op het zuidenGeen zolderMechanische ventilatieZonnepanelen voor eigen gebruikVerwarming via eigen cv-ketelGratis parkerenBekijk voor meer informatie de kenmerken en de plattegrond van de woningSchenkingenDe volgende zaken zijn als schenking achtergebleven in de woning:Elektrische zonwering met afstandsbediening aan achtergevelToiletrolhouderPlanken in kast slaapkamer tweeBij ondertekening van de huurovereenkomst ben je eigenaar. Gaan ze kapot, dan zijn de kosten voor jou en moet je zelf zorgen dat het wordt gerepareerd of vervangen. Verhuis je? Dan moet je deze schenking(en) verwijderen.OpleveringPre Wonenlevert iedere woning op metbasiskwaliteit: schoon, heel en veilig. Een bestaande woning heeft altijd gebruikssporen van voorgaande huurder(s). Zelf knapt u de woning op naar uw zin en smaak. Denk hierbij aan het leggen van vloeren (minimaal 10 decibel reducerend), schilderen/behangen van muren, deuren, (raam)kozijnen en plafonds.Dit mag u van uw nieuwe huurwoning verwachten - Pré Wonen.De oplevering van de woning kan afwijken van de advertentietekst, de plattegrond, de foto’s en de bezichtiging in verband met eventuele werkzaamheden. Aan deze advertentie kunt u geen rechten ontlenen.BuurtValt onder de Gemeente BloemendaalGroene wijkBoodschappen in kleine centrum van BennebroekIn de buurt zitten wel kapperszaken, een ijssalon en een aantal restaurants.Centrum van Haarlem, strand en de zee binnen 20 minuten met de auto bereikbaar

Kaart