Huurwoning Bussum

Amersfoortsestraatweg 85, Bussum

Korte samenvatting

Locatie
Bussum
Huurprijs
€ 763,91
Type woning
Portiekwoning
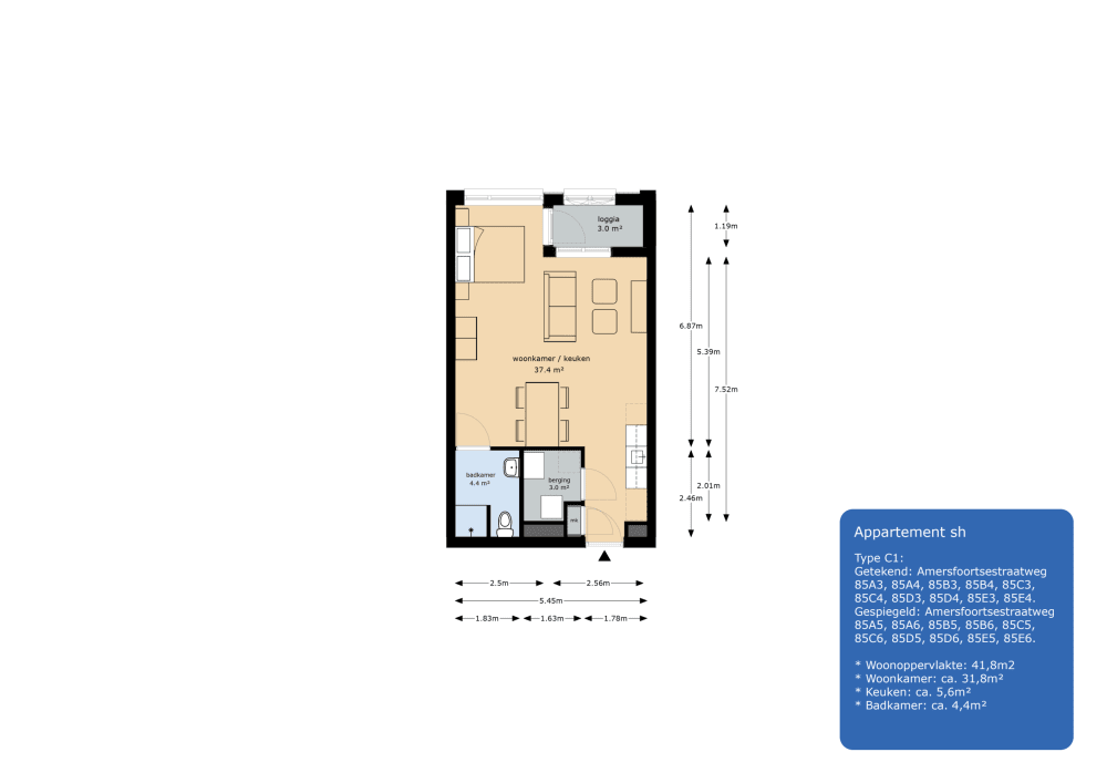
Oppervlakte:
45 m2
Kamers:
1
Slaapkamers:
0
Wachttijd:
(niet ingesteld)
Datum beschikbaar:
24 mrt 2026
Maximaal inkomen:
(niet ingesteld)
Status:
Gepubliceerd
Reageren

Omschrijving woning

De Pionier | de AlliantieKlik op de linkNieuwbouw in BussumAan de Amersfoortsestraatweg 85 in Bussum bouwen we een woongebouw met 48 nieuwe sociale huurwoningen: de Pionier. De woningen zijn ideaal voor jongeren en senioren. Het gebouw staat in een rustige groene buurt die grenst aan mooie natuurgebieden. Vroeger stond hier een groot kantoor, straks is het een prettig en betaalbaar thuis voor 48 huishoudens.  Het ligt in de wijk Ooster Eng-Zuid aan de rand van Bussum, naast het buurtschap Crailo. Vermoedelijke opleverdatum eerste week van juli 2026.Dichtbij natuur en winkelsVanaf de Pionier loop je zo naar de Bussumerheide, waar je prachtige wandelingen en fietstochten kunt maken. Voor de dagelijkse boodschappen is het winkelgebied aan de Koekoeklaan het dichtstbij, op 1,2 kilometer afstand. Je vindt er onder andere een supermarkt, drogist, slager en bakker.Goed bereikbaarVanaf de Pionier ben je met de auto binnen een paar minuten op de snelweg (A1). Het treinstation Bussum-Zuid is 10 minuten fietsen. Ook het centrum van Bussum is ongeveer 10 minuten met de fiets. Er is een bushalte op loopafstand, aan de Amersfoortsestraatweg.Parkeren en fietsen stallenOp het terrein zijn 34 parkeerplaatsen beschikbaar voor huurders van de Alliantie (€ 20 per maand prijspeil 2026). Bewoners van de studio’s hebben geen eigen berging maar kunnen hun fiets stallen in de 2 gemeenschappelijke bergingen in de vroegere kelder van het gebouw.Duurzaam wonenDe woningen worden verwarmd en gekoeld met een eigen warmtepomp per woning. Hiermee halen we warmte uit de grond (bodemwarmte). De ventilatie gaat via een toe- en afvoersysteem waarbij warmte wordt hergebruikt. We kiezen dus voor een duurzame manier van verwarmen en verkoelen waarbij er geen uitstoot van CO2 is. De woningen krijgen het energielabel A++.Elektrisch kokenLET OP: Voorrangregel op de spelregels.Woningzoekende van 18 tot en met 27 jaar die minimaal 1 jaar woonachtig zijn in de gemeente Gooise Meren.Wij zullen controleren of je minimaal 1 jaar woonachtig bent in Gooise Meren. Als dit niet het geval is vervalt je positie in woningnet.

Kaart