Huurwoning Bussum

Jozef Israëlslaan 61, Bussum

Korte samenvatting

Locatie
Bussum
Huurprijs
€ 770,07
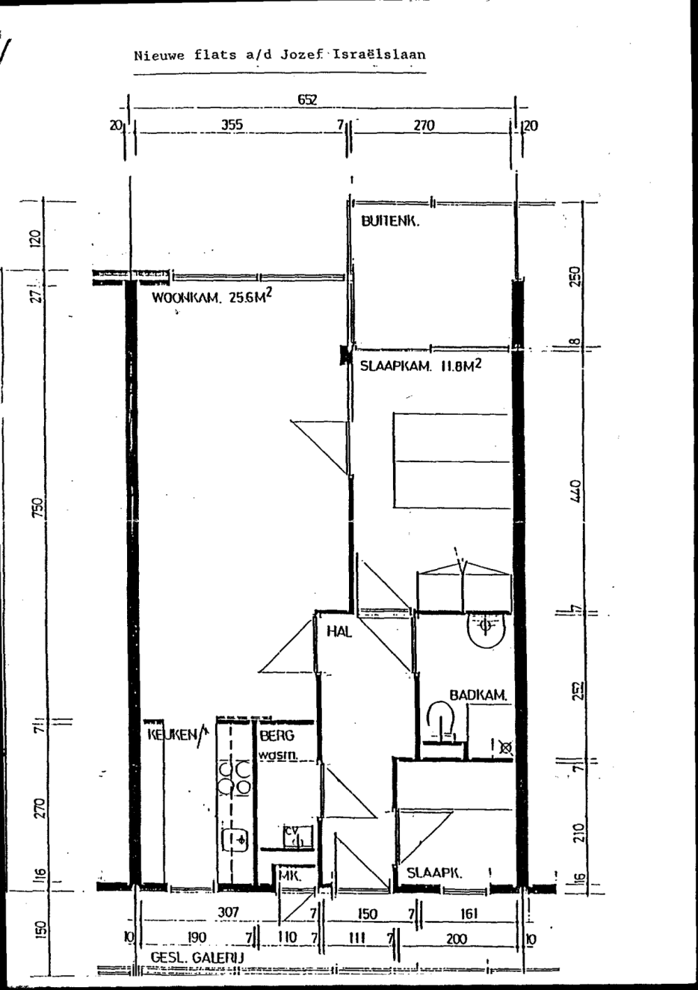
Type woning
Portiekwoning
Oppervlakte:
50 m2
Kamers:
3
Slaapkamers:
2
Wachttijd:
(niet ingesteld)
Datum beschikbaar:
6 mrt 2025
Maximaal inkomen:
(niet ingesteld)
Status:
Verlopen

Omschrijving woning

Dit seniorenappartement ligt naast verzorgingshuis de Godelinde.Bij huize Godelinde is een restaurant aanwezig waar u tegen betaling gebruik kunt maken van maaltijden.Aan de Huizerweg zijn wat winkels op loopafstand bereikbaar. (Bakker, Slager, Wijnhandel, Kapper).Bij het wooncomplex ligt het park ’t Mouwtje waar u een fijne wandeling kunt maken.Koken op gas, dubbele beglazing, balkon, lift aanwezig.Huurprijs is exclusief kosten eigen gebruik gas, licht en water.U kunt de woning betreden met een rollator.In de kelder van het complex is een scootmobiel ruimte. Buiten bij de fietsenhok is ook een scootmobiel ruimteMen dient zelfstandig te kunnen wonen.Omdat dit een senioren complex is zijn inwonende kinderen, kleinkinderen etc. niet toegestaan3-kamer appartement op de begane grond met terras. Het terras ligt aan de gemeenschappelijke tuin.2 slaapkamers, een badkamer met toilet.  Open keuken. De grote slaapkamer is via een schuifdeur afgesloten van de woonkamer. Via de slaapkamer kunt u naar het terras. In de inpandige berging is plek voor de wasmachine.

Kaart