Toggle navigation
Provincies
Noord-Brabant
Zuid-Holland
Noord-Holland
Gelderland
Limburg
Overijssel
Utrecht
Groningen
Friesland
Drenthe
Zeeland
Flevoland
Vlaams Gewest
Plaatsen
Wassenaar
Groningen
Den Haag
Amsterdam
Leeuwarden
Zwolle
Breda
Utrecht
Enschede
Middelburg
Tilburg
Leiden
Roosendaal
Veenendaal
Almere
Home
Home
Overzicht sociale huurwoningen
Noord-Holland
Den Helder
Amstelstraat 14
Huurwoning Den Helder
Amstelstraat 14,
Den Helder
Previous
Next
Korte samenvatting
Locatie
Den Helder
Huurprijs
€ 731,93
Type woning
Eengezinswoning
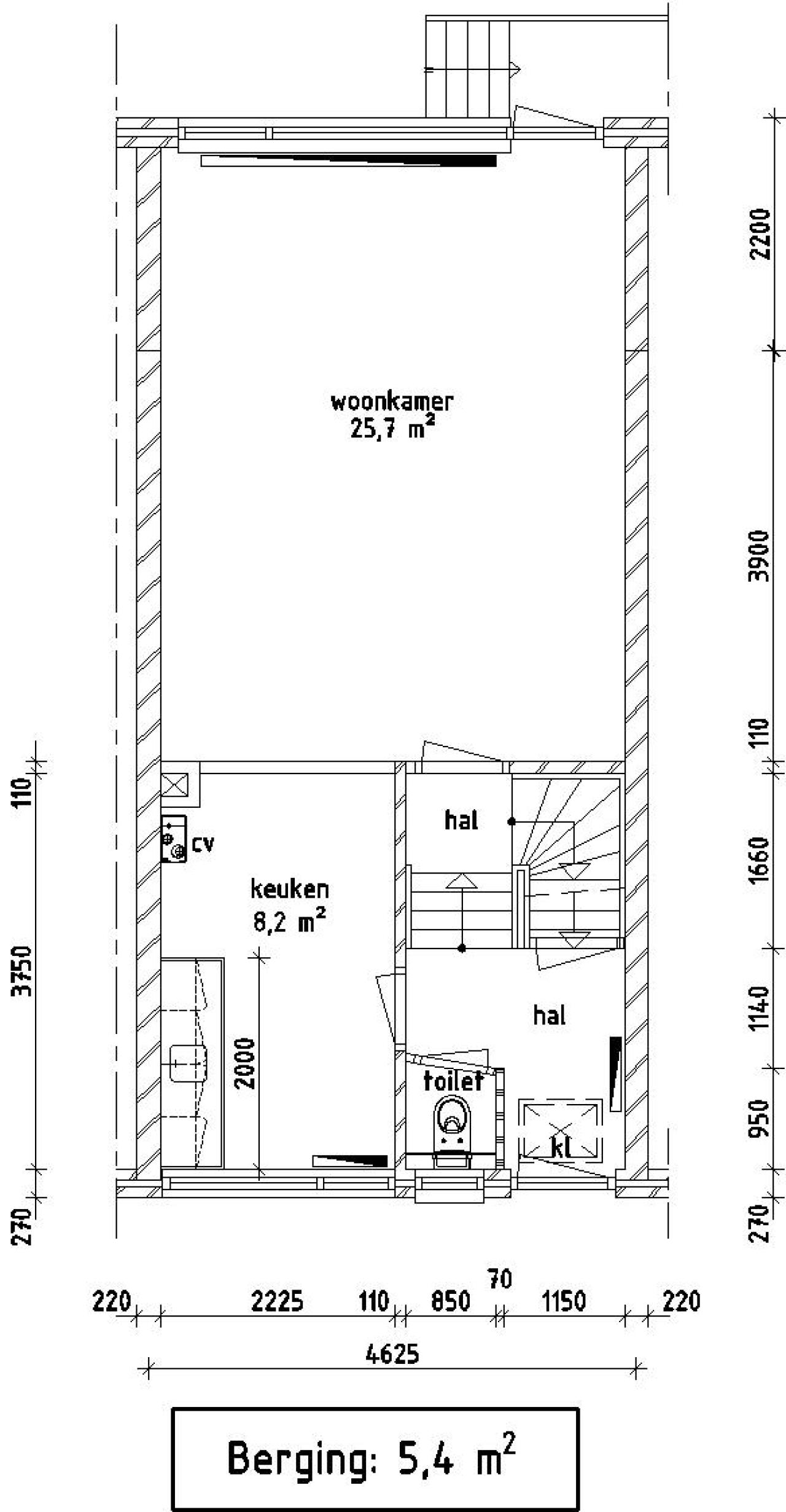
Oppervlakte:
82 m
2
Kamers:
4
Slaapkamers:
3
Wachttijd:
(niet ingesteld)
Datum beschikbaar:
13 mrt 2025
Maximaal inkomen:
€ 39.055,00
Status:
Verlopen
Omschrijving woning
Kaart