Toggle navigation
Provincies
Noord-Brabant
Zuid-Holland
Noord-Holland
Gelderland
Limburg
Overijssel
Utrecht
Groningen
Friesland
Drenthe
Zeeland
Flevoland
Vlaams Gewest
Plaatsen
Groningen
Den Haag
Tilburg
Elst
Utrecht
Breda
Harderwijk
Ermelo
Zwolle
Zoetermeer
Enschede
Weert
Amsterdam
Waalwijk
Leeuwarden
Home
Home
Overzicht sociale huurwoningen
Noord-Holland
Den Helder
Amstelstraat 16
Huurwoning Den Helder
Amstelstraat 16,
Den Helder
Previous
Next
Korte samenvatting
Locatie
Den Helder
Huurprijs
€ 731,93
Type woning
Eengezinswoning
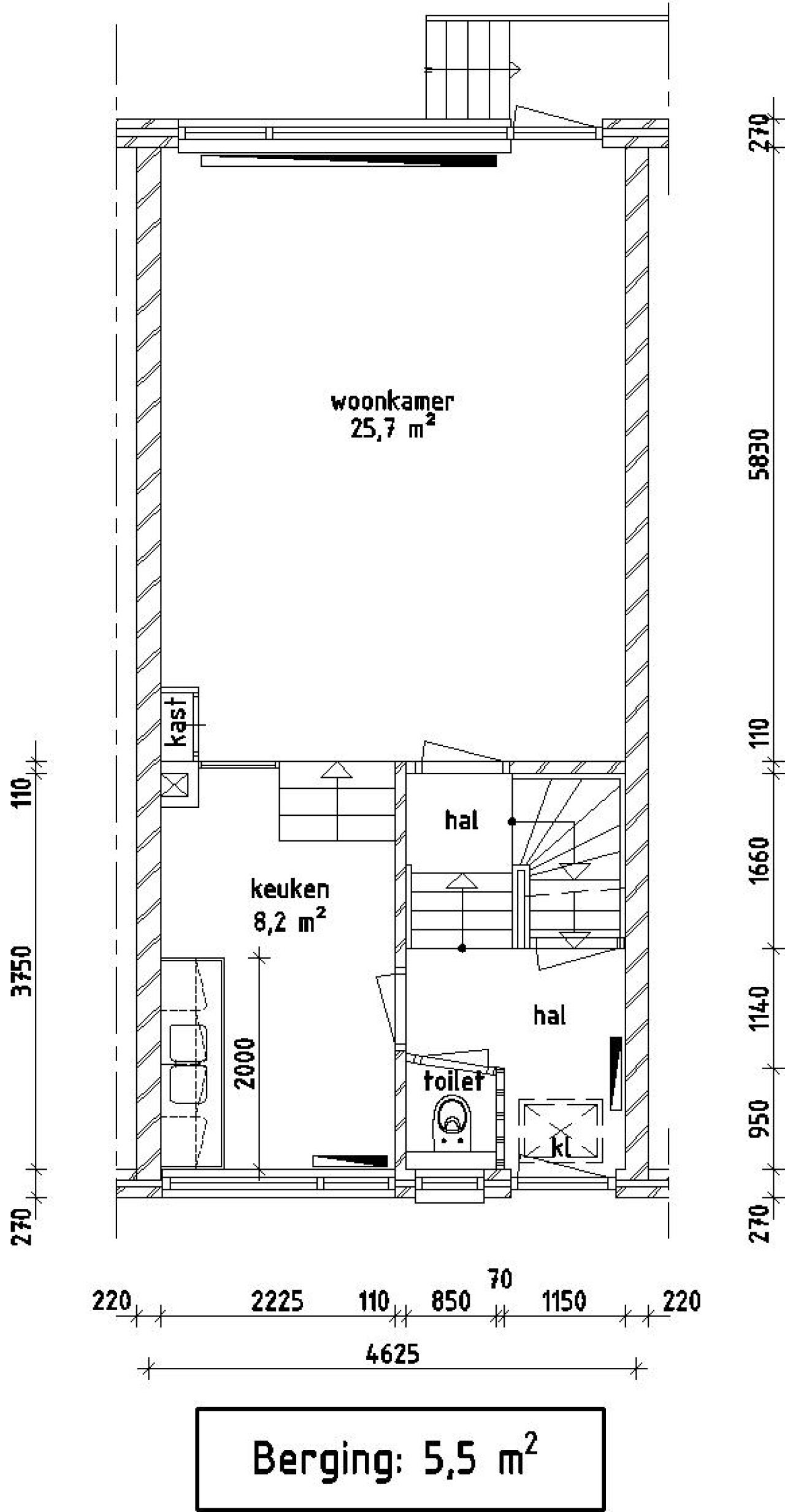
Oppervlakte:
82 m
2
Kamers:
4
Slaapkamers:
3
Wachttijd:
(niet ingesteld)
Datum beschikbaar:
16 dec 2025
Maximaal inkomen:
€ 39.055,00
Status:
Gepubliceerd
Reageren
Omschrijving woning
Kaart