Toggle navigation
Provincies
Noord-Brabant
Zuid-Holland
Noord-Holland
Gelderland
Limburg
Overijssel
Utrecht
Groningen
Friesland
Drenthe
Zeeland
Flevoland
Vlaams Gewest
Plaatsen
Amsterdam
Den Haag
Leiden
Zoetermeer
Enschede
Gorinchem
Leeuwarden
Breda
Utrecht
Groningen
Tilburg
Ugchelen
Oosterhout
Hengelo
Roosendaal
Home
Home
Overzicht sociale huurwoningen
Noord-Holland
Den Helder
Anjelierstraat 12
Huurwoning Den Helder
Anjelierstraat 12,
Den Helder
Previous
Next
Korte samenvatting
Locatie
Den Helder
Huurprijs
€ 619,44
Type woning
Eengezinswoning
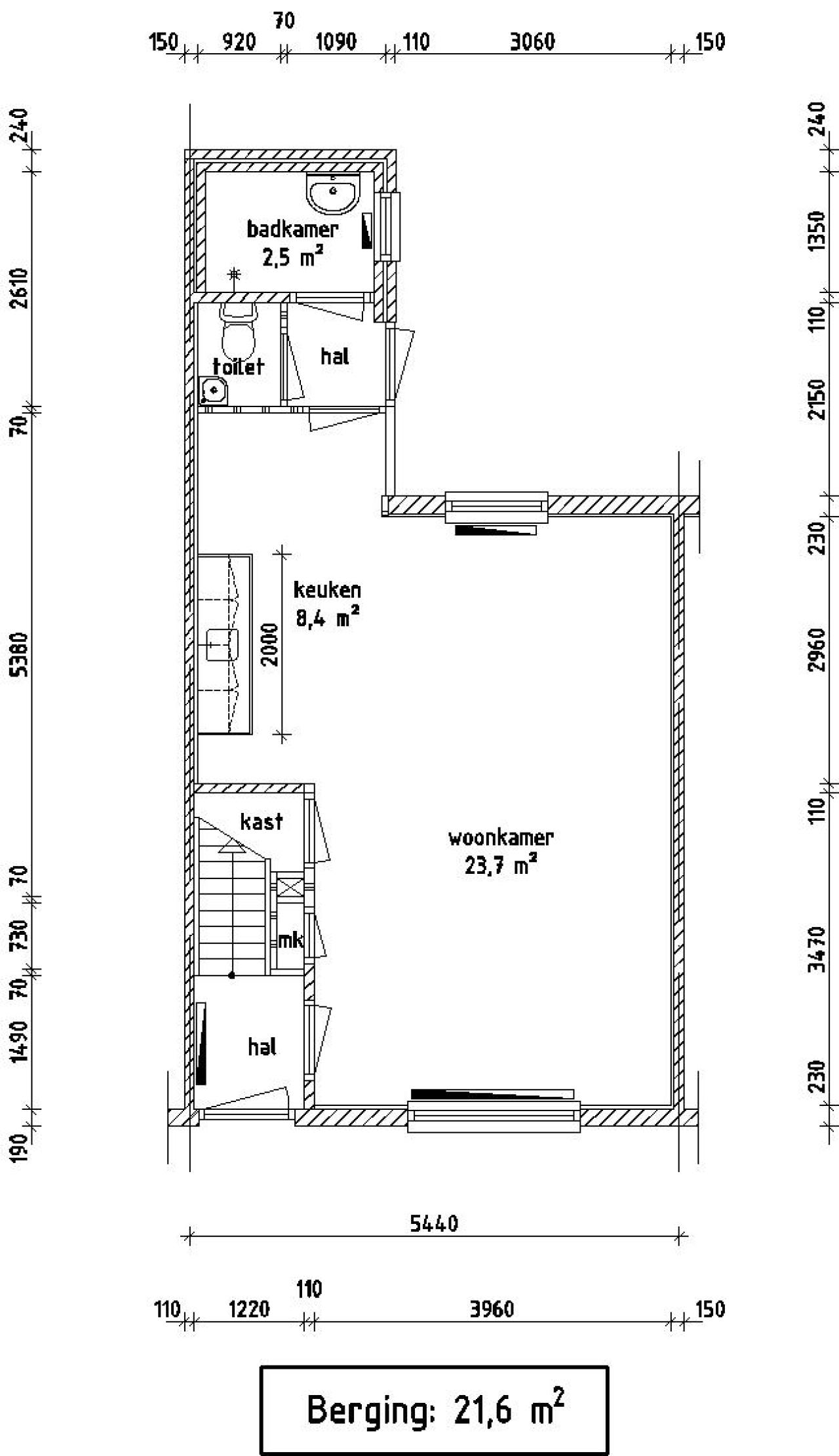
Oppervlakte:
65 m
2
Kamers:
4
Slaapkamers:
3
Wachttijd:
(niet ingesteld)
Datum beschikbaar:
16 apr 2025
Maximaal inkomen:
€ 39.055,00
Status:
Verlopen
Omschrijving woning
Exclusief huurverhoging 1 juli 2025
Kaart