Huurwoning Den Helder

Dirk Abbesteelaan 14, Den Helder

Korte samenvatting

Locatie
Den Helder
Huurprijs
€ 763,47
Type woning
Eengezinswoning
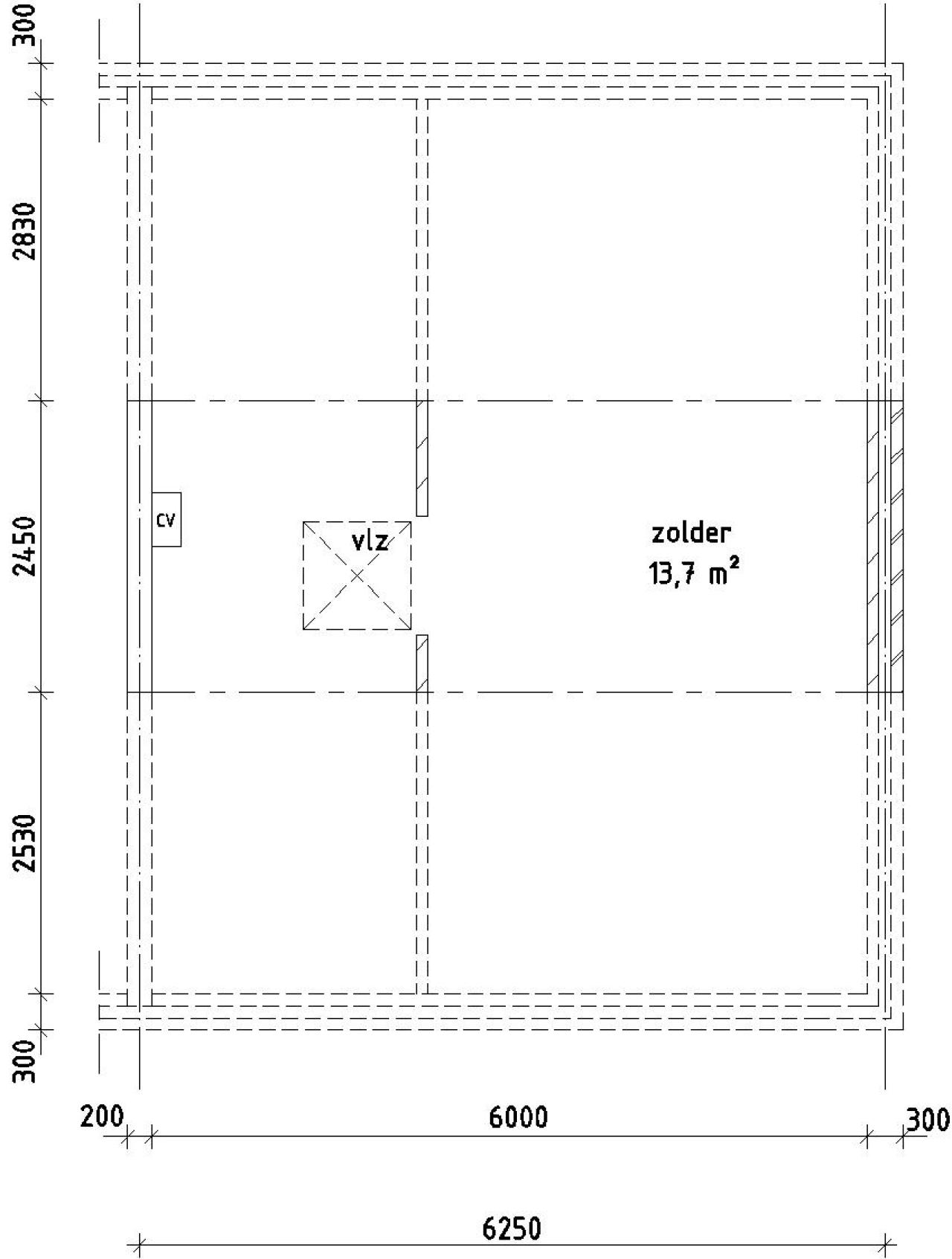
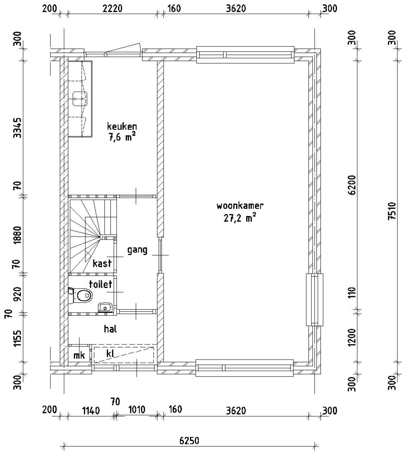
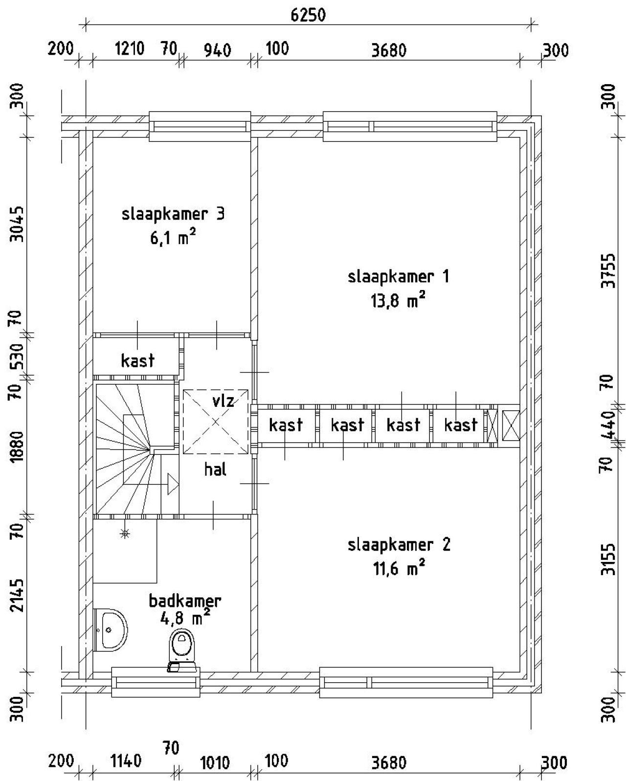
Oppervlakte:
92 m2
Kamers:
4
Slaapkamers:
3
Wachttijd:
(niet ingesteld)
Datum beschikbaar:
6 dec 2022
Maximaal inkomen:
(niet ingesteld)
Status:
Verlopen

Omschrijving woning

" "

Kaart