Toggle navigation
Provincies
Noord-Brabant
Zuid-Holland
Noord-Holland
Gelderland
Limburg
Overijssel
Utrecht
Groningen
Friesland
Drenthe
Zeeland
Flevoland
Vlaams Gewest
Plaatsen
Wassenaar
Groningen
Amsterdam
Leeuwarden
Utrecht
Den Haag
Breda
Zwolle
Leiden
Tilburg
Enschede
Almere
Hoogezand
Hilversum
Veenendaal
Home
Home
Overzicht sociale huurwoningen
Noord-Holland
Den Helder
Eyserhof 22
Huurwoning Den Helder
Eyserhof 22,
Den Helder
Previous
Next
Korte samenvatting
Locatie
Den Helder
Huurprijs
€ 424,40
Type woning
Seniorenwoning
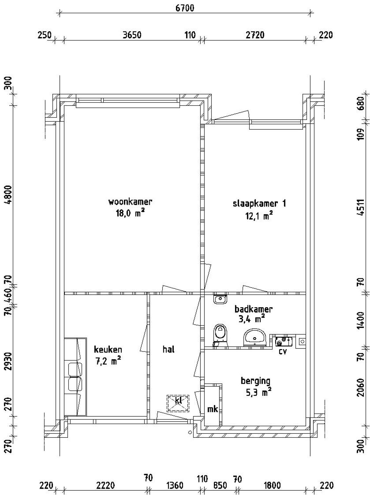
Oppervlakte:
46 m
2
Kamers:
2
Slaapkamers:
1
Wachttijd:
(niet ingesteld)
Datum beschikbaar:
27 jun 2023
Maximaal inkomen:
€ 39.055,00
Status:
Verlopen
Omschrijving woning
" "
Kaart