Huurwoning Den Helder

Klipperstraat 53, Den Helder

Korte samenvatting

Locatie
Den Helder
Huurprijs
€ 673,49
Type woning
Eengezinswoning
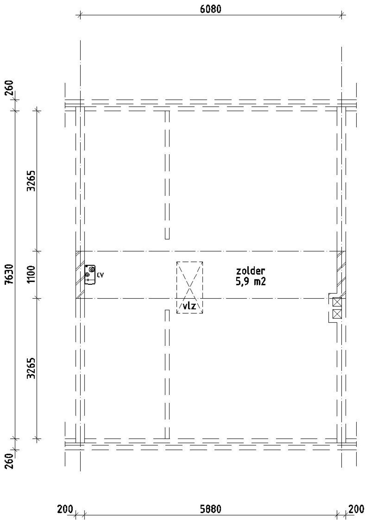
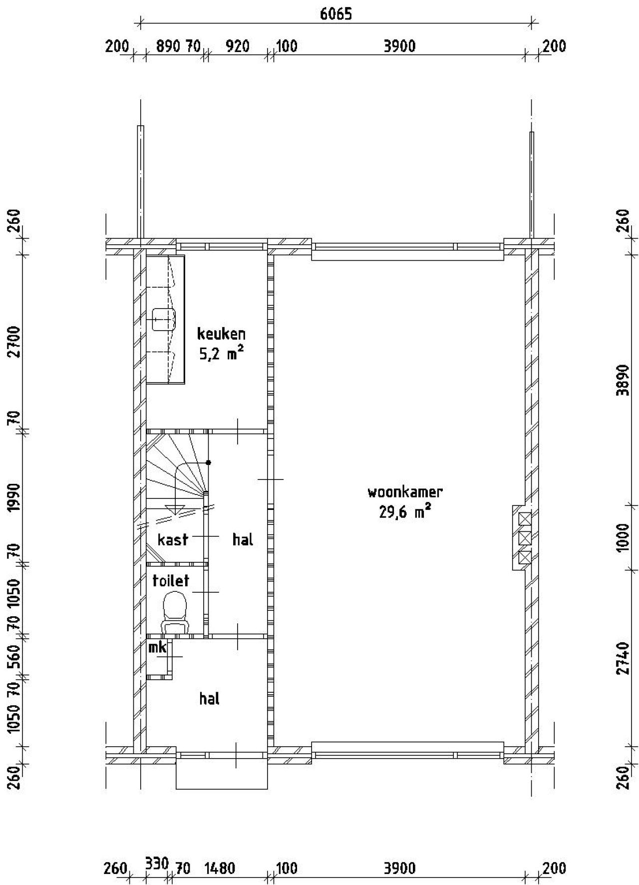
Oppervlakte:
85 m2
Kamers:
5
Slaapkamers:
4
Wachttijd:
(niet ingesteld)
Datum beschikbaar:
15 dec 2022
Maximaal inkomen:
€ 39.055,00
Status:
Verlopen

Omschrijving woning

" "

Kaart