Huurwoning Den Helder

Olivier van Noortstraat 26, Den Helder

Korte samenvatting

Locatie
Den Helder
Huurprijs
€ 738,63
Type woning
Eengezinswoning
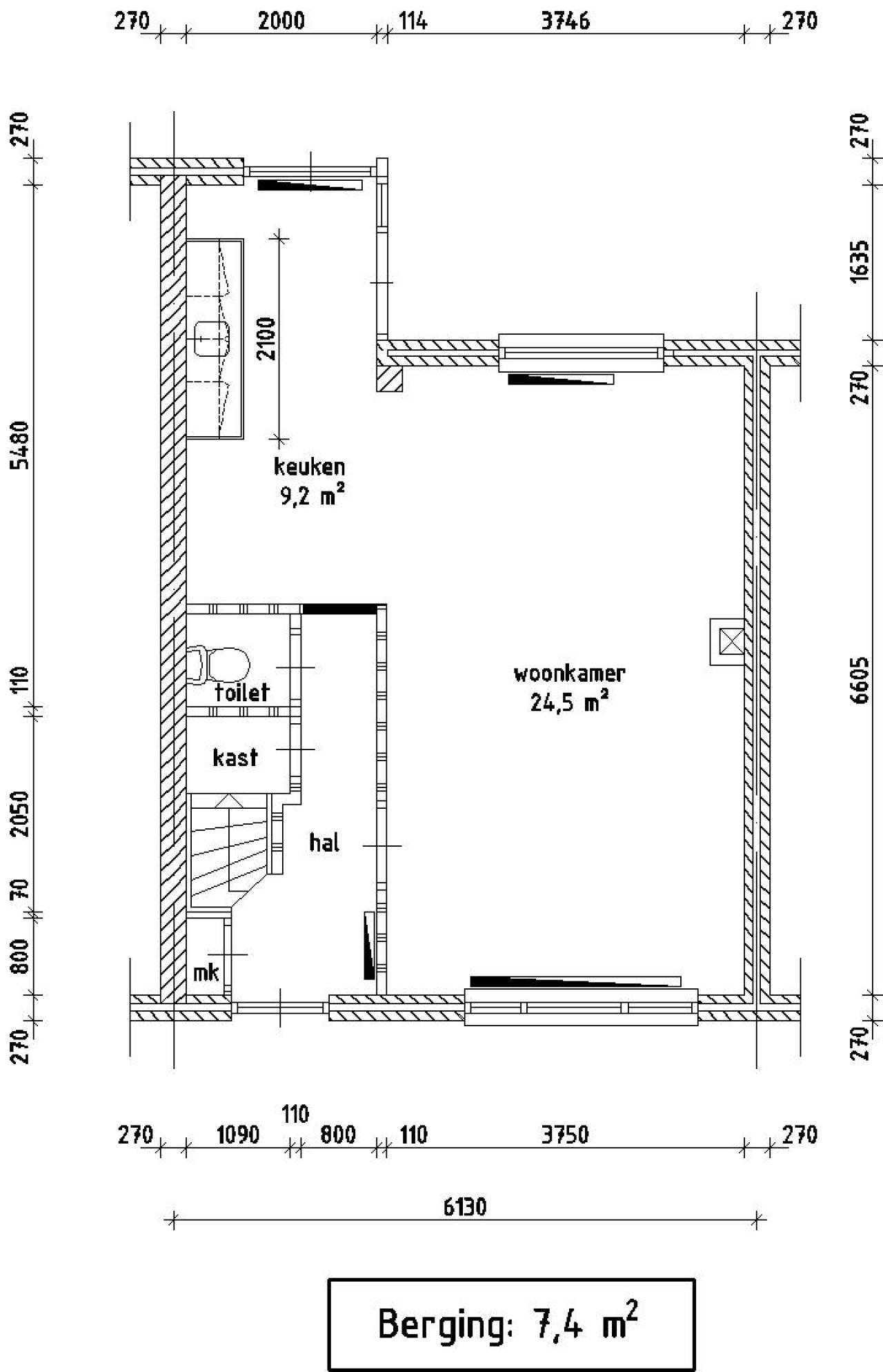
Oppervlakte:
80 m2
Kamers:
4
Slaapkamers:
3
Wachttijd:
(niet ingesteld)
Datum beschikbaar:
16 dec 2025
Maximaal inkomen:
(niet ingesteld)
Status:
Gepubliceerd
Reageren

Omschrijving woning

Kaart