Huurwoning Den Helder

Olivier van Noortstraat 77, Den Helder

Korte samenvatting

Locatie
Den Helder
Huurprijs
€ 599,51
Type woning
Eengezinswoning
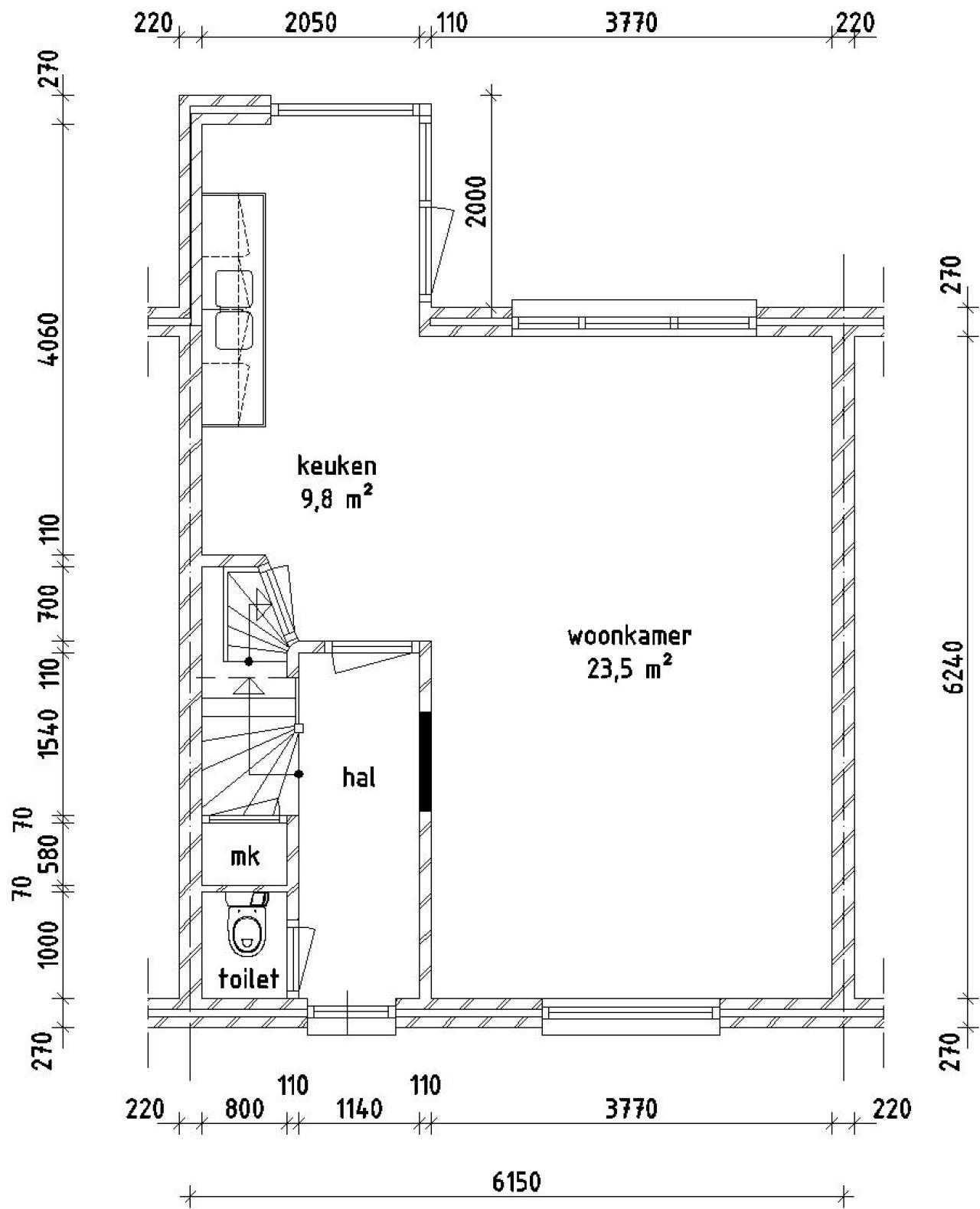
Oppervlakte:
76 m2
Kamers:
4
Slaapkamers:
3
Wachttijd:
(niet ingesteld)
Datum beschikbaar:
6 dec 2022
Maximaal inkomen:
€ 39.055,00
Status:
Verlopen

Omschrijving woning

" "

Kaart