Huurwoning Den Helder

Schoenerstraat 64, Den Helder

Korte samenvatting

Locatie
Den Helder
Huurprijs
€ 647,99
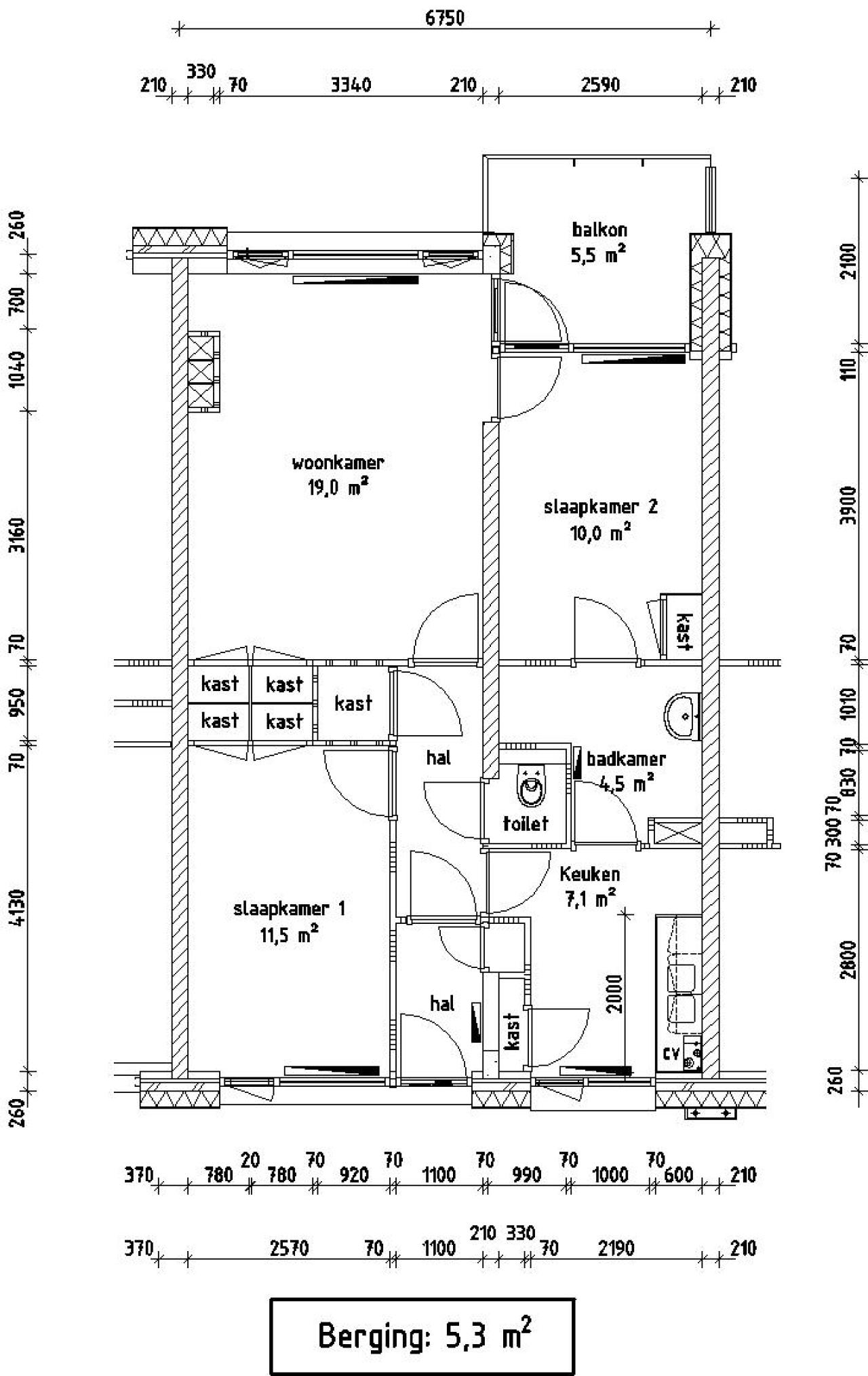
Type woning
Appartement
Oppervlakte:
57 m2
Kamers:
3
Slaapkamers:
2
Wachttijd:
(niet ingesteld)
Datum beschikbaar:
30 sep 2025
Maximaal inkomen:
€ 39.055,00
Status:
Verlopen

Omschrijving woning

Kaart