Toggle navigation
Provincies
Noord-Brabant
Zuid-Holland
Noord-Holland
Gelderland
Limburg
Overijssel
Utrecht
Groningen
Friesland
Drenthe
Zeeland
Flevoland
Vlaams Gewest
Plaatsen
Amsterdam
Den Haag
Leiden
Leeuwarden
Utrecht
Zoetermeer
Tilburg
Zaandam
Enschede
Roosendaal
Breda
Almere
Alphen aan den Rijn
Dordrecht
Haarlem
Home
Home
Overzicht sociale huurwoningen
Noord-Holland
Den Helder
Spechtstraat 28
Huurwoning Den Helder
Spechtstraat 28,
Den Helder
Previous
Next
Korte samenvatting
Locatie
Den Helder
Huurprijs
€ 846,03
Type woning
Eengezinswoning
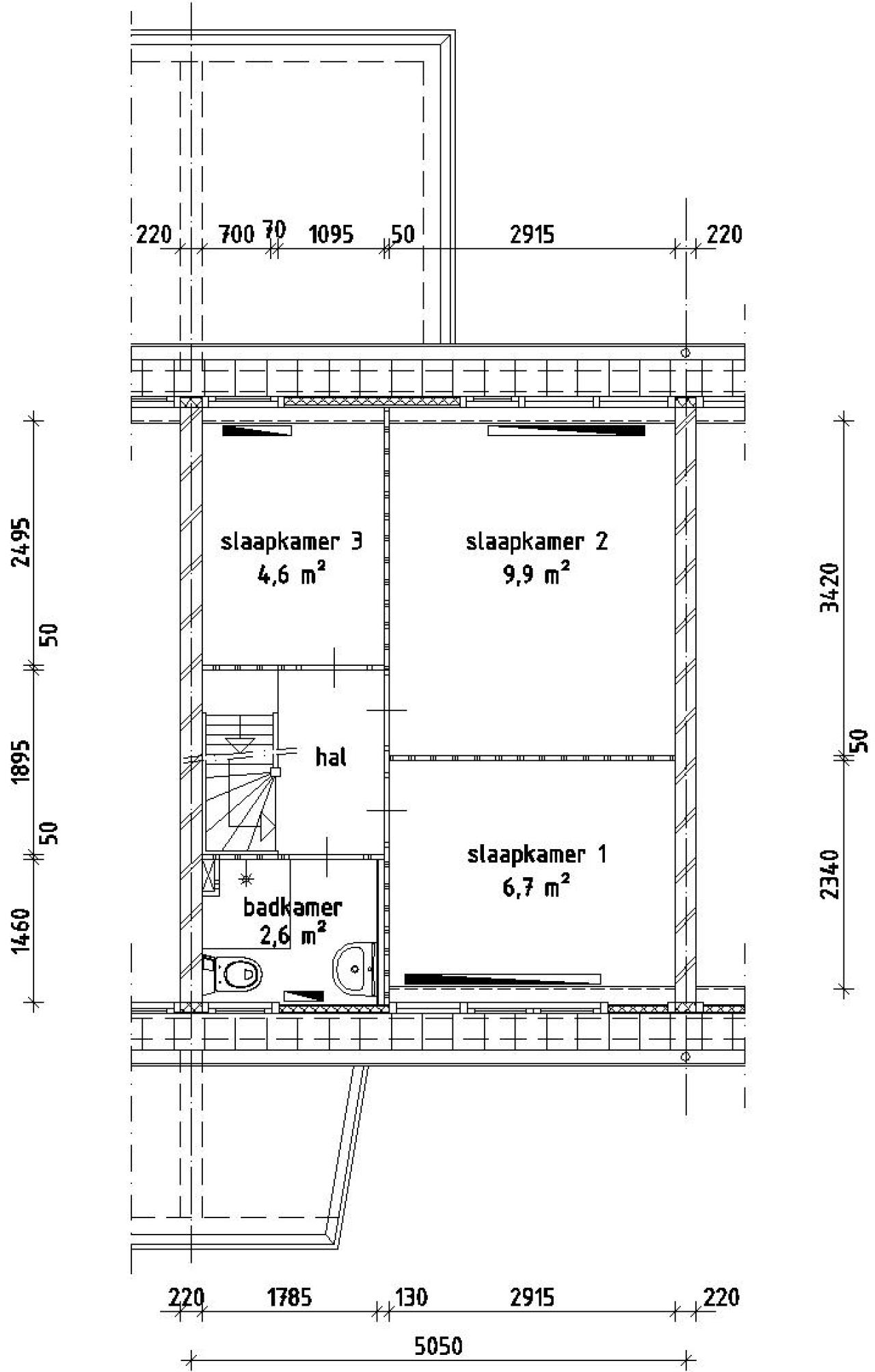
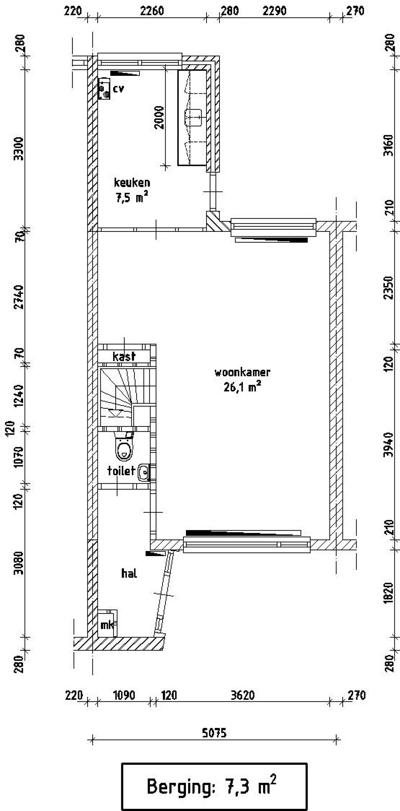
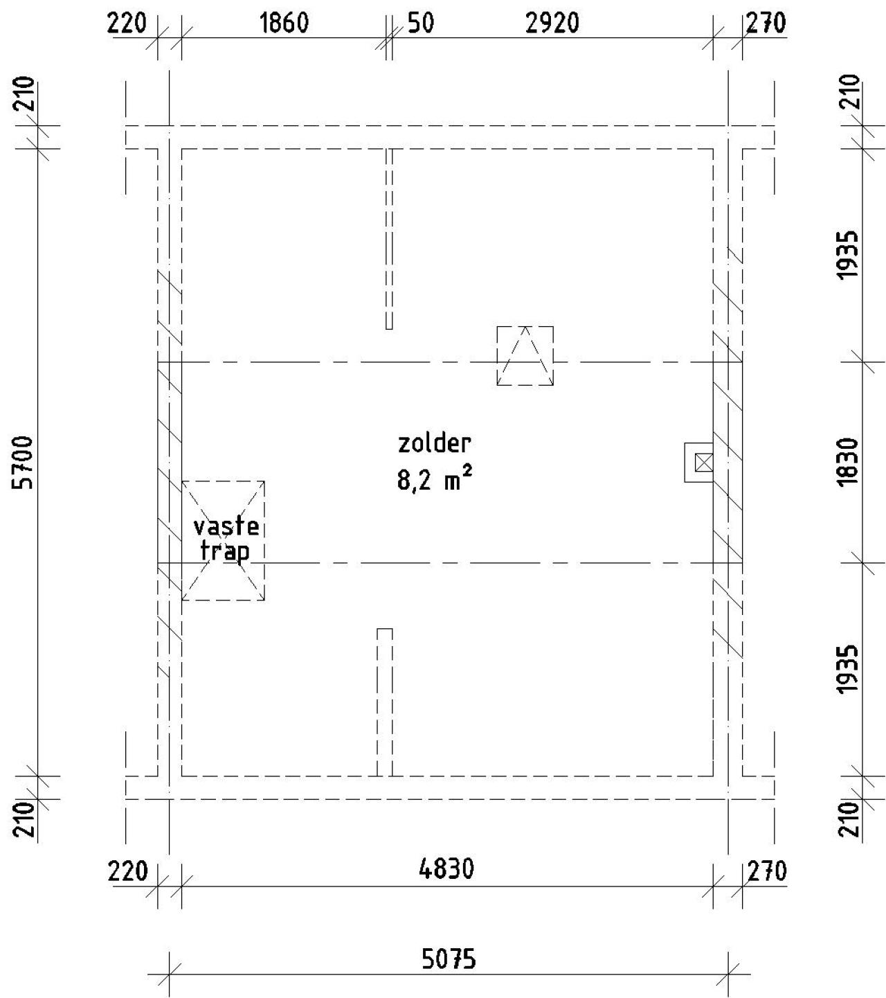
Oppervlakte:
73 m
2
Kamers:
4
Slaapkamers:
3
Wachttijd:
(niet ingesteld)
Datum beschikbaar:
2 okt 2025
Maximaal inkomen:
(niet ingesteld)
Status:
Verlopen
Omschrijving woning
Kaart