Huurwoning Den Helder

Stadhouder Willem v Straat 45, Den Helder

Korte samenvatting

Locatie
Den Helder
Huurprijs
€ 731,93
Type woning
Eengezinswoning
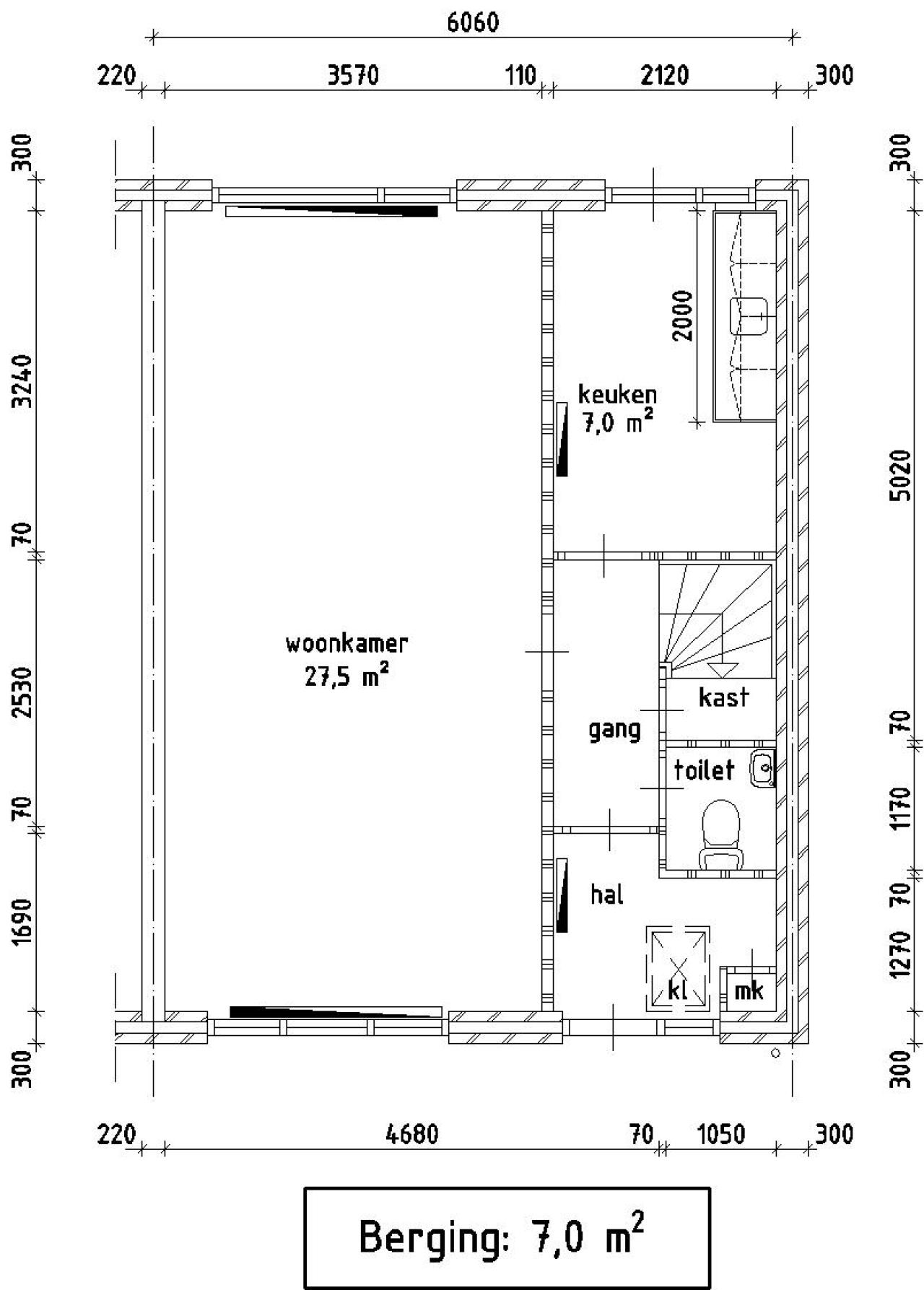
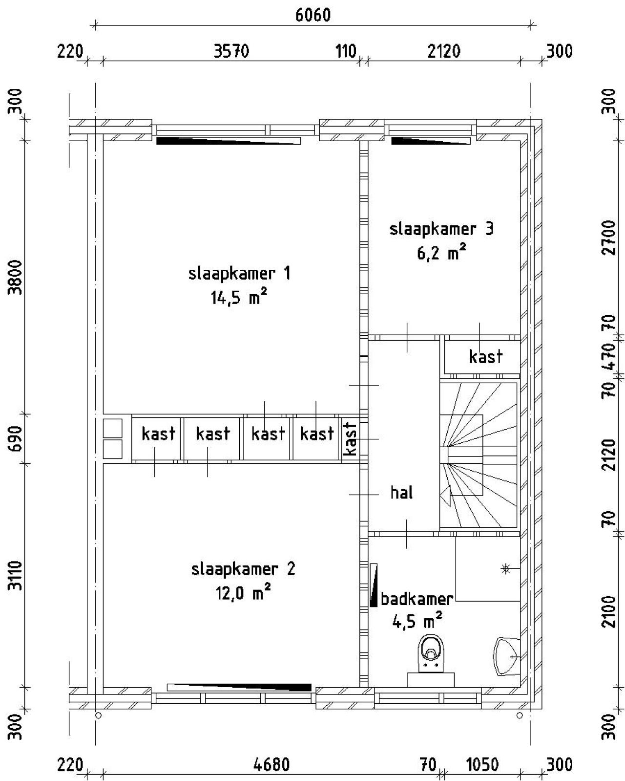
Oppervlakte:
87 m2
Kamers:
4
Slaapkamers:
3
Wachttijd:
(niet ingesteld)
Datum beschikbaar:
16 apr 2025
Maximaal inkomen:
€ 39.055,00
Status:
Verlopen

Omschrijving woning

Kaart