Toggle navigation
Provincies
Noord-Brabant
Zuid-Holland
Noord-Holland
Gelderland
Limburg
Overijssel
Utrecht
Groningen
Friesland
Drenthe
Zeeland
Flevoland
Vlaams Gewest
Plaatsen
Oosterhout
Zoetermeer
Amsterdam
Leeuwarden
Bussum
Breda
Gorinchem
Den Haag
Gameren
Wassenaar
Groningen
Arnhem
Utrecht
Leiden
Tilburg
Home
Home
Overzicht sociale huurwoningen
Noord-Holland
Den Helder
Torenstraat 15
Huurwoning Den Helder
Torenstraat 15,
Den Helder
Previous
Next
Korte samenvatting
Locatie
Den Helder
Huurprijs
€ 637,31
Type woning
Appartement
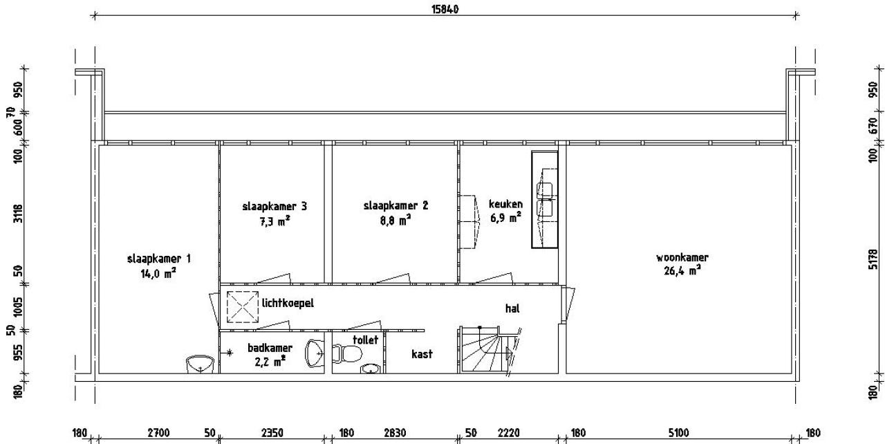
Oppervlakte:
87 m
2
Kamers:
5
Slaapkamers:
4
Wachttijd:
(niet ingesteld)
Datum beschikbaar:
16 feb 2023
Maximaal inkomen:
€ 39.055,00
Status:
Verlopen
Omschrijving woning
" "
Kaart