Huurwoning Den Helder

Waterkeringsweg 22, Den Helder

Korte samenvatting

Locatie
Den Helder
Huurprijs
€ 769,12
Type woning
Eengezinswoning
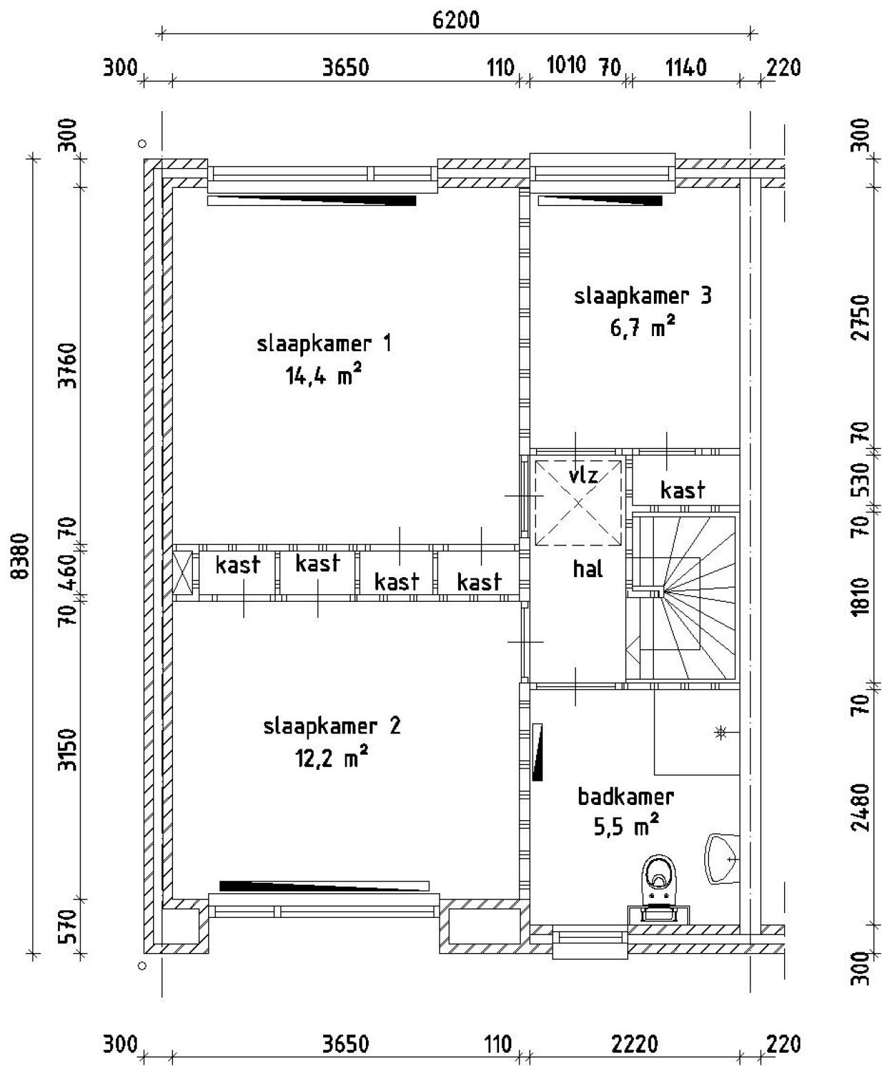
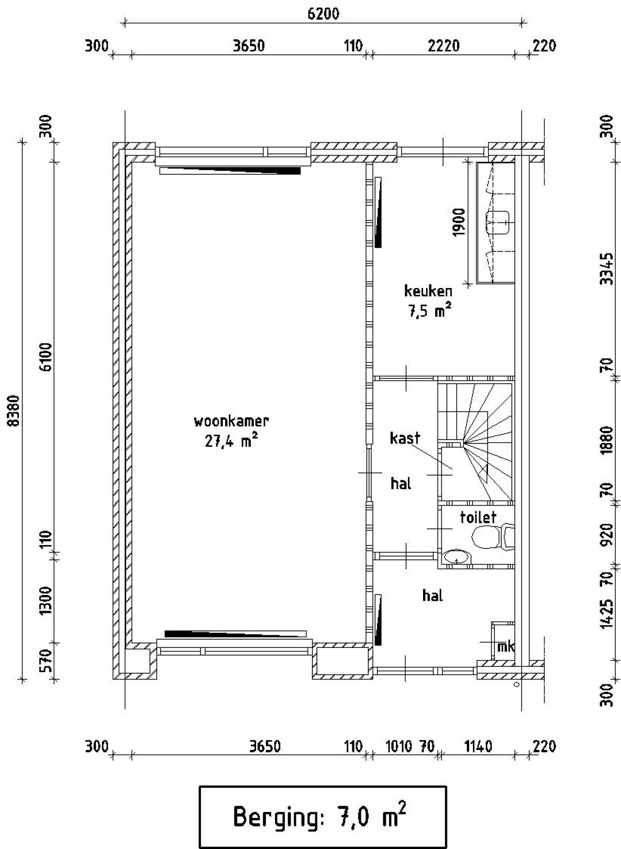
Oppervlakte:
96 m2
Kamers:
4
Slaapkamers:
3
Wachttijd:
(niet ingesteld)
Datum beschikbaar:
27 jan 2025
Maximaal inkomen:
(niet ingesteld)
Status:
Verlopen

Omschrijving woning

Kaart