Huurwoning Den Helder

Willem Barentszstraat 86, Den Helder

Korte samenvatting

Locatie
Den Helder
Huurprijs
€ 565,73
Type woning
Appartement
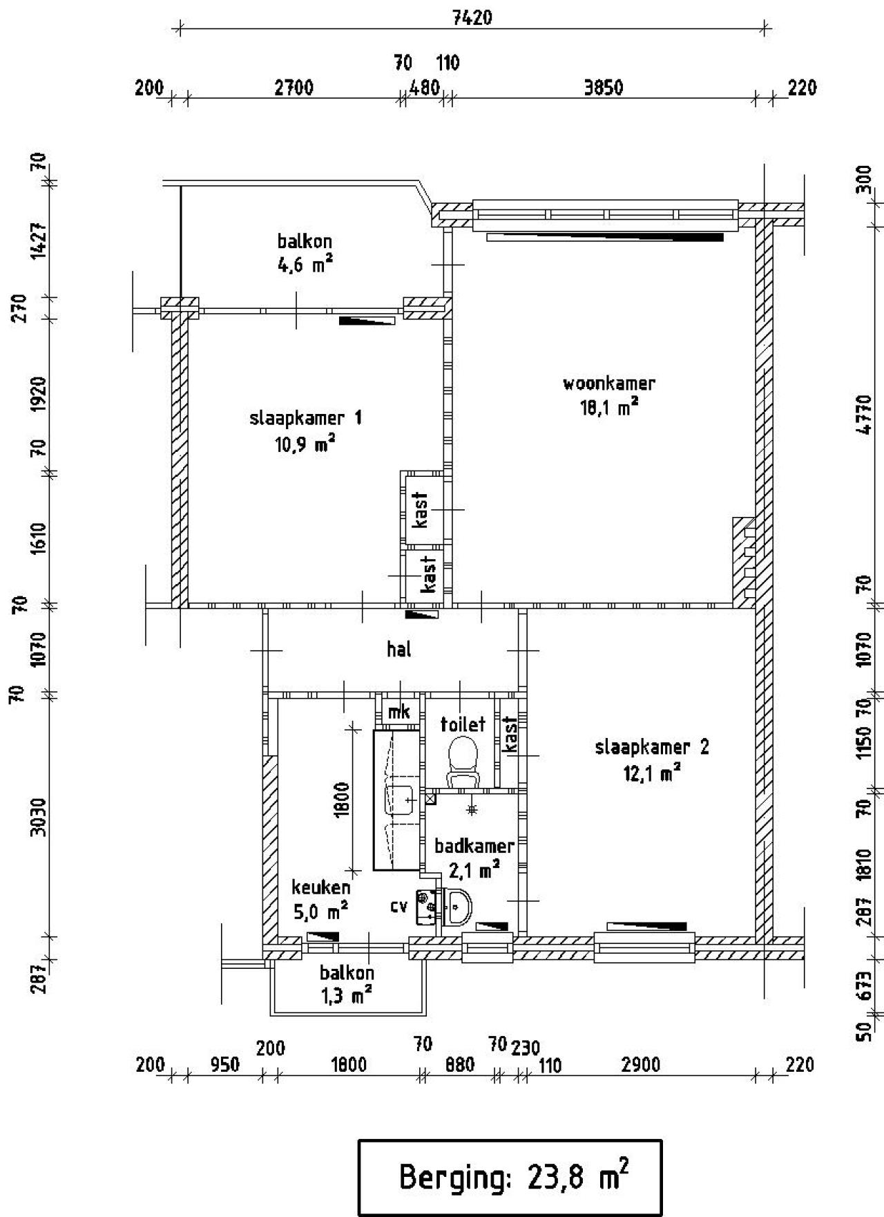
Oppervlakte:
72 m2
Kamers:
3
Slaapkamers:
2
Wachttijd:
(niet ingesteld)
Datum beschikbaar:
12 aug 2025
Maximaal inkomen:
€ 39.055,00
Status:
Verlopen

Omschrijving woning

Kaart