Huurwoning Den Helder

Willem van Alcmadestraat 18, Den Helder

Korte samenvatting

Locatie
Den Helder
Huurprijs
€ 731,93
Type woning
Eengezinswoning
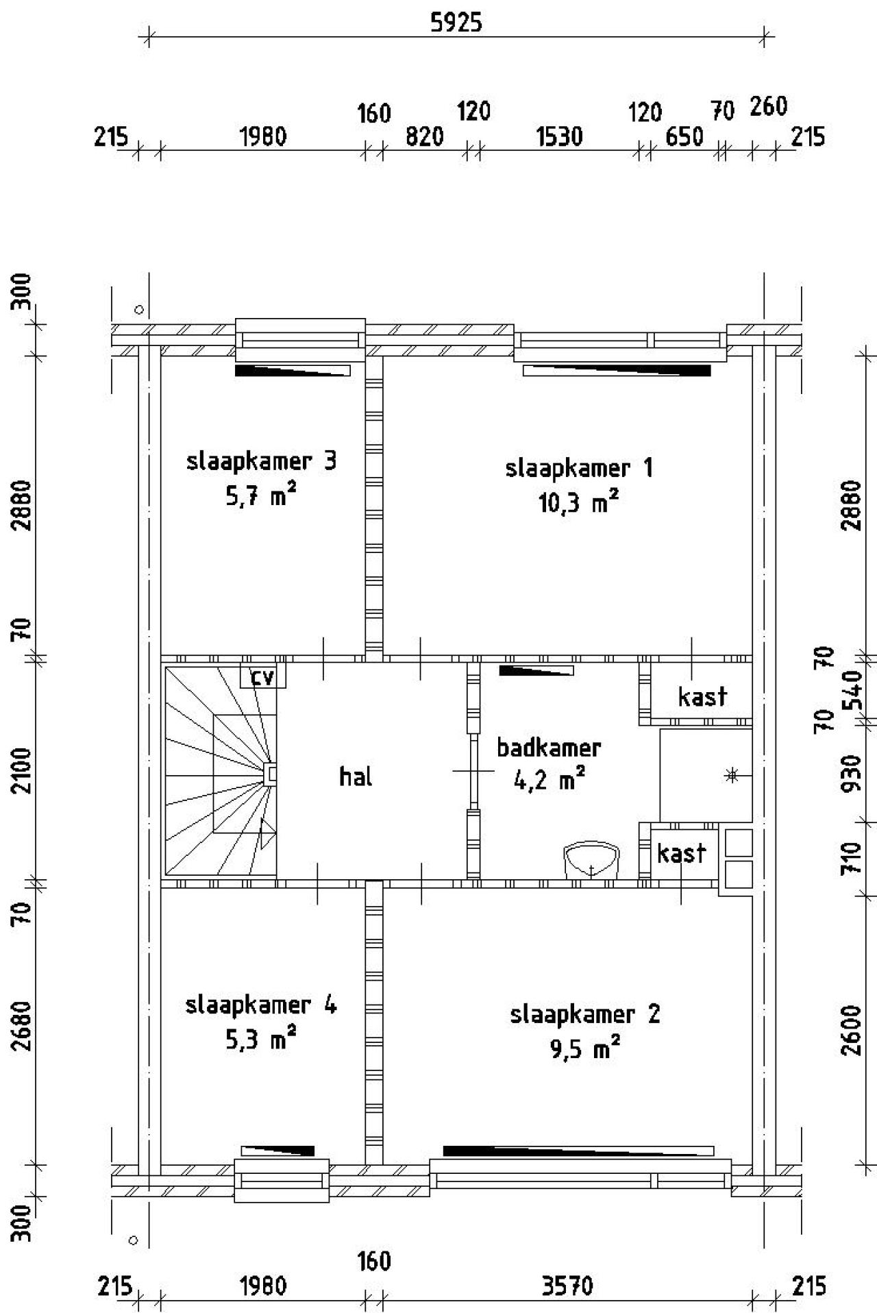
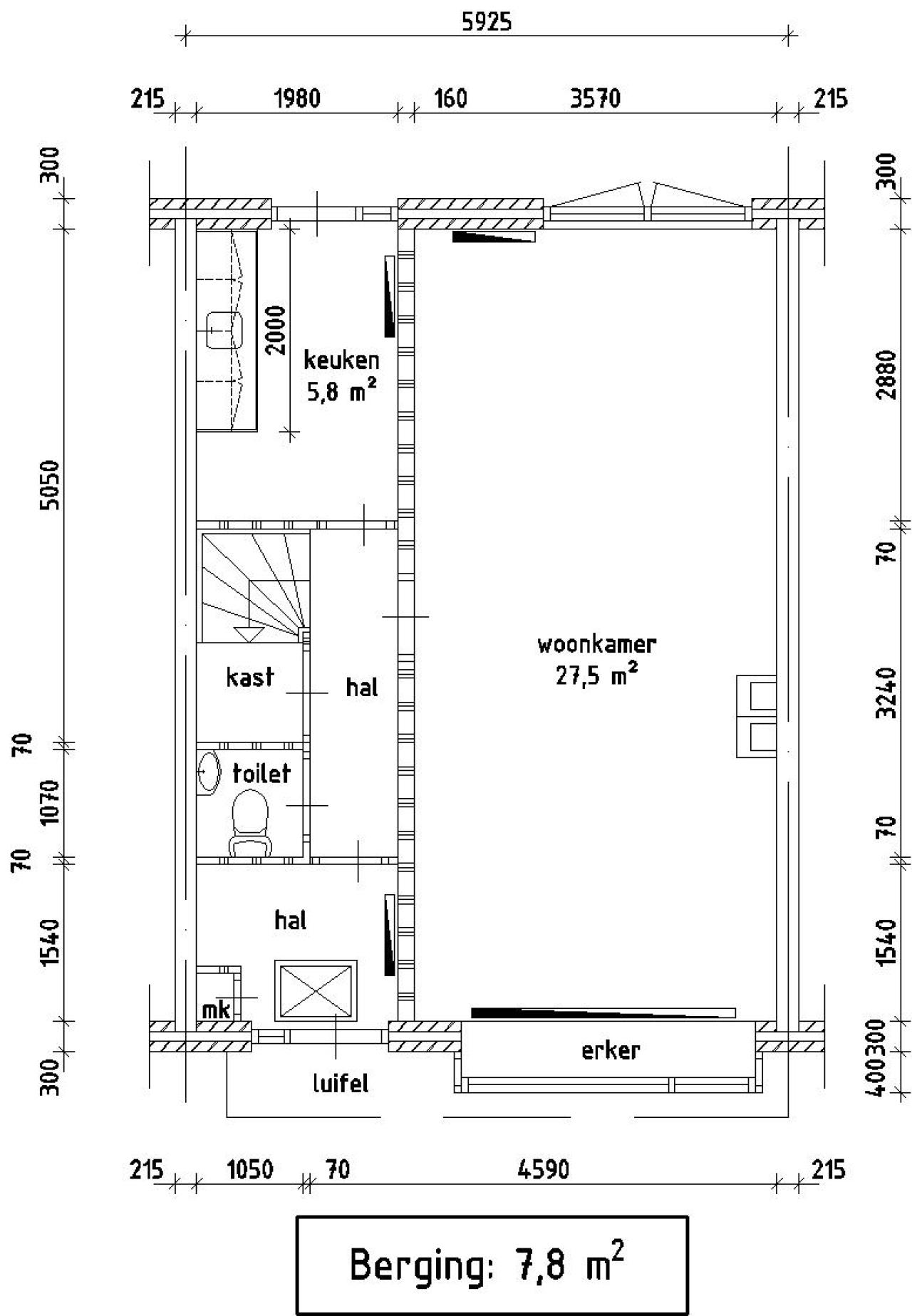
Oppervlakte:
76 m2
Kamers:
5
Slaapkamers:
4
Wachttijd:
(niet ingesteld)
Datum beschikbaar:
27 mei 2025
Maximaal inkomen:
€ 39.055,00
Status:
Verlopen

Omschrijving woning

Kaart