Huurwoning Diemen

P.H. Saanlaan 116, Diemen

Korte samenvatting

Locatie
Diemen
Huurprijs
€ 978,98
Type woning
Portiekwoning
Oppervlakte:
52 m2
Kamers:
3
Slaapkamers:
2
Wachttijd:
(niet ingesteld)
Datum beschikbaar:
16 jan 2026
Maximaal inkomen:
(niet ingesteld)
Status:
Gepubliceerd
Reageren

Omschrijving woning

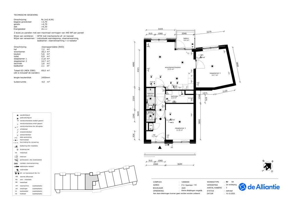
Nieuwbouw Project Hof van Saan in DiemenOp een mooie locatie aan de Weespertrekvaart bouwt de Alliantie 40 sociale huurwoningen. Deze woningen zijn onderdeel van een groter nieuwbouwproject: Hof van Saan. Het wordt voor kleine huishoudens een ideale plek met veel ruimte en groen.WoningenHet woongebouw van de Alliantie in het Hof van Saan heeft 4 woonlagen. 10 woningen zijn op de begane grond en de andere 30 woningen op de 1e, 2e en 3e verdieping. We maken:2-kamerwoningen met buitenruimte: 373-kamerwoningen met buitenruimte: 3Alle woningen zijn gelijkvloers en krijgen vloerverwarming. Er komt een lift naar de woningen op de 1e, 2e en 3e verdieping. Alle woningen hebben een terras of balkon.Duurzaam wonenAlle woningen zijn energiezuinig. Ze worden verwarmd met een warmtepomp. Dit is een duurzame techniek waarbij warmte wordt gehaald uit de bodem onder het gebouw. Dit warmtesysteem én een goed geïsoleerde woning zorgen voor een lage energierekening.ZonnepanelenDe 20 woningen op de 2e en 3e verdieping worden aangesloten op elk twee pv-panelen met een maximaal vermogen van 440 WP per paneel.Parkeren auto en fietsAuto’s kunnen buiten geparkeerd worden, in de openbare ruimte. Tegenover het woongebouw komt een gezamenlijke fietsenstalling voor de bewoners van de 40 woningen.Als bewoner kunt u parkeren met een parkeerontheffing of een parkeervergunning. Wilt u in het betaalde gebied parkeren? Dan betaalt u het tarief geldend in de parkeerzone.HuurprijzenDe huurprijzen van de woningen verschillen. Het gaat om huurprijzen van € 713 tot € 932,93per maand. De servicekosten zijn maximaal € 46 (prijspeil 2026).Bekijken van de woningHet gaat om een nieuwbouwproject. Er is daarom geen fysieke bezichtiging mogelijk. U accepteert de woning op basis van de advertentietekst, plattegronden en voorbeeldfoto’s. Houd er rekening mee dat de woningen hiervan kunnen afwijken en dat aan deze informatie geen rechten kunnen worden ontleendBelangrijk om te weten :DoelgroepDe woningen zijn bedoeld voor kleinere huishoudens.Voorrang65-plussers krijgen op 10 woningen voorrang. Woningzoekenden met een binding met Diemen krijgen bij 30 woningen voorrang.PlanningWe verwachten de woningen rond mei of juni 2026 op te leveren.VentilatieWTW met mechanische af- en toevoerWarmteIn de gehele woning is vloerverwarming aangelegd. In de badkamer er is naast de vloerverwarming ook een elektrische radiator.Energielabel : A+++(koud)Water :U moet u zelf aanmelden bij waternetElectra :U heeft de vrije keuze voor een energieleverancierContactVragen? Mailverhuurdiemen@de-alliantie.nl.Meer informatie en plattegronden vindt u op deprojectpaginaDisclaimer: onder voorbehoud van wijzigingen. Aan deze informatie kunnen geen rechten worden ontleend.

Kaart