Huurwoning Duivendrecht

Neptunus 804, Duivendrecht

Korte samenvatting

Locatie
Duivendrecht
Huurprijs
€ 861,02
Type woning
Appartement
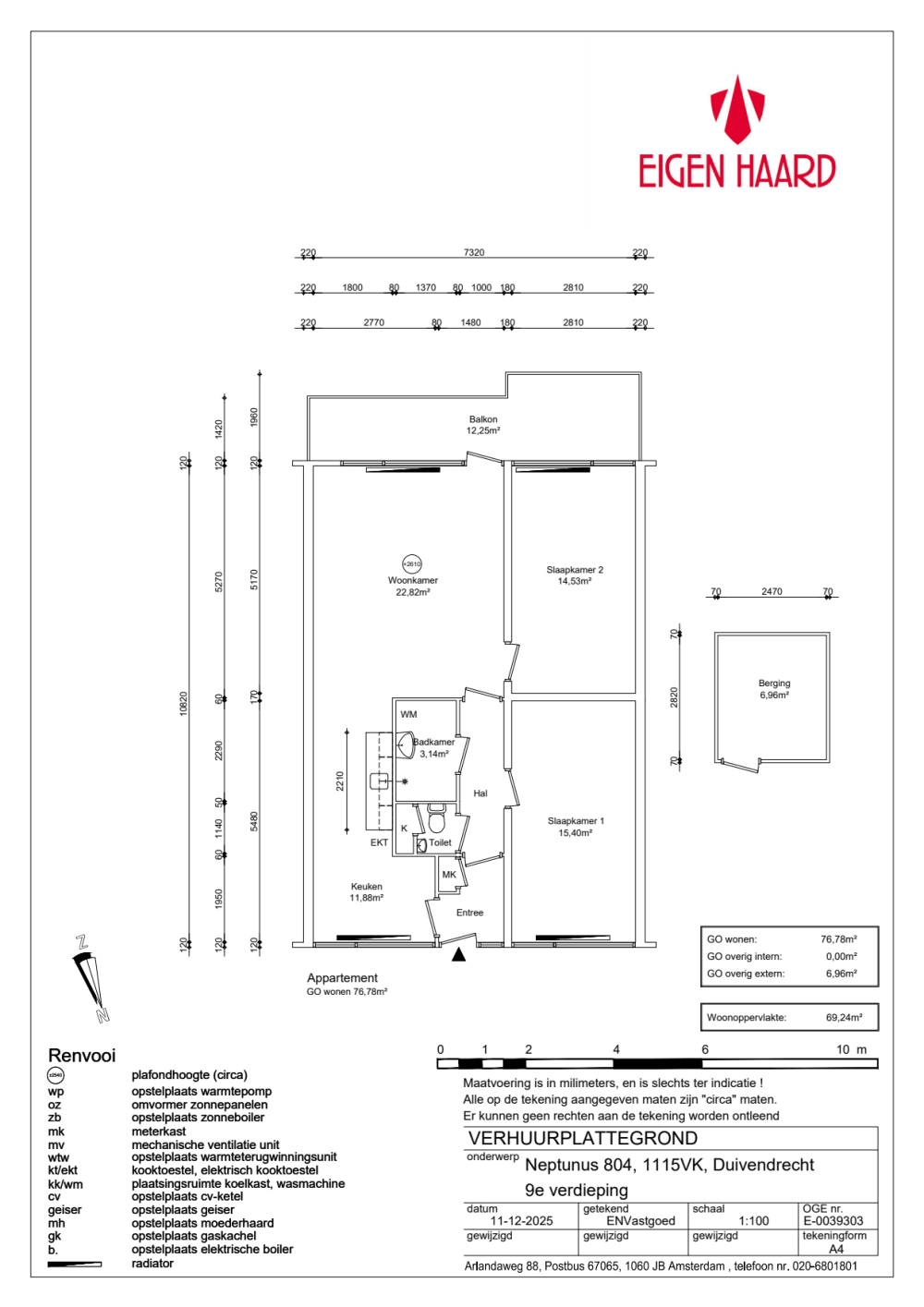
Oppervlakte:
67 m2
Kamers:
3
Slaapkamers:
2
Wachttijd:
(niet ingesteld)
Datum beschikbaar:
28 jan 2026
Maximaal inkomen:
(niet ingesteld)
Status:
Verlopen

Omschrijving woning

BijzonderhedenVoorrangsregels: Kleine gezinnenParkeerbeleid: Bewoners kunnen een parkeerontheffing aanvragen bij de gemeenteOmgeving: U kunt hinder ondervinden van vliegtuigverkeerDe stookkosten zitten in de service/verbruiks kostenEr is een lift aanwezigVoorrang kleine gezinnenDeze woning is met voorrang bestemd voor kleine gezinnen. Dit zijn huishoudens met één of twee kinderen. Minimaal één van de kinderen moet jonger dan 18 jaar zijn.Zoek op dewebsite van Woningnetop “kleine gezinnen” om uitleg en de voorwaarden te lezen. De voorrang voor kleine gezinnen wordt pas gecontroleerd nadat u op de nummer 1 positie bent gekomen en de woning aangeboden heeft gekregen.De woningWoonkamer met open keukenElektrisch koken2 slaapkamersWasmachine aansluiting in de badkamerToilet in de halBerging op de begane grondEr vinden momenteel werkzaamheden plaats in de woning; zo wordt er o.a. een nieuwe keuken geplaatst. De werkzaamheden zullen afgerond zijn tijdens de bezichtigingIn de buurtHet is een rustige, groene wijk met voorzieningen zoals supermarkt, horeca en sport op loopafstand. Door de ruime opzet van de buurt ervaar je een dorps gevoel, terwijl je toch midden in de stad zit. Een unieke balans tussen rust en bereikbaarheid.• Slechts een paar minuten lopen naar metrostation Van der Madeweg – iets langer lopen en je kunt met de metro naar Amsterdam Centraal • Op loopafstand naar station Duivendrecht (trein & metro)• Uitstekende bereikbaarheid via de uitvalswegen A10, A9 en A1• Parkeren: blauwe zone waar kort parkeren mogelijk is met een parkeerschijf. Bewoners kunnen een ontheffing aanvragen bij de gemeente Ouder-Amstel voor een eenmalige levensdurende bijdrage van €45,65 (tarief 2024).Let op:woningkenmerken, plattegrond en huurprijs zijn nog onder voorbehoud. Klikhiervoor meer informatie.Technische staatWe leveren de woning volgens de Eigen Haard standaard op.  Voor meer informatie kijkt u op onzesite.Houd er rekening mee dat u zelf ook nog het een en ander moet doen om de woning naar uw smaak te maken. Denk aan schilderen van de muren en plafonds, afstomen van behang en/ of het leggen van een vloer.Wilt u de woning huren?Voor meer informatie over welke documenten u nog meer moet inleveren op het moment dat u eerste kandidaat wordt voor de woning, kijkt u op onzewebsite

Kaart