Huurwoning Haarlem

J. Craandijkstraat 25, Haarlem

Korte samenvatting

Locatie
Haarlem
Huurprijs
€ 737,86
Type woning
Tussenwoning
Oppervlakte:
58 m2
Kamers:
4
Slaapkamers:
3
Wachttijd:
(niet ingesteld)
Datum beschikbaar:
14 mrt 2025
Maximaal inkomen:
(niet ingesteld)
Status:
Verlopen

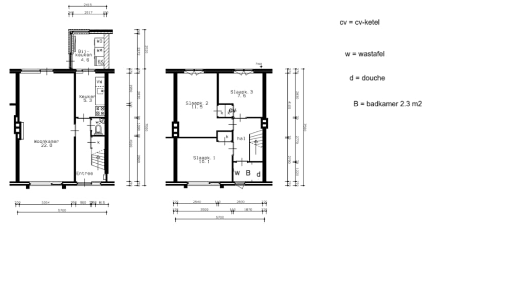
Omschrijving woning

Lichte eengezinswoning in Haarlem met grote woonkamer, gesloten keuken, bijkeuken met opstelling wasmachine/koelkast en met toegang tot de achtertuin. Op de eerste verdieping drie slaapkamers en de badkamer.Bijzonderheden-Geschikt voor gezin met kinderen- Nieuw keukenblok en er wordt elektrisch gekookt.- Bijna alle wanden zijn gestuukt- Schenking aan de nieuwe huurder, onderhoud huurder:|Buitenkraan in de achtertuinWoning- Tussenwoning- Gesloten keuken- Bijkeuken met opstelling wasmachine/droger en koelkast- Apart toilet met fonteintje- Achtertuin met achterom- Schuur in achtertuin- Gratis parkeren in de straatIn de buurt"De Amsterdamse buurt, Potgieterbuurt, Van Zeggelenbuurt en Slachthuisbuurt vormen een aaneengesloten gebied. Het zijn oude arbeidersbuurten met zowel koop als huurwoningen die in de loop der jaren vaak zijn uitgebreid met nieuwbouw. Er wonen zowel gezinnen als ouderen en vormt een goede mix tussen verschillende culturen. Hierdoor vindt u ook verschillende lokale supermarkten en eettentjes. Op 5 minuten rijden ligt het overdekte winkelcentrum van Schalkwijk voor al uw dagelijkse boodschappen.Op loop afstand vind u het Reinaldapark waar u heerlijk kunt wandelen, sporten of een pannenkoek kunt eten. Ook de gezondheidszorg is goed vertegenwoordigd door een tandartspraktijk, meerdere huisartsenpraktijken, het Reinaldahuis en ziekengasthuis Spaarne-zuid.De wijk ligt op 2 minuten rijden van de snelweg richting Den-haag, Amsterdam en Alkmaar. Er zijn meerdere bushaltes rondom de wijk waaronder een rechtstreekse verbinding naar Amsterdam.Uitnodiging tot bezichtigingDe eerste tien kandidaten worden via woonservice uitgenodigd voor bezichtiging.- De bezichtiging is ingepland op donderdag 20-03-2025 om 16:00 uur (onder voorbehoud)Een woning huren van Pré WonenIedere woning van Pré Wonen wordt volgens de basiskwaliteit opgeleverd. Zelf knapt u de woning op naar uw zin en smaak. Denk hierbij aan het leggen van vloeren (minimaal 10 decibel reducerend), schilderen/behangen van muren, deuren, (raam)kozijnen en plafonds.Een bestaande woning heeft altijd gebruikssporen van voorgaande huurder(s). Kijkt u onder Voorwaarden bij ‘Wat mag u van een woning van Pré Wonen verwachten’. Daar leest u wat de basiskwaliteit is en wat u van een woning van Pré Wonen mag verwachten.Tot slotDe oplevering van de woning kan afwijken van de advertentietekst, de plattegrond, de foto’s en de bezichtiging in verband met eventuele werkzaamheden.Aan deze advertentie kunt u geen rechten ontlenen.

Kaart