Huurwoning Haarlem

Johan Limpersplantsoen 108, Haarlem

Korte samenvatting

Locatie
Haarlem
Huurprijs
€ 633,25
Type woning
Benedenwoning
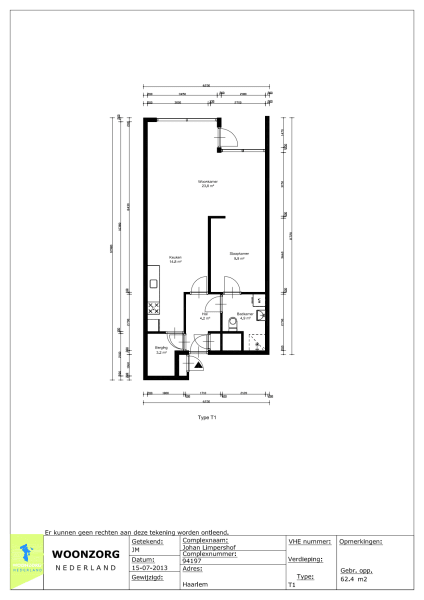
Oppervlakte:
52 m2
Kamers:
2
Slaapkamers:
1
Wachttijd:
(niet ingesteld)
Datum beschikbaar:
7 apr 2023
Maximaal inkomen:
€ 39.055,00
Status:
Verlopen

Omschrijving woning

LET OP: ALLE WONINGEN HEBBEN EEN HOGE DREMPEL NAAR HET BALKON OF TUIN Deze woning heeft een balkon met ochtend/vroege middag zon. Leuke seniorenwoning in het gezellige complex Johan Limpershof. De woning heeft 1 slaapkamer, badkamer, inpandige berging, een open keuken en een buitenruimte. Het complex beschikt over een gemeenschappelijke ontmoetingsruimte, gezamenlijke fietsenberging en scootmobielruimte. Tevens heeft een fysiotherapeut zijn praktijk in het wooncentrum. De verdiepingen zijn per lift bereikbaar. Het Johan Limpershof ligt in een rustige wijk, nabij uitvalswegen, een winkelcentrum, het ziekenhuis en een bushalte voor de deur. In het complex is een bewonersconsulent werkzaam. Voor de toewijzing van de woning en het controleren van uw inkomen heeft Woonzorg een verklaring geregistreerd inkomen nodig. U kunt dit formulier aanvragen bij de Belastingdienst via telefoonnummer 0800-0543. Vraagt u dit alvast aan!

Kaart