Huurwoning Heemskerk

Euratomplein 453, Heemskerk

Korte samenvatting

Locatie
Heemskerk
Huurprijs
€ 672,04
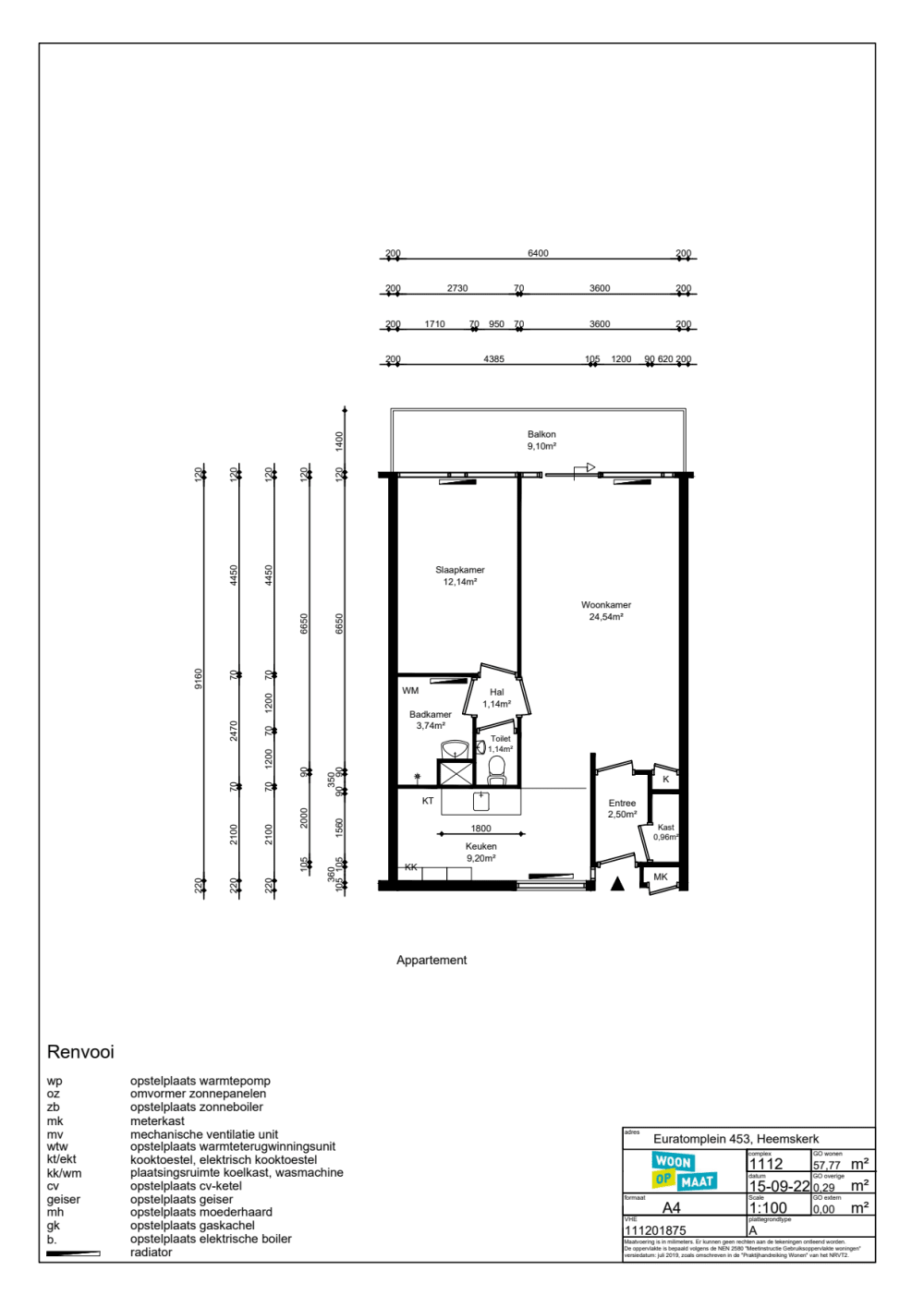
Type woning
Appartement
Oppervlakte:
57 m2
Kamers:
2
Slaapkamers:
1
Wachttijd:
(niet ingesteld)
Datum beschikbaar:
12 mei 2025
Maximaal inkomen:
€ 39.055,00
Status:
Verlopen

Omschrijving woning

2 kamer appartement in Heemskerk (kinderen niet toegestaan)Woning1 slaapkamerOpen keukenMogelijkheid tot elektrisch koken (perilex aansluiting, 2 fases)Badkamer met douche en wastafelToilet apartInterne bergingBijzonderhedenWoning ziet er keurig uitEigen fietsenberging op begane grondOvernamesLaminaat vloer*Op de overnames kunnen geen rechten worden ontleend. Bij eventuele toekomstige gebreken zijn de kosten voor de huurder zelf. Bij ondertekening van de huurovereenkomst bent u automatisch eigenaar. Woonopmaat voert hier geen werkzaamheden aan uit*Staat van de woningWoonopmaat levert iedere woning op met basiskwaliteit: schoon, heel en veilig.Wat moet je aan de woning doen?Houdt er rekening mee dat je zelf nog het een en ander moet doen om de woning naar jouw smaak te maken. Denk hierbij aan het vervangen van ondervloeren en vloeren (minimaal 10 decibel reducerend), schilderen en behangen van de wanden en plafonds en schilderen van de kozijnen en deuren.In de buurtCentrum Europaplein op loopafstandStation Heemskerk voor de deurBezichtiging:De eerste 10 kandidaten ontvangen een uitnodiging voor een bezichtiging op 20 mei 2025 om 13:00 uur. Bezichtigen is noodzakelijk voor het accepteren van de woning. Graag met maximaal 2 personen de woning komen bezichtigen alstublieft!

Kaart