Huurwoning Heemskerk

Pastoors acker 78, Heemskerk

Korte samenvatting

Locatie
Heemskerk
Huurprijs
€ 922,15
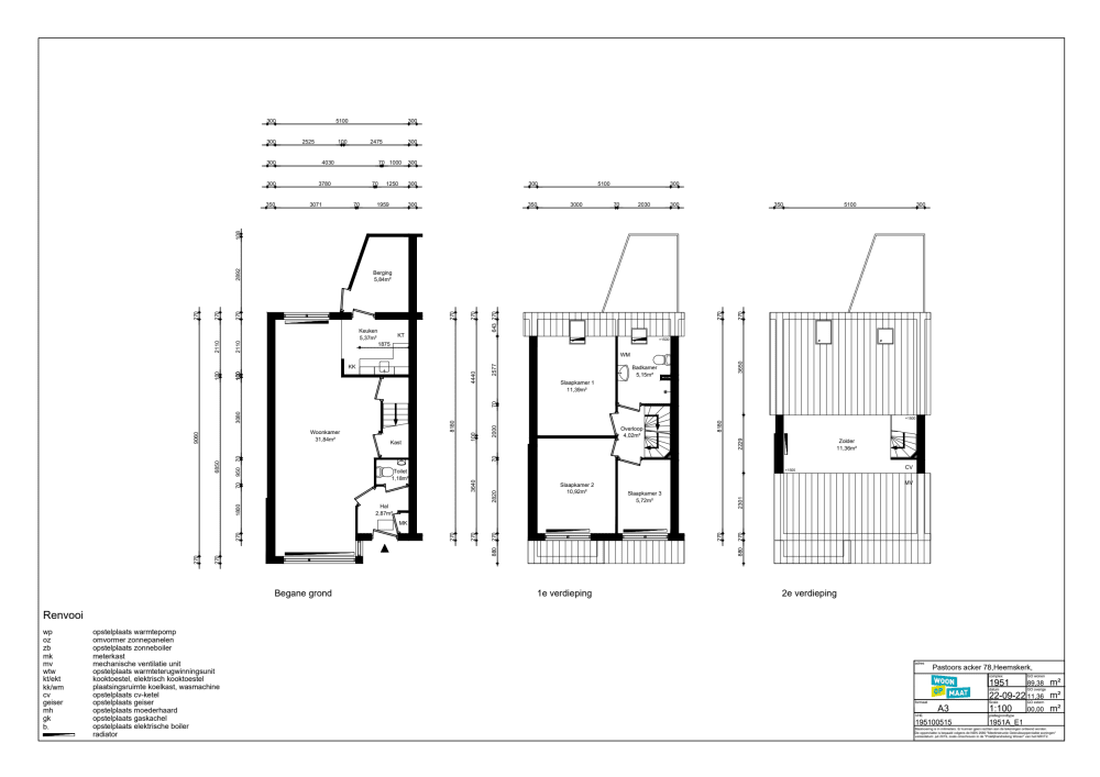
Type woning
Tussenwoning
Oppervlakte:
94 m2
Kamers:
4
Slaapkamers:
3
Wachttijd:
(niet ingesteld)
Datum beschikbaar:
22 jan 2025
Maximaal inkomen:
(niet ingesteld)
Status:
Verlopen

Omschrijving woning

4-kamerwoning in HeemskerkWoningTussenwoningHalf open keukenKoken op gas of elektraToilet met fonteinBadkamer met douchegedeelte, wastafel/spiegel/planchet en tweede toilet3 slaapkamers op de eerste verdiepingRuime zolder verdiepingBijzonderhedenEigen achteromIn de keuken komt een Perilex-aansluiting voor een elektrisch kooktoestel. Dit is een aparte (2-fase) aansluiting.Keukenblok is vervangen8 zonnepanelenStaat van de woningWoonopmaat levert iedere woning op met basiskwaliteit: schoon, heel en veilig.Wat moet u aan de woning doen?Houdt er rekening mee dat u zelf nog het een en ander moet doen om de woning naar uw smaak te maken. Denk hierbij aan het leggen van ondervloeren en vloeren (minimaal 10 decibel reducerend), schilderen en behangen van de wanden en plafonds en schilderen van de kozijnen en deuren.Buurt:Centrum Heemskerk is op ca. 15 min lopenGrote supermarkt op loopafstandBasisscholen op loopafstandDiverse uitvalswegenVrij parkeren voor de deurVerhuurdatum:in overleg, vanaf 11 februari beschikbaar.BezichtigingDe eerste 10 kandidaten worden uitgenodigd voor een bezichtiging op dinsdag 4 februari om 16:00 uur. Bezichtigen is noodzakelijk voor het accepteren van de woning.

Kaart