Huurwoning Hilversum

Arminiushof 84, Hilversum

Korte samenvatting

Locatie
Hilversum
Huurprijs
€ 951,25
Type woning
Tussenwoning
Oppervlakte:
95 m2
Kamers:
5
Slaapkamers:
4
Wachttijd:
(niet ingesteld)
Datum beschikbaar:
2 feb 2026
Maximaal inkomen:
(niet ingesteld)
Status:
Gepubliceerd
Reageren

Omschrijving woning

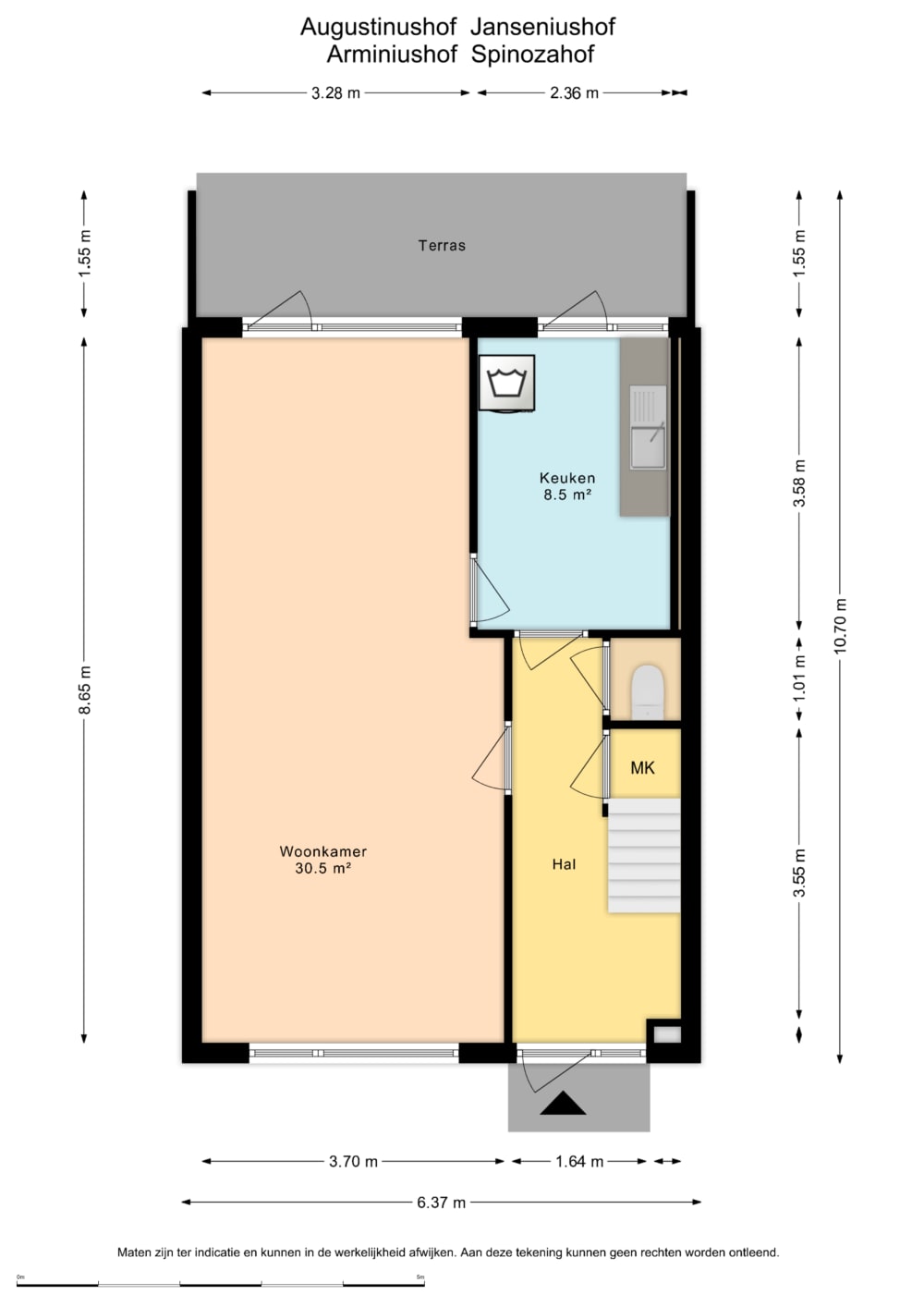
De Arminiushof is een rustig kindvriendelijk woonhof met diverse parkeerhofjes en een speeltuin. Op loopafstand is het Winkelcentrum Kerkelanden met onder andere een Albert Heijn, Etos, Blokker, Lidl, Zeeman, Kruidvat, vishandel, poelier en bakker bevindt zich op loopafstand. In dit winkelcentrum zijn ook enkele horecagelegenheden en een buurtcentrum. Nabij uitvalswegen, mooie natuurgebieden en de Loosdrechtse Plassen.Begane grondEntree met trapopgang, meterkast/trapkast, toilet met fonteintje, woonkamer, keuken met achterdeur en toegang naar de achtertuin. In het keukenblok zit inbouwapparatuur dit is ter overname.Eerste verdiepingOverloop, een ruime slaapkamer aan de voorzijde en een ruime slaapkamer aan de achterzijde, derde kleinere slaapkamer achterzijde.Badkamer met douche, wastafel en met daglichttoetreding. Aparte toiletruimte.ZolderVia de vaste trap kom je op de voorzolder waar de CV installatie hangt, en via een deur kom je bij de vierde slaapkamer.

Kaart