Huurwoning Hilversum

Liebergerweg 264, Hilversum

Korte samenvatting

Locatie
Hilversum
Huurprijs
€ 763,09
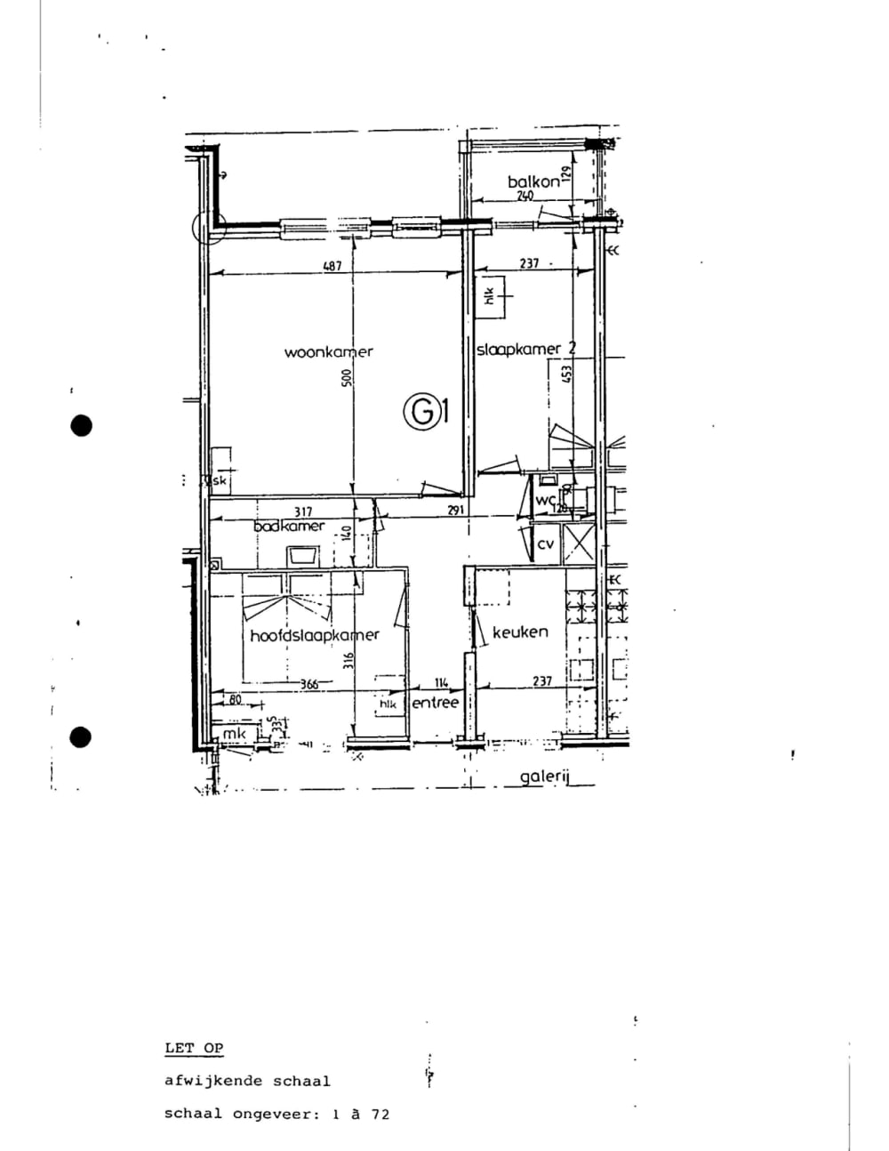
Type woning
Appartement
Oppervlakte:
58 m2
Kamers:
3
Slaapkamers:
2
Wachttijd:
(niet ingesteld)
Datum beschikbaar:
5 jan 2026
Maximaal inkomen:
(niet ingesteld)
Status:
Verlopen

Omschrijving woning

Door de ligging nabij het centrum van Hilversum zijn alle voorzieningen zoals het trein-/busstation, de markt, supermarkten, bioscopen, winkels, restaurants en uitgaansgelegenheden op loopafstand bereikbaar. Tevens zijn heide en bos op korte reisafstand bereikbaar. Hilversum zelf ligt centraal ten opzichte van de uitvalswegen naar Amsterdam, Amersfoort, Almere, Utrecht en de resterende dorpen van het Gooi.Dit appartement heeft een balkon en een berging in de onderbouw. In het gebouw zit een lift.Heeft u of gaat u gebruik maken van een scootmobiel? Geef dit aan tijdens de bezichtiging! Houd er rekening mee dat u binnen het gebouw geen gebruik van uw scootmobiel mag maken (wel uw rolstoel). Uw scootmobiel mag alleen in een daarvoor bestemde ruimte geparkeerd worden. De plekken zijn erg beperkt, is er (tijdelijk) geen plaats in de interne scootmobiel stalling dan zoekt u zelf een mogelijkheid voor buitenstalling in overleg met uw WMO consulent.

Kaart