Huurwoning Hilversum

Resedastraat 45, Hilversum

Korte samenvatting

Locatie
Hilversum
Huurprijs
€ 607,24
Type woning
Portiekwoning
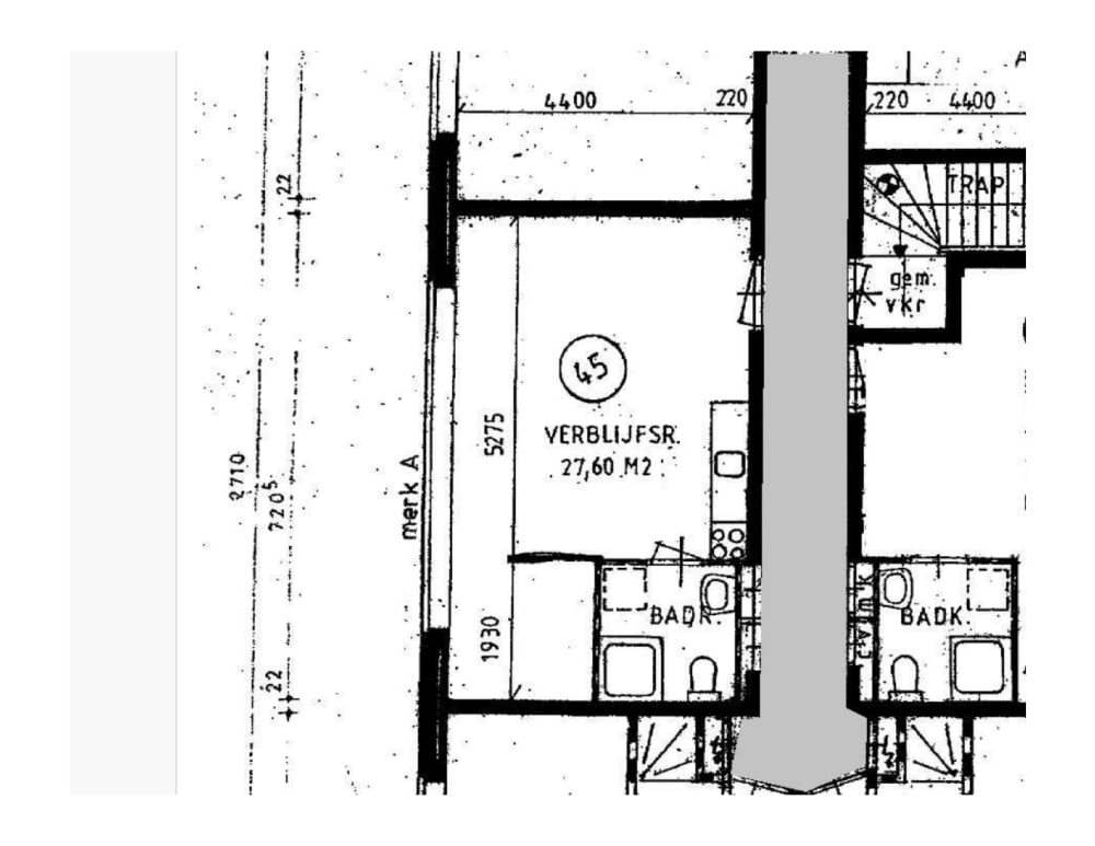
Oppervlakte:
31 m2
Kamers:
1
Slaapkamers:
0
Wachttijd:
(niet ingesteld)
Datum beschikbaar:
2 apr 2026
Maximaal inkomen:
€ 39.055,00
Status:
Gepubliceerd
Reageren

Omschrijving woning

De Resedastraat is een rustige kindvriendelijke straat in de geliefde Bloemenbuurt vlakbij winkelstraat De Gijsbrecht met zijn vele ambachtelijke winkels. Daarnaast zijn voorzieningen als speeltuinen, scholen en winkels, het centrum van Hilversum, bos en heide en openbaar vervoer op korte afstand. Uitvalsweg naar de A1 en A27 zijn zeer gemakkelijk aan te rijden.Dit appartement vind je in de voormalige Geraniumschool, Dudoks eerste ontwerp voor een lagere school in Hilversum, is een voorbeeld van de decoratieve stijl van de Amsterdamse School. Dit complex is door de Alliantie omgebouwd tot jongerenappartementen.Indeling: hal, badkamer met douche en toilet, keuken, woon/slaapkamer. Er is geen eigen buitenruimte!

Kaart