Huurwoning Hilversum

Spinozahof 13, Hilversum

Korte samenvatting

Locatie
Hilversum
Huurprijs
€ 936,65
Type woning
Tussenwoning
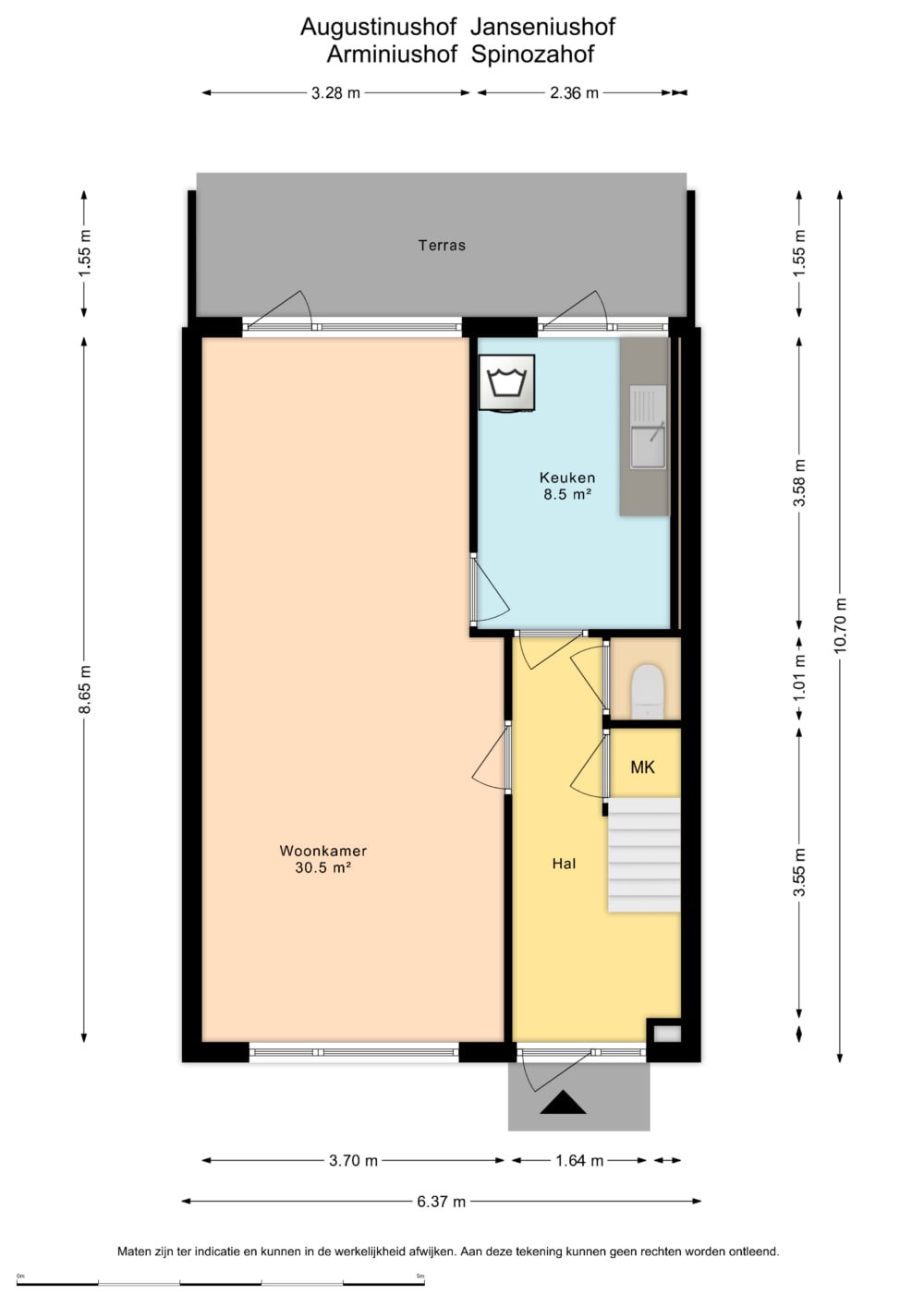
Oppervlakte:
83 m2
Kamers:
4
Slaapkamers:
3
Wachttijd:
(niet ingesteld)
Datum beschikbaar:
3 feb 2026
Maximaal inkomen:
(niet ingesteld)
Status:
Gepubliceerd
Reageren

Omschrijving woning

De Spinozahof is een rustig kindvriendelijk woonhof met diverse parkeerhofjes en een speeltuin. Op loopafstand is het Winkelcentrum Kerkelanden met onder andere een Albert Heijn, Etos, Blokker, Lidl, Zeeman, Kruidvat, vishandel, poelier en bakker bevindt zich op loopafstand. In dit winkelcentrum zijn ook enkele horecagelegenheden en een buurtcentrum. Nabij uitvalswegen, mooie natuurgebieden en de Loosdrechtse Plassen.Begane grondEntree met trapopgang, meterkast/trapkast, toilet met fonteintje, woonkamer, keuken met achterdeur en toegang naar de achtertuin.Eerste verdiepingOverloop met bergkast, een ruime slaapkamer aan de voorzijde en een ruime slaapkamer aan de achterzijde, derde kleinere slaapkamer achterzijde.Badkamer met toilet, douche, en wastafel en met daglichttoetreding.ZolderVia een vaste trap te bereiken zolderverdieping met CV installatie, voorzien van dakraam.

Kaart