Huurwoning Hilversum

Van Linschotenlaan 271, Hilversum

Korte samenvatting

Locatie
Hilversum
Huurprijs
€ 725,37
Type woning
Appartement
Oppervlakte:
55 m2
Kamers:
3
Slaapkamers:
2
Wachttijd:
(niet ingesteld)
Datum beschikbaar:
28 feb 2025
Maximaal inkomen:
€ 39.055,00
Status:
Verlopen

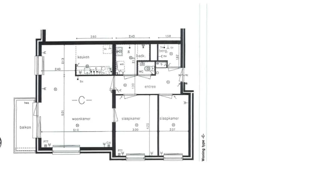
Omschrijving woning

Dit senioren appartement aan de Van Linschotenlaan ligt vlakbij het ziekenhuis Tergooi. Daardoor is het makkelijk te bereiken met de auto en met het openbaar vervoer (dichtbij een bushalte en treinstation Hilversum Sportpark). In de omgeving zijn veel mooie fiets- en wandelroutes waar je van kunt genieten van de natuur. Landgoed Monnikenberg ligt bijvoorbeeld om de hoek.Op loopafstand van Ter Gooi ziekenhuis en verschillende winkels (Riebeeckgalerij) voor de dagelijkse boodschappen. Op de fiets ben je binnen 10 minuten in het bruisende centrum van Hilversum.Het appartement heeft een berging in de onderbouw.Indeling: entree, inpandige berging, twee slaapkamers, apart toilet, badkamer met douchehoek/ wastafel en woonkamer met half open keuken. Via de woonkamer kunt u het balkon betreden.Let op: bij de gelabelde senioren woningen geven wij geen toestemming voor bewoning met inwonende (jonge & oudere) kinderen. Uw woningnetinschrijving en historisch gezinsuittreksel zijn hierin leidend.

Kaart