Huurwoning Hilversum

Van Speijklaan 45, Hilversum

Korte samenvatting

Locatie
Hilversum
Huurprijs
€ 619,01
Type woning
Appartement
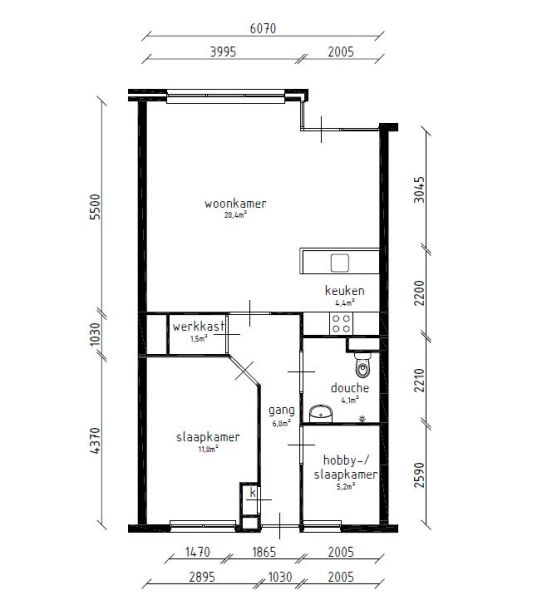
Oppervlakte:
54 m2
Kamers:
3
Slaapkamers:
2
Wachttijd:
(niet ingesteld)
Datum beschikbaar:
14 aug 2020
Maximaal inkomen:
€ 39.055,00
Status:
Verlopen

Omschrijving woning

Mooie 3 kamer-seniorenwoning in een verzorgd complex op de begane grond. De woning is voor een groot gedeelte drempelloos waardoor het gebruik van een rollator tot de mogelijkheden behoort. De woning heeft een open keuken en is individueel bemeterd. Een cv-installatie met HR-combiketel is aanwezig. Nabij gelegen vindt u het openbaar vervoer, park en bos en heidegebied.  Voorwaarden: Voorwaarden Uw belastbaar huishoudinkomen mag maximaal € 39.055,- per jaar zijn (prijspeil 2020). Om dit te controleren vragen wij bij toewijzing van een woning een recente inkomensverklaring (een inkomensverklaring van het voorgaande jaar of, als deze nog niet beschikbaar is, van het jaar daarvoor) van u en uw medebewoners (niet van inwonende kinderen). Uw huishoudinkomen wordt op basis van de inkomensverklaring(en) na indexering vastgesteld. Zonder inkomensverklaring(en) kan Dudok Wonen de woning niet toewijzen. Dudok Wonen gaat in dat geval verder met de volgende kandidaat. Zorg er daarom voor dat u deze op tijd in huis hebt. Een inkomensverklaring is gratis. U kunt een exemplaar downloaden via de website www.belastingdienst.nl door in te loggen met uw DigiD op het onderdeel Mijn Belastingdienst. Dudok Wonen accepteert alleen het originele digitale bestand en dus geen prints, schermprints of foto’s van het digitale bestand.

Kaart