Huurwoning Hoofddorp

Barend biesheuvelstraat 20, Hoofddorp

Korte samenvatting

Locatie
Hoofddorp
Huurprijs
€ 483,23
Type woning
Benedenwoning
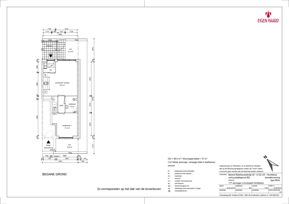
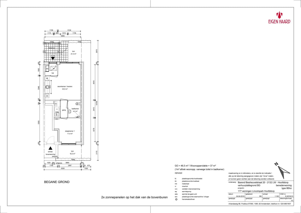
Oppervlakte:
37 m2
Kamers:
2
Slaapkamers:
1
Wachttijd:
(niet ingesteld)
Datum beschikbaar:
12 jun 2025
Maximaal inkomen:
€ 39.055,00
Status:
Verlopen

Omschrijving woning

JongerenwoningenVoor deze woning wordt een tijdelijk contract afgesloten, met een looptijd van maximaal 5 jaar.Wij adviseren huishoudens met kinderen niet te reageren op jongeren woningen.Een jongerencontract wordt afgesloten tót de leeftijd van 28 jaar. Als u 28 wordt ná het reageren op de woning maar vóór het tekenen van de huurovereenkomst dan komt u niet in aanmerking.Let op:studenten die een voltijdse dagopleiding volgen en/of staan ingeschreven bij Studentenwoningweb komen niet in aanmerking voor een jongerenwoning met een vijfjarencontract, tenzij er in de gemeente geen studentenwoningen zijn. Studenten die een deeltijdopleiding volgen mogen wel reageren op jongerenwoningen met een vijfjarencontract.BijzonderhedenVoorrangsregels: jongerenwoningVoor en achtertuinHoekwoningVolledig gas loze woningElektrisch kooktoestel nodigParkeerbeleid: gratis parkeren in de buurtOmdat de woning zich bevind in de omgeving van Schiphol kan er geluidsoverlast worden ervarenBij het tekenen van het huurcontract teken je ook clausules over het parkbeheer en de richtlijnen van de tuinenDe woningWoning gelegen op de begane grondWoonkamer met open keukenGas loze woning, elektrisch kooktoestel nodig1 slaapkamerWasmachine aansluiting in de gangkastToilet in de badkamerFietsenkluis in de tuin aanwezigIn de buurtLincolnparkNieuwe wijk in aanbouwVoorzieningen zijn op fietsafstandTreinstation op fietsafstandLet op:woningkenmerken, plattegrond en huurprijs zijn nog onder voorbehoud.Klik hiervoor meer informatie.Technische staatWe leveren de woning volgensde Eigen Haard standaardop.Houd er rekening mee dat u zelf nog wat aan de woning moet doen. Denk aan schilderen van de muren en plafonds, afstomen van behang en/ of het leggen van een vloer.Wilt u de woning huren?Welke documenten u moet inleveren op het moment dat u eerste kandidaat wordt voor de woning, leest uhier.Lees minder...

Kaart