Huurwoning Hoofddorp

Niemeyerstraat 1561, Hoofddorp

Korte samenvatting

Locatie
Hoofddorp
Huurprijs
€ 958,90
Type woning
Appartement
Oppervlakte:
45 m2
Kamers:
2
Slaapkamers:
1
Wachttijd:
(niet ingesteld)
Datum beschikbaar:
16 feb 2026
Maximaal inkomen:
(niet ingesteld)
Status:
Verlopen

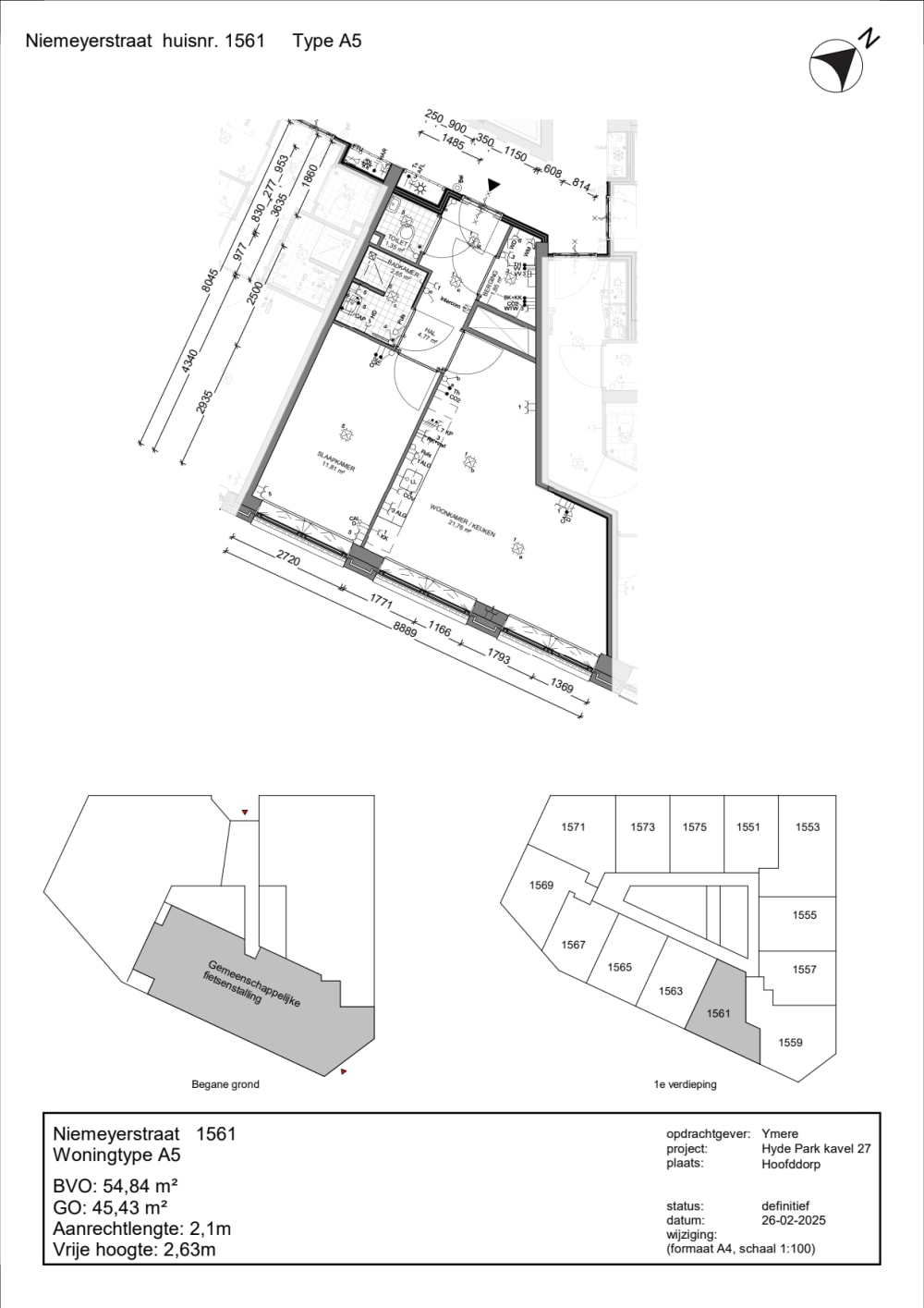
Omschrijving woning

Tweekamer corridorflat op de 1e etage in Hoofddorp-ZuidWoningCorridorflatWoonkamer met een open keukenBadkamer en toilet apartWasmachine-aansluiting in de bergingWel bovenburenGeen buitenruimteGemeenschappelijke bergingLift aanwezigGeschikt voor minimaal 1 persoonBijzonderhedenOpleverdatum is onder voorbehoudStaat van de woningYmere levert iedere woning op met basiskwaliteit: schoon, heel en veilig.Wat moet u aan de woning doen?Houdt er rekening mee dat u zelf nog het een en ander moet doen om de woning naar uw smaak te maken. Denk hierbij aan het leggen van ondervloeren en vloeren (minimaal 10cha decibel reducerend), schilderen en behangen van de wanden en plafondsIn de buurtOV; station hoofddorp op 10 min loopafstandWinkels; in het winkelcentrum van HoofddorpSupermarkt; in het winkelcentrum van HoofddorpHoreca; in het winkelcentrum van HoofddorpDiverse uitvalswegenVerzamel alvast uw gegevensKrijgt u een uitnodiging om deze woning te bekijken en wilt u komen kijken? Verzamel dan alvast uw gegevens voor Ymere. Want als u de woning komt bekijken en daarna laat weten dat u deze wilt huren, moet u uw gegevens de volgende werkdag voor 12.00 uur aanleveren. Ook als u niet kandidaat nummer 1 bent levert u de gevraagde documenten in!  Kijk op onzewebsiteof in dezefolderwat u moet aanleveren. Levert u uw gegevens niet op tijd aan? Dan krijgt u geen aanbod. U kunt de woning dan niet meer huren.BezichtigingKandidatennummer 1 t/m 10 worden uitgenodigd voor een bezichtiging op11 februari 2026. Als u geen uitnodiging heeft dan kan u niet komen bezichtigen. Deze datum is onder voorbehoud u krijgt een notificatie per mail als de datum wijzigt.Tot slotDe oplevering van de woning kan afwijken van de advertentietekst, de plattegrond, de foto’s en de bezichtiging in verband met eventuele werkzaamheden.Aan deze advertentie kunt u geen rechten ontlenen.De advertentie is gewijzigd op 29-01-2026 14:21:48.

Kaart