Huurwoning Hoofddorp

Tolheksbos 8, Hoofddorp

Korte samenvatting

Locatie
Hoofddorp
Huurprijs
€ 736,93
Type woning
Portiekwoning
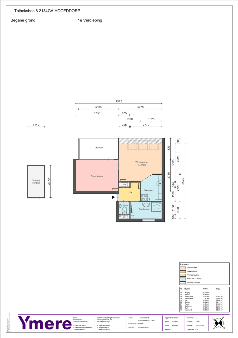
Oppervlakte:
29 m2
Kamers:
2
Slaapkamers:
1
Wachttijd:
(niet ingesteld)
Datum beschikbaar:
30 jan 2026
Maximaal inkomen:
€ 39.055,00
Status:
Gepubliceerd
Reageren

Omschrijving woning

Tweekamer portiekflat op de 1ste etage met balkon voor jongeren 23 t/m 27 jaar in Hoofddorp(-Overbos-Zuid)WoningWoonkamer met halfopen keukenBadkamer en toilet apartWasmachine-aansluiting in de badkamerLeef en contactgeluiden mogelijkWel bovenburenBalkonBergingBijzonderhedenLet op! Opleverdatum is onder voorbehoudJongerencontract voor 23 t/m 27 jaarInwonende kinderen niet toegestaanmaximaal 1 persoonStaat van de woningYmere levert iedere woning op met basiskwaliteit: schoon, heel en veilig.Wat moet u aan de woning doen?Houdt er rekening mee dat u zelf nog het een en ander moet doen om de woning naar uw smaak te maken. Denk hierbij aan het leggen van ondervloeren en vloeren (minimaal 10cha decibel reducerend), schilderen en behangen van de wanden en plafondsOvernameDe vertrekkende bewoner biedt ter overname aan:Vloer (- prijs in overleg)Op de overnames kunnen geen rechten worden ontleend. Bij defect worden ze voor de oplevering door Ymere verwijdert. Bij eventuele toekomstige gebreken zijn de kosten voor de huurder zelf. Bij ondertekening van de huurovereenkomst bent u automatisch eigenaar. Ymere voert hier geen werkzaamheden aan uit.In de buurtOV; voor meer info kijkt u op 9292.nlScholen;  in de omgevingWinkels; in de omgevingSupermarkt; in de omgevingHoreca; in de omgevingParken; voor de deurUitvalswegen; in de nabije omgevingGratis parkerenVerzamel alvast uw gegevensKrijgt u een uitnodiging om deze woning te bekijken en wilt u komen kijken? Verzamel dan alvast uw gegevens voor Ymere.  Want als u de woning komt bekijken en daarna laat weten dat u deze wilt huren, moet uuw gegevensde volgende werkdag voor 12.00 uur aanleveren. Ook als u niet kandidaat nummer 1 bent levert u de gevraagde documenten in! Kijk oponze websiteof indeze folder wat u moet aanleveren. Levert u uw gegevens niet op tijd aan? Dan krijgt u geen aanbod. U kunt de woning niet meer huren.Een intakegesprek kan onderdeel zijn van de toewijzingsprocedure. Na het gesprek hoort u van ons of wij u de woning toewijzen.BezichtigingKandidatennummer 1 t/m 10 worden uitgenodigd voor een bezichtiging op20 februari 2026. Heeft u geen uitnodiging heeft dan kan u niet komen bezichtigen. Deze datum is onder voorbehoud u krijgt een notificatie per mail als de datum wijzigt.Tot slotDe oplevering van de woning kan afwijken van de advertentietekst, de plattegrond, de foto’s en de bezichtiging in verband met eventuele werkzaamheden.Aan deze advertentie kunt u geen rechten ontlenen.

Kaart