Huurwoning Hoofddorp

Wieringerwaardstraat 5, Hoofddorp

Korte samenvatting

Locatie
Hoofddorp
Huurprijs
€ 788,79
Type woning
Tussenwoning
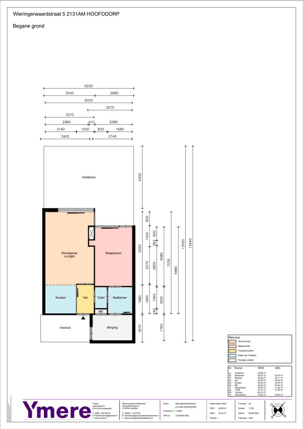
Oppervlakte:
40 m2
Kamers:
2
Slaapkamers:
1
Wachttijd:
(niet ingesteld)
Datum beschikbaar:
2 feb 2026
Maximaal inkomen:
(niet ingesteld)
Status:
Verlopen

Omschrijving woning

Tweekamer tussenwoning voor jongeren 23 t/m 27 jaar met een voor- en achtertuin in HoofddorpWoningTussenwoningWoonkamer met een open keukenBadkamer en toilet samenWasmachine-aansluiting in de badkamerGeen bovenburenVoor- en achtertuinBergingGeschikt voor maximaal 1 persoonBijzonderhedenJongerenwoning 23 t/m 27 jaarInwonende kinderen zijn niet toegestaanOpleverdatum is onder voorbehoudStaat van de woningYmere levert iedere woning op met basiskwaliteit: schoon, heel en veilig.Wat moet u aan de woning doen?Houdt er rekening mee dat u zelf nog het een en ander moet doen om de woning naar uw smaak te maken. Denk hierbij aan het leggen van ondervloeren en vloeren (minimaal 10cha decibel reducerend), schilderen en behangen van de wanden en plafondsOvernameDe vertrekkende bewoner biedt ter overname aan:Laminaatvloer (prijs in overleg)Op de overnames kunnen geen rechten worden ontleend. Bij defect worden ze voor de oplevering door Ymere verwijdert. Bij eventuele toekomstige gebreken zijn de kosten voor de huurder zelf. Bij ondertekening van de huurovereenkomst bent u automatisch eigenaar. Ymere voert hier geen werkzaamheden aan uit.In de buurtOV; bushalte op 5 min loopafstandWinkels; in het winkelcentrum van HoofddorpSupermarkt; Hoogvliet op 5 min loopafstandHoreca; in het centrum van HoofddorpDiverse uitvalswegenGratis parkerenVerzamel alvast uw gegevensKrijgt u een uitnodiging om deze woning te bekijken en wilt u komen kijken? Verzamel dan alvast uw gegevens voor Ymere. Want als u de woning komt bekijken en daarna laat weten dat u deze wilt huren, moet u uw gegevens de volgende werkdag voor 12.00 uur aanleveren. Ook als u niet kandidaat nummer 1 bent levert u de gevraagde documenten in!  Kijk op onzewebsiteof in dezefolderwat u moet aanleveren. Levert u uw gegevens niet op tijd aan? Dan krijgt u geen aanbod. U kunt de woning dan niet meer huren.BezichtigingKandidatennummer 1 t/m 10 worden uitgenodigd voor een bezichtiging op10 februari 2026. Als u geen uitnodiging heeft dan kan u niet komen bezichtigen. Deze datum is onder voorbehoud u krijgt een notificatie per mail als de datum wijzigt.Tot slotDe oplevering van de woning kan afwijken van de advertentietekst, de plattegrond, de foto’s en de bezichtiging in verband met eventuele werkzaamheden.Aan deze advertentie kunt u geen rechten ontlenen.

Kaart