Huurwoning Huizen

Zuidwal 11, Huizen

Korte samenvatting

Locatie
Huizen
Huurprijs
€ 731,89
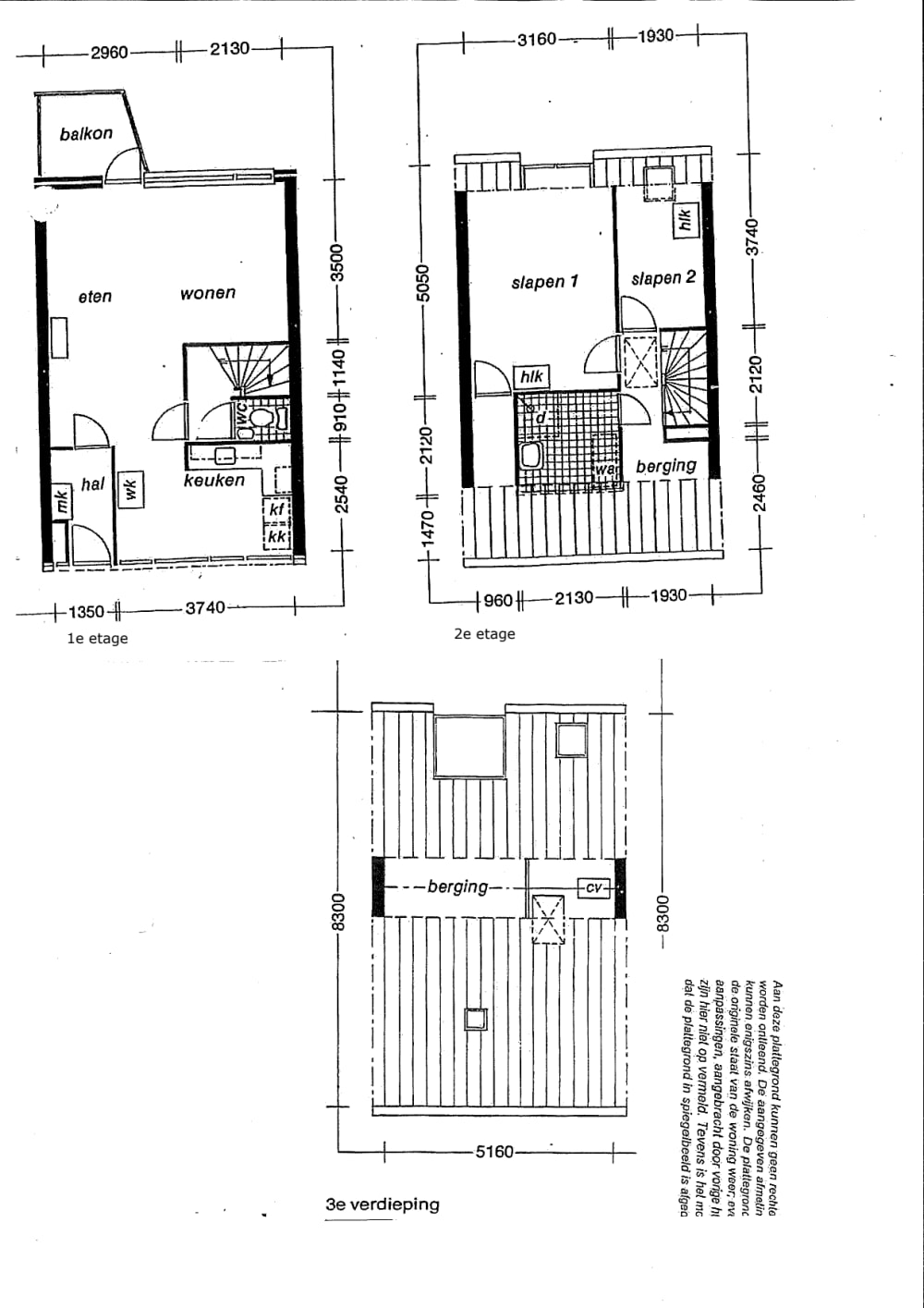
Type woning
Maisonnette
Oppervlakte:
59 m2
Kamers:
3
Slaapkamers:
2
Wachttijd:
(niet ingesteld)
Datum beschikbaar:
27 feb 2026
Maximaal inkomen:
€ 39.055,00
Status:
Gepubliceerd
Reageren

Omschrijving woning

Huizen, een voormalig vissersdorp aan het Gooimeer, combineert historische charme met moderne voorzieningen. Gelegen in het Gooi, biedt het dorp een sfeervolle woonomgeving met een rijk verenigingsleven, natuur en uitstekende voorzieningen. Huizen heeft een breed winkelaanbod, verdeeld over meerdere winkelcentra zoals Oostermeent, Het Holleblok en Hart van Huizen. Hier vindt u zowel grote ketens als lokale speciaalzaken.Het dorp kent diverse gezellige restaurants, cafés en terrassen, vooral rondom de Oude Haven en in het dorpscentrum. Het Gooimeer en het nabijgelegen Goois Natuurreservaat bieden volop mogelijkheden voor watersport, wandelen en fietsen. Daarnaast heeft Huizen een eigen jachthaven en diverse sportverenigingen.Huizen beschikt over een ruim aanbod aan basis- en middelbare scholen,Bereikbaarheid Huizen ligt gunstig ten opzichte van diverse steden en snelwegen: - Amsterdam – ca. 30 minuten rijden - Utrecht – ca. 30 minuten rijden - Amersfoort – ca. 25 minuten rijden - A1, A27 en A6 binnen handbereik voor snelle verbindingen Huizen is een ideale woonplaats voor wie de rust van het Gooi zoekt, maar toch dicht bij stedelijke voorzieningen wil wonen.

Kaart