Huurwoning IJmuiden

Schutterstraat 30, IJmuiden

Korte samenvatting

Locatie
IJmuiden
Huurprijs
€ 876,44
Type woning
Tussenwoning
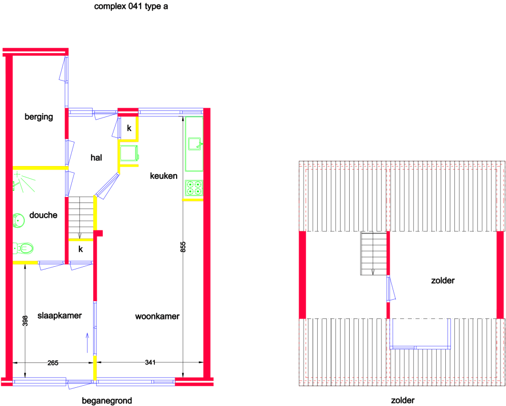
Oppervlakte:
41 m2
Kamers:
2
Slaapkamers:
1
Wachttijd:
(niet ingesteld)
Datum beschikbaar:
17 nov 2025
Maximaal inkomen:
(niet ingesteld)
Status:
Verlopen

Omschrijving woning

Woning2-kamerwoning1 slaapkamerEengezinswoningOpen keukenStandaard keukenblok 180cmKoken op gasCV-ketelMechanische ventilatieWasmachine aansluiting in de bergingToilet in de badkamerDubbel glasInpandige bergingIn de buurtOpenbaar vervoer op loopafstandWinkelsSupermarktBezichtigingDe eerste 10 kandidaten ontvangen een uitnodiging voor de groepsbezichtiging.De groepsbezichtiging vindt plaats opMaandag 3 November 2025 om 09.45 uur.Aangeboden overnames/  ZAVVloerLampenGordijnen/ raambekledingVerlengt aanrechtblad inclusief kookplaatAfzuigkapInboedelEr zijn geen overnames. De woning wordt kaal opgeleverd.

Kaart