Huurwoning IJmuiden

Van Ostadestraat 55, IJmuiden

Korte samenvatting

Locatie
IJmuiden
Huurprijs
€ 923,34
Type woning
Portiekwoning
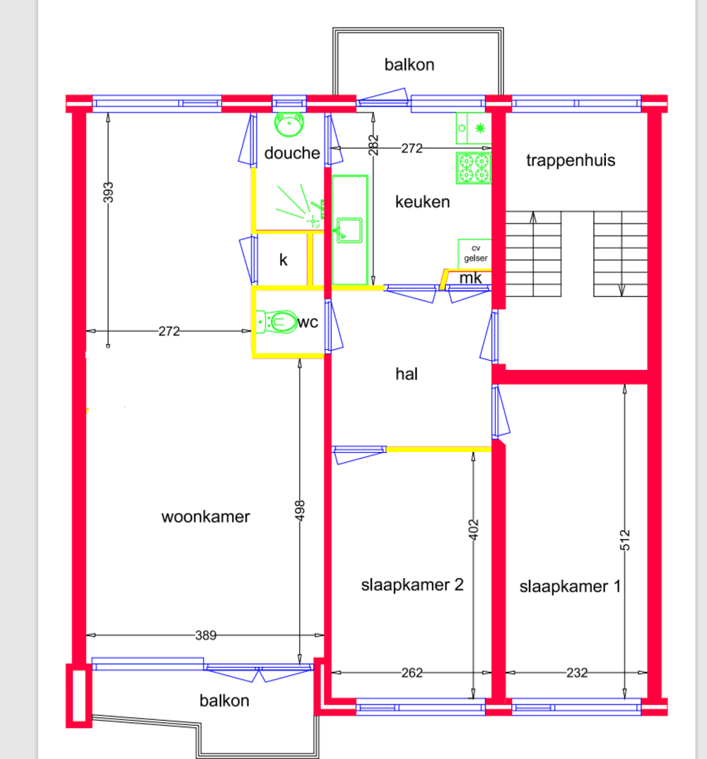
Oppervlakte:
62 m2
Kamers:
3
Slaapkamers:
2
Wachttijd:
(niet ingesteld)
Datum beschikbaar:
8 feb 2025
Maximaal inkomen:
(niet ingesteld)
Status:
Verlopen

Omschrijving woning

Let op, belangrijk!In sommige gevallen kan er op de huurprijs een korting worden toegepast. Uw inkomen bepaalt of de woning met korting wordt verhuurd of niet. Zorg ervoor dat uw inkomensgegevens (verzamelinkomen Belastingdienst) juist in het systeem staan dan ziet u na het inloggen de huurprijs op basis van uw inkomen. Aan deze huurprijs kunnen geen rechten worden ontleend.Woning3 kamerwoning2 slaapkamersPortiekflatGesloten keukenStandaard keukenblok 180cmKoken op gasCV-ketelNatuurlijke ventilatieWasmachine aansluiting in de keukenAparte toiletruimteDubbel glasExterne bergingIn de buurtOpenbaar vervoer op loopafstandWinkelsSupermarktBezichtigingDe bezichtiging is in bewoonde staat. Dit houdt in dat wij te gast zijn bij de huidige huurder. Gelieve hier rekening mee te houden.De eerste 15 kandidaten ontvangen een uitnodiging voor de groepsbezichtiging.De groepsbezichtiging vindt plaats op24 Januari 2025 om 12 uur.Aangeboden overnames/  ZAVVloerLampenGordijnen/ raambekleding

Kaart