Huurwoning Krommenie

Burgemeester Schaapstraat 73, Krommenie

Korte samenvatting

Locatie
Krommenie
Huurprijs
€ 868,22
Type woning
Appartement
Oppervlakte:
64 m2
Kamers:
3
Slaapkamers:
2
Wachttijd:
(niet ingesteld)
Datum beschikbaar:
9 feb 2026
Maximaal inkomen:
(niet ingesteld)
Status:
Gepubliceerd
Reageren

Omschrijving woning

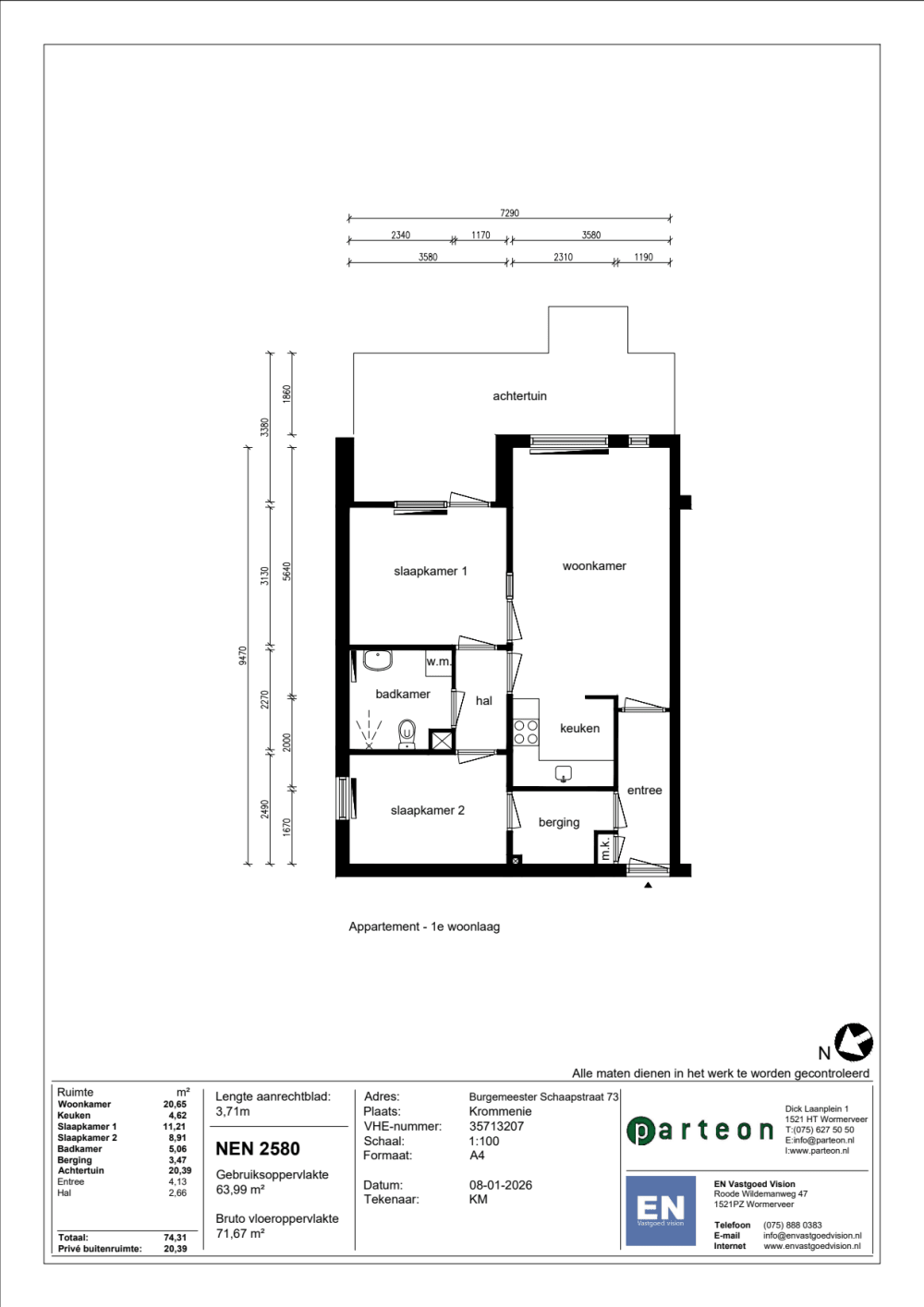
Leuk senioren appartement met het 55+ seniorenlabelAppartement gelegen op de begane grondAppartement bereik via de overdekte halgangentree tot de inpandige bergingvanuit de gang betreedt u de ruime lichte woonkamer met open keukenElectrische koken perilex aansluiting aanwezig max. 7200 watt.via de tussenhal bereikt u de 2 slaapkamers.Vanuit de slaapkamer aan de voorzijde heeft u tevens toegang tot uw tuin.Ruime badkamer met toilet en wasmachine aansluiting is tussen de slaapkamers gelegen.In de centrale hal is een algemene fietsenberging gelegen.WoonomgevingHet complex is zeer centraal gelegen in KrommenieSupermarkt is op 5 min. loopafstandWinkelplein "Rosariumplein" is tevens op 5 min. loopafstand gelegen. Met meerdere winkels en grote supermarktBushalte in de direkte omgevingNS-station is op 10 min. lopenExtra informatieAppartement is gelegen in een seniorencomplexAppartement is zeer geschikt voor kandidaten die gebruik maken van een loophulpmiddel.Rustige liggingHeerlijk genieten van een eigen tuin.U dient er rekening mee te houden dat u zelf nog een en ander zelf dient te doen in de woning. U moet dan denken aan het schilderen van deuren, muren, plafonds en kozijnen, het leggen van een juiste ondervloer en bovenvloer, behang afstomen, behangen, ophangen van raamdecoratieOnderhoud en inrichting van de tuin zijn voor kosten van de nieuwe huurderNette en rustige bewoning gewenstHet complex is in afgesloten.Geschikt voor 1 of 2 personen. Geen kinderen.Let op:woningkenmerken en plattegrond kunnen mogelijk iets afwijken van de werkelijkheid. Bijvoorbeeld omdat wij nog werkzaamheden moeten uitvoeren na de bezichtiging. De basis zoals het aantal kamers en het type woning staan vast.Als u eerste kandidaat bent vragen wij u binnen 3 werkdagen gegevens in te leveren. Het is dan vereist om een kopie van het definitieve aanslagbiljet inkomstenbelasting of een inkomensverklaring (IBRI-formulier) van het voorgaande jaar in te leveren. Ook als u geen werk heeft moet u een inkomensverklaring inleveren. Deze kunt u aanvragen bij het belastingkantoor, via het gratis telefoonnummer (0800) 0543. Houdt u er rekening mee dat het 5 werkdagen duurt voordat u de verklaring heeft ontvangen. Wij adviseren u daarom deze alvast aan te vragen. U kunt dit formulier in het lopende jaar nog gebruiken voor eventuele volgende aanbieding(en).De huur in deze advertentie is onder voorbehoud. Een intakegesprek en een betaalbaarheidstoets kunnen deel uitmaken van de toewijzingsprocedure.ZELFSTANDIG ONDERNEMERIndien u zelfstandig ondernemer bent dient u een recente definitieve aanslag of IBRI in te leveren. Het heeft geen zin om op een woning te reageren als u deze aanslag nog niet heeft.LET OP!Indien u kandidaat 1 wordt voor deze woning willen wij u erop wijzen dat u uw persoonlijke gegevens binnen 3 werkdagen bij Parteon dient in te leveren. Mochten de gegevens niet op tijd binnen zijn dan is Parteon genoodzaakt om de woning aan de volgende kandidaat aan te bieden.FRAUDEIndien wij constateren dat documenten zijn vervalst en niet overeenkomen met de werkelijke situatie dan noemen we dat fraude. Dit geldt ook als u bewust een verkeerde voorstelling van de situatie geeft. Hier staat een zware sanctie op. De woningaanbieding wordt ingetrokken en u wordt voor de duur van één jaar geblokkeerd om via Woningnet te reageren.

Kaart