Huurwoning Krommenie

Gagarinstraat 32, Krommenie

Korte samenvatting

Locatie
Krommenie
Huurprijs
€ 944,36
Type woning
Appartement
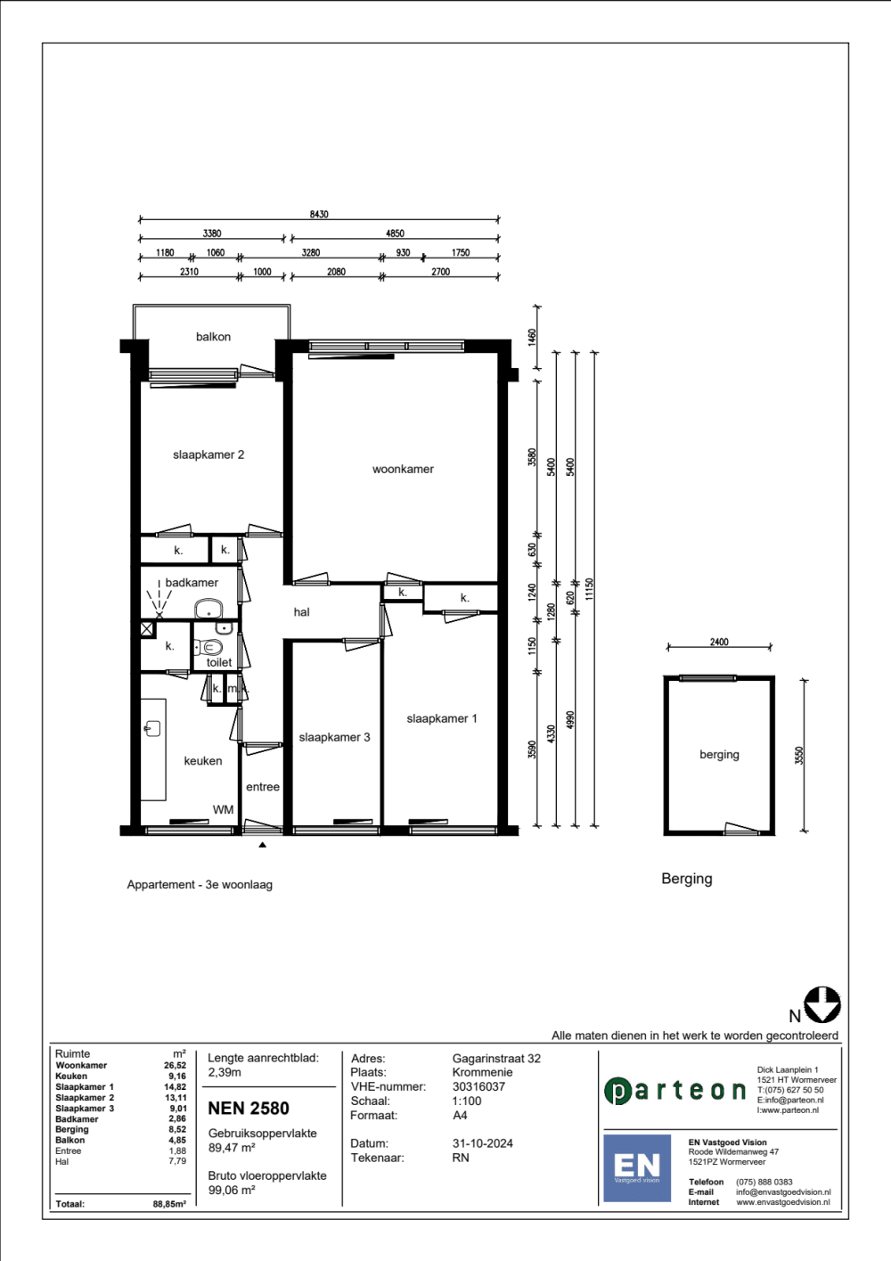
Oppervlakte:
89 m2
Kamers:
4
Slaapkamers:
3
Wachttijd:
(niet ingesteld)
Datum beschikbaar:
31 jan 2025
Maximaal inkomen:
(niet ingesteld)
Status:
Verlopen

Omschrijving woning

Galerijwoning gelegen op de derde etage van het complex. De supermarkt en diverse scholen zijn op loopafstand gelegen. Er is een bushalte nabij gelegen.WoningBouwjaar 1972Woning te bereiken via trap of lift.Vloertype HoutGelijkvloersGesloten keukenElektrisch koken perilex aansluiting aanwezig maximaal 7200 wattBalkon op het ZuidenBerging onder in het complex gelegencompacte badkamerHet toilet is in de halGratis parkeren voor de deurWasmachine aansluiting in de keukenGehorigheid: leef geluiden.Houd er rekening mee dat u zelf nog het één en ander moet doen om de woning naar uw smaak te maken. Denk hierbij aan het leggen van vloeren/ondervloeren (minimaal 10 decibel reducerend), afstomen van behang, schilderen/behangen van de muren, deuren, (raam)kozijnen en plafonds. Parteonlevert de woning aan u op volgens de basisregels: Schoon en veilig.Foto's ter indicatie: afwerking kan afwijkenKosten voor verwarming / water / zitten in de servicekostenEen persoonlijk intakegesprek maakt deel uit van de selectieprocedure. Indien u kandidaat 1 wordt voor deze woning willen wij u erop wijzen dat toezegging van de woning pas geschiet na goed keuring van het persoonlijke intake gesprek. Kandidaten dienen een dagbesteding te hebben.Rustige en nette bewoning gewenst.Indien u afwezig bent bij de bezichtiging zonder geldige reden, kunnen wij u deze woning niet toewijzen.OmgevingSupermarkt op loop-fietsafstandLagere scholen op loopafstandMiddelbare school op fietsafstandOpenbaar vervoer op loopafstandStation gelegen op fietsafstandLet op:woningkenmerken en plattegrond kunnen mogelijk iets afwijken van de werkelijkheid. Bijvoorbeeld omdat wij nog werkzaamheden moeten uitvoeren na de bezichtiging. De basis zoals het aantal kamers en het type woning staan vast.Aan deze advertentie kunt u geen rechten ontlenen.Huurprijs in onder voorbehoud. Deze kan nog wijzigen.

Kaart