Huurwoning Krommenie

Leoniden 70, Krommenie

Korte samenvatting

Locatie
Krommenie
Huurprijs
€ 833,24
Type woning
Appartement
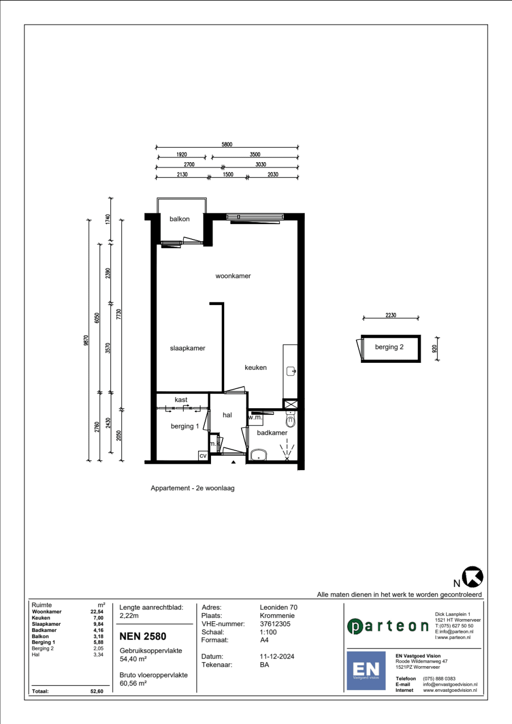
Oppervlakte:
54 m2
Kamers:
2
Slaapkamers:
1
Wachttijd:
(niet ingesteld)
Datum beschikbaar:
21 jan 2025
Maximaal inkomen:
(niet ingesteld)
Status:
Verlopen

Omschrijving woning

Jongerenwoning gelegen op de tweede etage van het complex. De woning heeft een centrale ligging t.o.v. het openbaar vervoer.WoningBouwjaar 1984Woning te bereiken via trap of liftDeze woning wordt niet verhuurd aan een huishouden met kinderen.Vloertype BetonGelijkvloersOpen keukenElektrisch koken perilex aansluiting aanwezig maximaal 7200 wattKlein balkon op het Noord-OostenBerging onder in het complex aanwezigHet toilet is in de badkamerGratis parkeren voor de deurWasmachine aansluiting in de badkamerGehorigheid: leef geluiden.Houd er rekening mee dat u zelf nog het één en ander moet doen om de woning naar uw smaak te maken. Denk hierbij aan het leggen van vloeren/ondervloeren (minimaal 10 decibel reducerend), afstomen van behang, schilderen/behangen van de muren, deuren, (raam)kozijnen en plafonds. Parteonlevert de woning aan u op volgens de basisregels: Schoon en veilig.Foto's ter indicatie: afwerking kan afwijkenKosten voor verwarming / water zitten in de servicekostenRustige en nette bewoning gewenst.Indien u afwezig bent bij de bezichtiging zonder geldige reden, kunnen wij u deze woning niet toewijzen.OmgevingSupermarkt op loop-fietsafstandLagere scholen op loopafstandMiddelbare school loopafstandOpenbaar vervoer op loopafstandStation is op loopafstandLet op:woningkenmerken en plattegrond kunnen mogelijk iets afwijken van de werkelijkheid. Bijvoorbeeld omdat wij nog werkzaamheden moeten uitvoeren na de bezichtiging. De basis zoals het aantal kamers en het type woning staan vast.Aan deze advertentie kunt u geen rechten ontlenen.Huurprijs in onder voorbehoud. Deze kan nog wijzigen.

Kaart