Huurwoning Krommenie

Lindelaan 34, Krommenie

Korte samenvatting

Locatie
Krommenie
Huurprijs
€ 704,10
Type woning
Tussenwoning
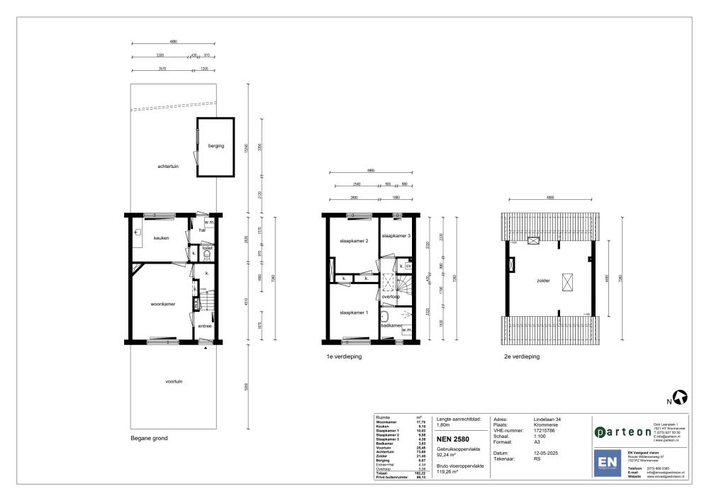
Oppervlakte:
92 m2
Kamers:
4
Slaapkamers:
3
Wachttijd:
(niet ingesteld)
Datum beschikbaar:
27 jun 2025
Maximaal inkomen:
€ 39.055,00
Status:
Verlopen

Omschrijving woning

Eengezinswoning gelegen op een steenworp afstand van het Agathepark. Hier is een vernieuwde speelplek en een vogel volière. Centraal gelegen, winkelstraat van Krommenie nabij gelegen.WoningBouwjaar 1948Gesloten keukenElektrisch koken perilex aansluiting aanwezig maximaal 7200 wattAchtertuin gelegen op het noordenExterne berging in de tuincompacte badkamer op de 1ste verdieping, geen tweede toilet aanwezigHet toilet is in de hal aan de achterzijdeGratis parkeren voor de deurGehorigheid: leef geluiden.Woning is voorzien van zonnepanelenHoud er rekening mee dat u zelf nog het één en ander moet doen om de woning naar uw smaak te maken. Denk hierbij aan het leggen van vloeren/ondervloeren (minimaal 10 decibel reducerend), afstomen van behang, schilderen/behangen van de muren, deuren, (raam)kozijnen en plafonds. Parteonlevert de woning aan u op volgens de basisregels: Schoon en veilig.Foto's ter indicatie: afwerking kan afwijkenVlizo trap naar zolderRustige en nette bewoning gewenst.Woning is geschikt voor maximaal 4 personen gezien de afmetingen van de slaapkamersIndien u afwezig bent bij de bezichtiging zonder geldige reden, kunnen wij u deze woning niet toewijzen.OmgevingSupermarkt op loopafstandLagere scholen op loopafstandMiddelbare school op fietsafstandOpenbaar vervoer op loopafstandOnderhoud en aanleg van tuin en schuttingen zijn voor kosten van de huurderLet op:woningkenmerken en plattegrond kunnen mogelijk iets afwijken van de werkelijkheid. Bijvoorbeeld omdat wij nog werkzaamheden moeten uitvoeren na de bezichtiging. De basis zoals het aantal kamers en het type woning staan vast.Aan deze advertentie kunt u geen rechten ontlenen.Huurprijs in onder voorbehoud. Deze kan nog wijzigen.

Kaart