Huurwoning Krommenie

Pijpkruidstraat 42, Krommenie

Korte samenvatting

Locatie
Krommenie
Huurprijs
€ 577,78
Type woning
Appartement
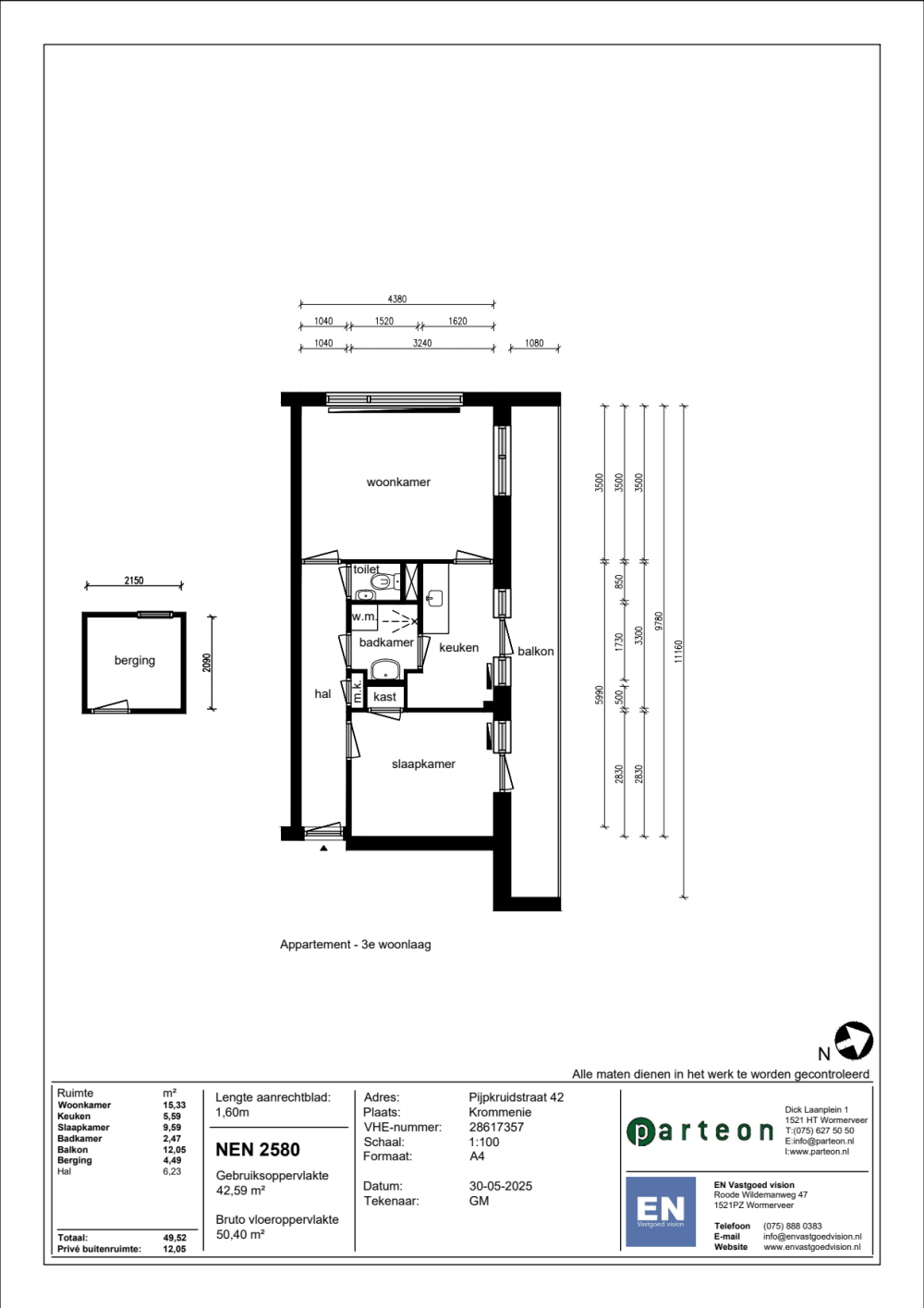
Oppervlakte:
42 m2
Kamers:
2
Slaapkamers:
1
Wachttijd:
(niet ingesteld)
Datum beschikbaar:
30 jun 2025
Maximaal inkomen:
€ 39.055,00
Status:
Verlopen

Omschrijving woning

Jongerenwoning gelegen op de 3de etage van het complex. Er is geen lift aanwezig. Woning wordt niet verhuurd aan een huishouden met kinderen.WoningBouwjaar 1967Woning te bereiken via trapDeze woning wordt niet verhuurd aan een huishouden met kinderen.Vloertype BetonGelijkvloersGesloten keukenElektrisch koken perilex aansluiting aanwezig maximaal 7200 wattLet op groot balkon over de gehele zijde van de woningBalkon op het NoordenBerging onder in het complex gelegenKleine badkamerHet toilet is in de halGratis parkeren voor de deurWasmachine aansluiting in de badkamerGehorigheid: leef geluiden.Houd er rekening mee dat u zelf nog het één en ander moet doen om de woning naar uw smaak te maken. Denk hierbij aan het leggen van vloeren/ondervloeren (minimaal 10 decibel reducerend), afstomen van behang, schilderen/behangen van de muren, deuren, (raam)kozijnen en plafonds. Parteonlevert de woning aan u op volgens de basisregels: Schoon en veilig.Foto's ter indicatie: afwerking kan afwijkenKosten voor verwarming / water zitten in de servicekostenRustige en nette bewoning gewenst.Indien u afwezig bent bij de bezichtiging zonder geldige reden, kunnen wij u deze woning niet toewijzen.OmgevingSupermarkt op loopafstandLagere scholen op loopafstandMiddelbare school op fietsafstandOpenbaar vervoer op loopafstandNette bewoning gewenstLet op:woningkenmerken en plattegrond kunnen mogelijk iets afwijken van de werkelijkheid. Bijvoorbeeld omdat wij nog werkzaamheden moeten uitvoeren na de bezichtiging. De basis zoals het aantal kamers en het type woning staan vast.Aan deze advertentie kunt u geen rechten ontlenen.Huurprijs in onder voorbehoud. Deze kan nog wijzigen.

Kaart